
Flat to rent • 20 m² without real estateEduard-Spranger-Str. 24 München Feldmoching Bayern 80935
Eduard-Spranger-Str. 24 München Feldmoching Bayern 80935Public transport 4 minutes of walking • Equipped • LiftWe are renting out a spacious, bright room in a freshly renovated 4-person shared apartment. The room is completely newly furnished and comes with all furniture and decorative items – just move in and feel at home!
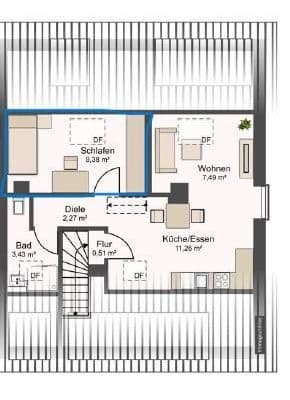
The apartment offers:
• A south-facing loggia with a view of the courtyard
• A new fitted kitchen with a large refrigerator
• A new washer-dryer combo
• Internet included
• A kitchen and a bathroom with windows
• A bathroom with a separate toilet
• A storage room in the hallway
• An elevator in the building
• A single parking space in the underground garage with a barrier
The shared apartment is modernly furnished, filled with light, and ideal for anyone who wishes to live comfortably and effortlessly.
There are a total of 4 rooms in the shared apartment:
• 2 smaller rooms for €695 (one already rented)
• 1 medium room for €850 (already rented)
• A large master room for €890
Additionally, there are €100 in extra costs (including internet).
The apartment is located in the quiet neighborhood of Hasenbergl (Feldmoching-Hasenbergl district) with good infrastructure. The Hasenbergl U-Bahn station (U2) as well as several bus lines are within walking distance, and the highways A9 and A92 can be reached quickly.
Shopping facilities, bakeries, and pharmacies are in the immediate vicinity, and the Lerchenauer Eck shopping center is only a few minutes away.
Property characteristics
| Age | Over 5050 years |
|---|---|
| Fully furnished | Fully furnished |
| Usable area | 20 m² |
| Available from | 10/03/2026 |
|---|---|
| Listing ID | 999677 |
| Price per unit | €35 / m2 |
What does this listing have to offer?
| Balcony | |
| Lift |
| Basement | |
| MHD 4 minutes on foot |
What you will find nearby
Still looking for the right one?
Set up a watchdog. You will receive a summary of your customized offers 1 time a day by email. With the Premium profile, you have 5 watchdogs at your fingertips and when something comes up, they notify you immediately.














