Office for sale • 739 m² without real estateDönseler Straße 4, , Lower Saxony
Dönseler Straße 4, , Lower SaxonyPublic transport 2 minutes of walking • ParkingGenerous, renovated commercial property with office, practice, and production spaces as well as a secondary apartment in Dickel.
The building was constructed in 1955 as a school building and comprehensively renovated in 2003.
Highlights:
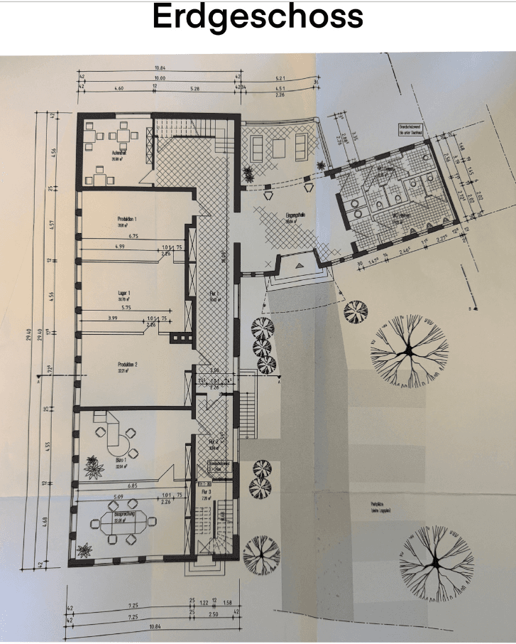
• Approximately 647 m² of office/practice space
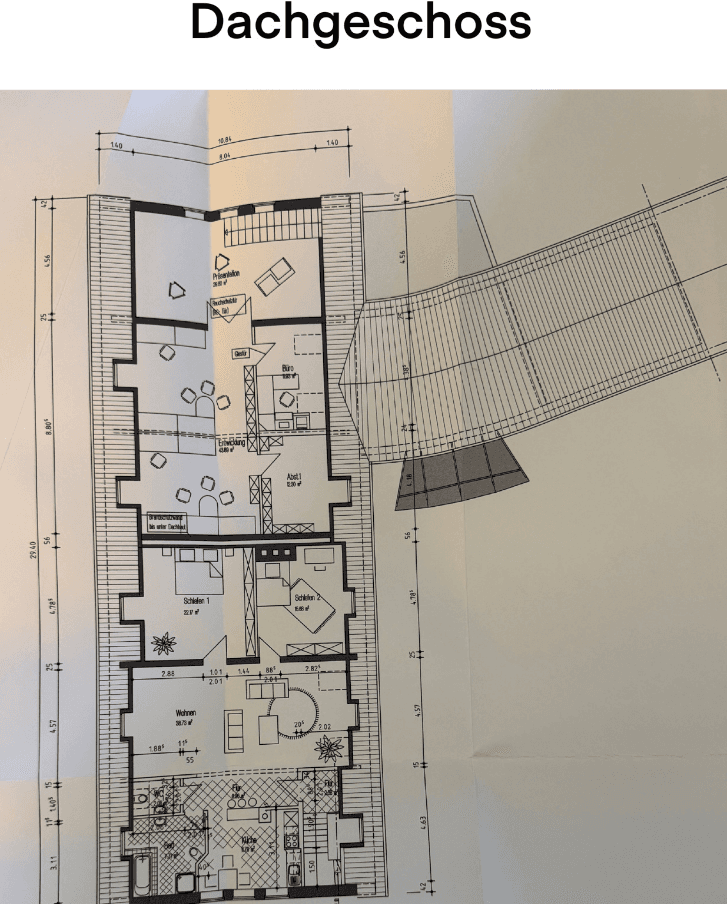
• Approximately 92–107 m² secondary apartment
• 3 floors (basement, ground floor, first floor)
• Central heating (gas)
• 10 parking spaces in the property’s own courtyard
• Generous plot of approximately 4,350 m²
• X‑ray protection bunker in the basement
• Attic with expansion potential
Ideal for companies, medical practices, production, laboratories, or crafts. Flexible space layouts and bright rooms enable immediate use or individual adjustments. The integrated secondary apartment is suitable as a manager’s residence, for employees, or for separate rental.
The property is located in a quiet, rural setting in the charming village of Dickel (Lower Saxony).
Infrastructure & Surroundings:
• Approximately 4 km to Rehden with: EDEKA, ALDI, pharmacy, and a post office
• Kindergarten and primary school nearby
• Public transport within walking distance
• Good connections to the cities of Barnstorf and Diepholz, as well as to regional highways
• Surrounded by plenty of greenery, nature, and recreational opportunities (hiking and cycling paths)
The location combines a quiet working environment with good accessibility for employees, customers, and suppliers.
Flooring: tiles, stone, vinyl
Sanitary facilities: bathtub, guest WC
Kitchen: built-in kitchen in the secondary apartment
Features: conservatory, terrace, garden, basement, attic, X‑ray protection bunker
Heating: central heating, energy source gas
Parking: 10 outdoor parking spaces
Condition: renovated and ready for immediate use
Availability: by arrangement
Year built: 1955 (renovated in 2003)
Plot: 4,350 m², with additional development potential
Special feature: secondary apartment, attic, X‑ray protection bunker
Usage: combination of commercial and residential
Online viewing available
This commercial property offers history, space, flexibility, and development potential – perfect for companies seeking a quiet location with good infrastructure.
Property characteristics
| Age | Over 5050 years |
|---|---|
| Floor | 1. floor out of 3 |
| Land office | 739 m² |
| Condition | After reconstruction |
|---|---|
| Listing ID | 999656 |
| Price per unit | €744 / m2 |
What does this listing have to offer?
| Basement | |
| MHD 2 minutes on foot |
| Parking | |
| Terrace |
What you will find nearby
Still looking for the right one?
Set up a watchdog. You will receive a summary of your customized offers 1 time a day by email. With the Premium profile, you have 5 watchdogs at your fingertips and when something comes up, they notify you immediately.
























