
House for sale 5+1 • 138 m² without real estateLeipzig Altlindenau Sachsen 04177
Leipzig Altlindenau Sachsen 04177Public transport 1 minute of walking • ParkingIn an urban yet pleasantly quiet location, this modern terraced semi-detached house is situated in the heart of Altlindenau near Lindenau Market. Only four tram stops from Leipzig city center, it is in close proximity to the Palmengarten and the Auenwald—ideal for walks, leisure, and relaxation. The RB Football Stadium and the Arena can be reached on foot.
The house was built from 2015 to 2016 to the energy-efficient KfW 70 standard and was occupied by the current owners in December 2016. An environmentally friendly zeolite gas heat pump in combination with a solar thermal system ensures sustainable heating. Additionally, there is a private rainwater cistern that is perfect for garden irrigation.
The lovingly landscaped garden with a large terrace and a garden house offers space for relaxation. On the second floor, a spacious balcony adjacent to the master bedroom complements the collection of retreat areas and evening sunlight.
On the ground floor, you will find the open living and dining area, the kitchen, a guest WC, as well as the utility room with building connections and a convenient storage room.
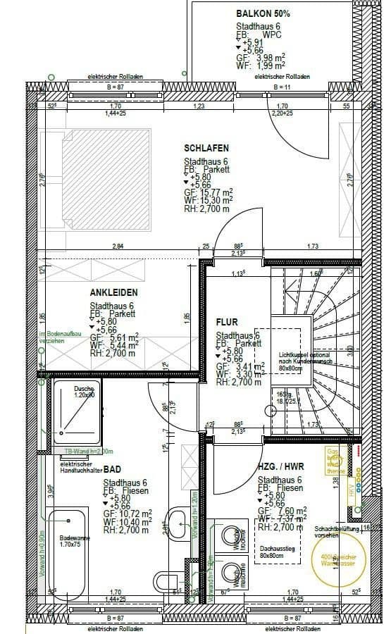
The first floor features three almost equally sized bedrooms (or guest rooms) and a modern shower bathroom.
The second floor forms a separate living level with a large bedroom, a spacious bathroom with shower, bathtub, and WC, as well as the utility room.
The town house impresses with its high-quality, contemporary features: underfloor heating in every room, elegant oak parquet flooring in the living areas, and electric shutters throughout the house provide both comfort and high living quality.
Adjacent to the terraced houses is a multi-family building where the underground parking space is located. The space is included in the purchase price and is managed as part of a homeowners’ association.
Altlindenau is located west of Leipzig city center, nestled between the Palmengarten and the northern Auenwald. The district melds urban flair with historic charm: magnificent Gründerzeit buildings shape the streetscape, while former industrial areas have been creatively and modernly repurposed. The neighborhood offers excellent infrastructure with a wide array of shopping opportunities, pubs, and restaurants, a hospital, numerous schools, and generous parks and green spaces in the immediate vicinity. Culturally, Lindenau has much to offer—among other things, the Musical Comedy, the Schaubühne Lindenfels on Karl-Heine-Straße, and the Theater der Jungen Welt.
Especially attractive for families: a small playground is located just a few steps from the town house.
Room layout:
• Living room with access to the terrace, ground floor
• Kitchen, ground floor
• Guest WC, ground floor
• Storage room with connections, ground floor
• Pantry under the staircase, ground floor
• Room 1, first floor
• Room 2, first floor
• Room 3, first floor
• Shower bathroom and WC, first floor
• Bedroom, second floor
• Large bathroom with bathtub, shower, and WC, second floor
• Heating/utilities room with washing machine, second floor
• Balcony, second floor
Underground parking space:
• in the adjacent multi-family rear building
Additional information:
• Internally installed network cable Ethernet 1 Gbps in the living areas
• Electric shutters
• Skylight in the stairway
• Bicycle garage
• Garden house with electrical connection
Property characteristics
| Age | Over 5050 years |
|---|---|
| Layout | 5+1 |
| EPC | A - Extremely economical |
| Land space | 213 m² |
| Price per unit | €5,870 / m2 |
| Condition | Good |
|---|---|
| Listing ID | 999144 |
| Usable area | 138 m² |
| Total floors | 3 |
What does this listing have to offer?
| Balcony | |
| MHD 1 minute on foot |
| Parking | |
| Terrace |
What you will find nearby
Still looking for the right one?
Set up a watchdog. You will receive a summary of your customized offers 1 time a day by email. With the Premium profile, you have 5 watchdogs at your fingertips and when something comes up, they notify you immediately.














