Flat for sale 4+1 • 90 m² without real estateGuineastraße 38 Berlin Wedding Berlin 13351
Attractive Investment Property in Berlin-Wedding – Well-Maintained, Light-Filled Condominium Sold Privately
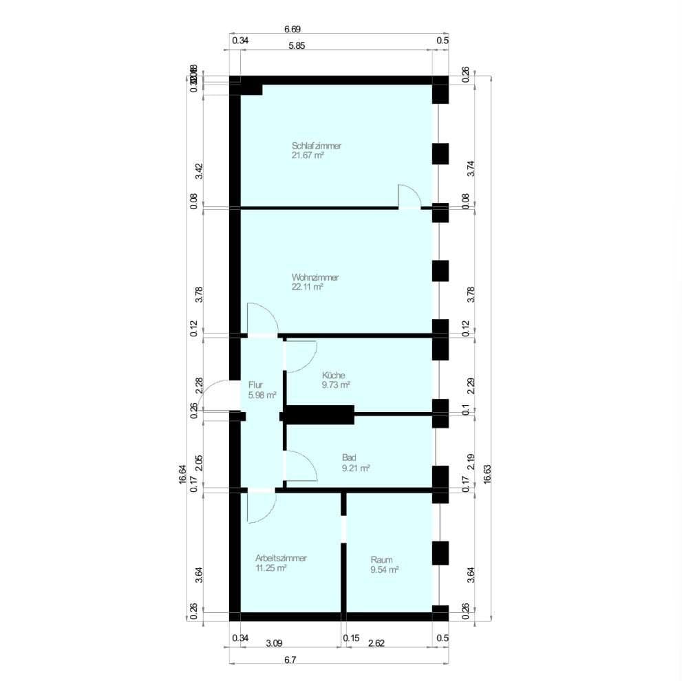
This spacious and bright condominium is located on the fourth floor of a well-maintained apartment building in the popular Berlin district of Wedding. The apartment impresses with its thoughtful layout and comprises, in addition to the hallway, bathroom, and kitchen, a total of four additional living rooms (see floor plan). The overall condition of the property is described as well cared for.
The apartment is being sold as a rented investment property and offers a solid and secure return. The annual net cold rent income amounts to €6,718.32. The existing tenancy has proven reliable from the very beginning: the tenant has consistently met payment obligations on time and has always maintained the apartment. The monthly service charge is €374.81.
Highlights at a glance:
- Securely rented condominium
- Well-maintained condition
- Location in the front section of the building
- Four separate living rooms
- Windows in almost every room (including the kitchen and bathroom)
- Heating provided via district heating
- Excellent infrastructure
- Private sale without broker fees
- Rental lock-out until May 2026
I am available to answer any questions you may have. For serious inquiries and after consulting with the tenant, the apartment can be viewed. At the tenant's explicit request, no interior photos of the apartment will be published.
Wedding is one of the centrally located Berlin districts with excellent transport connections to both the City East and City West. The traditional working-class neighborhood has transformed from an industrially dominated district into a hub for modern service industries, science, research, and culture. The main center around Müllerstraße has managed to establish itself within the polycentric structure of the entire city, offering residents a wide range of shops, fast-food outlets, cafés, and restaurants. All daily necessities are easily accessible on foot – numerous supermarkets, kindergartens, and schools are available in close proximity as well. Additionally, the district’s reputation has been on the rise for some time, with parts of Wedding now counted among Berlin’s trendy residential areas.
Property characteristics
| Age | Over 5050 years |
|---|---|
| Layout | 4+1 |
| Listing ID | 999142 |
| Usable area | 90 m² |
| Condition | Good |
|---|---|
| Floor | 4. floor out of 4 |
| EPC | F - Very uneconomical |
| Price per unit | €3,622 / m2 |
What does this listing have to offer?
| MHD 3 minutes on foot |
What you will find nearby
Still looking for the right one?
Set up a watchdog. You will receive a summary of your customized offers 1 time a day by email. With the Premium profile, you have 5 watchdogs at your fingertips and when something comes up, they notify you immediately.











