House for sale 7+1 • 293 m² without real estate, Bavaria
The house enjoys a sunny southern exposure. The spacious rooms with large windows provide plenty of light and a beautiful view over the valley. The view through the panoramic window in the dining room is especially delightful. Each floor features a bedroom and a bathroom. The attached single garage is 34 m² in size and comes with large windows, a work area, and access to the ground floor living area. Currently, there is VDSL internet (100 Mbit/s) and two satellite dishes. Fiber optic internet is scheduled for installation in 2027. There is 5G mobile coverage provided by Telekom. Both fitted kitchens and all furniture (unless otherwise indicated) are included in the purchase price.
The house offers a living area of 293 m² and is divided as follows:
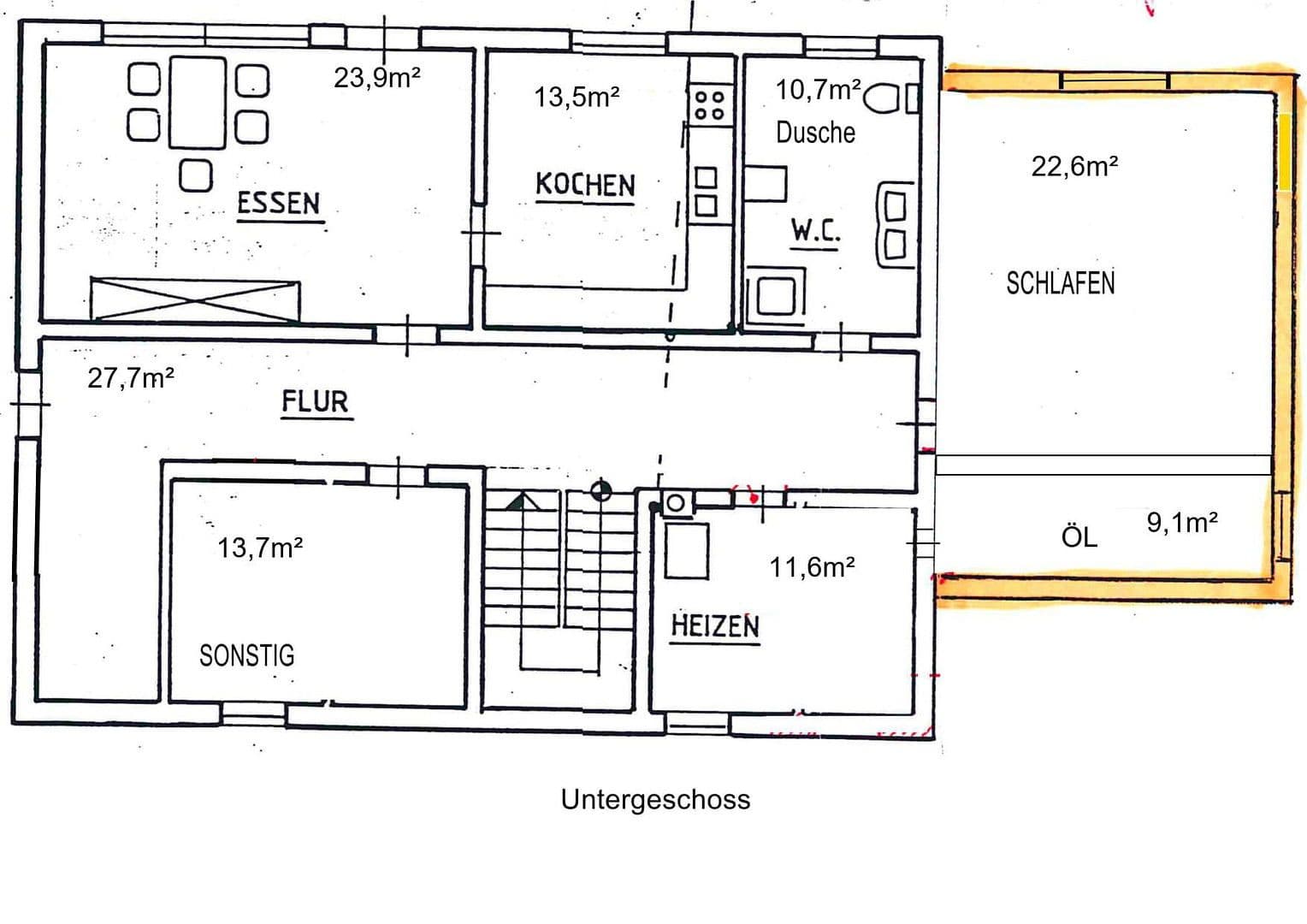
BASEMENT – 112 m² – dining room with panoramic window – bedroom, shower/toilet – luxurious fitted kitchen with dining area – daylight bathroom with shower, 2 washbasins – tiled floor – large 48 m² south terrace with retractable awning and access to the dining room.
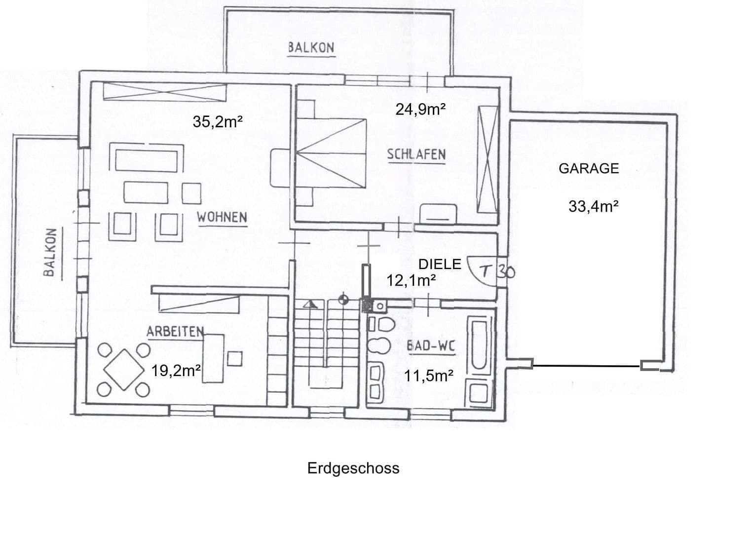
GROUND FLOOR – 103 m² – living room, study, bedroom – daylight bathroom with bathtub and bidet – tiled bathroom and hallway – carpeted floor – 2 balconies.
ATTIC – 78 m² – living room, bedroom – fitted kitchen with dining area – bathroom with shower and daylight – laminate floor – 32 m² large roof terrace and private balcony. The attic can be used as a family area via the internal entrance, or as a guest apartment via the external access from the roof terrace. The apartment has been rented on Airbnb over the past 7 years.
Medical care is provided by doctors in Burghaslach and Scheinfeld. A hospital is located in Neustadt an der Aisch. In the village there is a kindergarten, and students of all ages (primary school, secondary school, intermediate school, and high school) are picked up by bus. A hotel, two restaurants, and a sports center are also present in the village. The house is situated on a hillside (south side) with unobstructed views. It is located 7 km from the A3 Nürnberg-Frankfurt motorway and 8 km from the B8. The nearest towns are Scheinfeld (9 km), Burghaslach (7 km), Neustadt/Aisch (20 km) and Erlangen (25 km).
The house was built between 1995 and 2001. It features comprehensive thermal insulation, and the entire garage structure from the foundation slab to the roof terrace is also insulated with 5 cm of expanded polystyrene. Under the entire foundation slab, a 5 cm thick hard styrofoam insulation was applied. The roof is insulated with 10 cm of expanded polystyrene. Underfloor heating with warm water is installed in the basement living areas. The other floors are heated with radiators. The basement ceiling and the ceiling to the attic are completely made of concrete. The building is equipped with a lightning protection system and two separate satellite systems. All windows and terrace doors are made of durable plastic, and all blinds are electrically operated. The roof terrace was newly sealed in April 2019 and fitted with new panels. The balcony of the ground floor bedroom was newly sealed in May 2020 and fitted with new panels. A new BWT AQA Perla water softening system was installed in June 2019. The house façade and the roof overhangs were completely repainted in May 2024.
Purchase price includes both fitted kitchens and furniture. The house will be available from May 2026.
Property characteristics
| Age | Over 5050 years |
|---|---|
| Layout | 7+1 |
| Usable area | 293 m² |
| Total floors | 3 |
| Condition | Good |
|---|---|
| Listing ID | 998892 |
| Land space | 1,039 m² |
| Price per unit | €1,860 / m2 |
What does this listing have to offer?
| Balcony | |
| Garage | |
| MHD 0 minutes on foot |
| Basement | |
| Parking | |
| Terrace |
What you will find nearby
Still looking for the right one?
Set up a watchdog. You will receive a summary of your customized offers 1 time a day by email. With the Premium profile, you have 5 watchdogs at your fingertips and when something comes up, they notify you immediately.























