House for sale 3+1 • 87 m² without real estateBURGBLICK GRUNDSTÜCK EXKLUSIV NUR FÜR DANWOOD-HAUSBAU Güssing Burgenland 7540
BURGBLICK GRUNDSTÜCK EXKLUSIV NUR FÜR DANWOOD-HAUSBAU Güssing Burgenland 7540Public transport 2 minutes of walking • GarageBungalow: Below in the PDF you will find several price examples!
Dear Builders and Future Homeowners,
Do you want to realize your dream of owning your own home but aren’t sure which provider is right for you or who can offer you a house built in the style you desire?
With DAN-WOOD-HOUSE you can make your dream home a reality – even if you don’t have a concrete construction plan yet. Choose from 130 different types of houses and customize them for free to suit your wishes. Moreover, various wall construction options are available.
What a brilliant insight: It is not about what DAN-WOOD or the individual companies offer, but how your personal vision of your dream home looks! Here, you will be offered thorough consulting that will truly impress you!
I offer you my individual consultation for your project! I start with an initial consultation, preferably conducted on your building plot. The shape, elevation differences, and orientation of the plot are the absolute stars of the show!
Don’t have a plot yet? No problem! I will gladly give you an overview of the many great design possibilities of DAN-WOOD houses. There are so many exciting aspects to consider: the type of house, the layout, the roof design, the heating, the electrical system, shading solutions, and potential features like “Smart Home.”
It is really important to know the total financial effort including sample planning!
I am pleased to inform you that I will conduct a preliminary sample planning for this. This way, you can easily budget for these costs! It’s truly a great help! With this you can not only create a financing plan but also search for financing.
Don’t hesitate, contact me now! 0676 5537747
Catalog orders under "Katalog Serie Today" tatjana.wyss@danwood.at
Please include your address and your telephone number when ordering
On your plot or in…
Güssing: Approximately 2,600m², completely flat location. Plot sizes and plot positions freely selectable. Sizes range from 500m² – 1500m².
Here are the top-class building plots! In an excellent location with a breathtaking view of the beautiful Güssing Castle!
Güssing offers a future-proof, affordable, and energy-independent life in the countryside, making an investment in property there a strategic asset.
Why Güssing
Energy Pioneer and Sustainability:
The town is energy self-sufficient and internationally recognized.
High coverage (over 85%) with regional biomass district heating leads to stable, low heating costs.
Affordable property prices:
Prices are still significantly lower than the Austrian average, which makes the dream of a home with generous plots possible.
Strong Infrastructure and Quality of Life:
As a suburban district capital, Güssing guarantees short distances and the best services.
Planned major investments:
New educational campus and modern medical center (from 2026).
Cultural center (Güssing Castle) and proximity to thermal baths.
The full opening of the S7 brings significant advantages for Güssing and its residents:
Faster connection to major urban areas: The expressway dramatically shortens the travel time to the A2 South Motorway, thereby significantly reducing journeys to Graz and Vienna.
Relief for the region: It diverts through traffic that previously passed through heavily burdened towns like Fürstenfeld and Rudersdorf to the new route.
Economic impulses: The new connection, including the junction at Rudersdorf/Dobersdorf and proximity to the Königsdorf connection, strengthens Güssing as a suburban district capital and economic location through improved accessibility and the promotion of new industrial parks.
Value Stability and Development Potential:
Targeted municipal investments in infrastructure, revitalization of the town center, and the technology center secure the long-term value stability of the properties.
The municipal strategy aims to overcome demographic challenges and establish Güssing as an attractive residential and economic location.
Target Audience
Families seeking a future, safety, and nature, as well as anyone who values low energy costs and ecological responsibility.
Other plots in:
Plot, 8323 Kohldorf: Building plot with plenty of sun in the hilly region of eastern Styria, 15 km from Graz!
Size: 758 m², Purchase Price: €66,000, --
Plot, 8323 Kohldorf: Sunny building plot in Kohldorf, 15 km east of Graz!
Size: 787 m², Purchase Price: €69,000, --
Plot, 8311 Markt Hartmannsdorf: Fully serviced, sunny building plot in Markt Hartmannsdorf
Size: 920 m², Purchase Price: €53,000, --
Plot, 9335 Lölling Graben: Building plot with a stunning distant view in the picturesque Carinthian mountain region
Size: 1001 m², Purchase Price: €50,000, --
Plot, 8075 Hart near Graz: Sunny plot on the outskirts of Graz
Size: 1980 m², Purchase Price: €475,000, --
Plot in Stainz for sale: Sunny plot on the outskirts of Stainz
Size: 825 m², Purchase Price: €149,000,
There is no financial connection between the owner of the plot and the builder of the house.
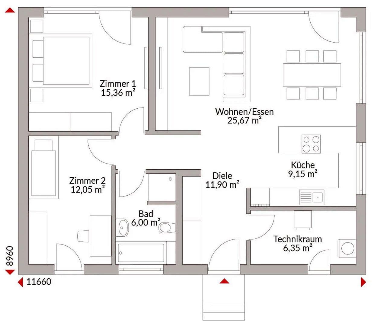
BUNGALOW 3-room with bathroom and WC, exclusive equipment!
Plot available in 500m², 1000m², 1500m² as desired.
Included in the price:
Turnkey execution (move in with your own furniture already in place!)
Delivery and assembly from the top edge of the foundation
Roof structure reinforced for snow load
Air-water heat pump, underfloor heating
Decentralized room ventilation with heat recovery (also cools in summer)
Electric shutters throughout the house
All flooring according to your choice
All sanitary fixtures according to your choice
Photovoltaic preparation
All-around worry-free package
OPTIONAL: Customer work is of course possible!
Consultation – Sales by Ms. Tatjana Wyss
+43 676553 77 47, tatjana.wyss@danwood.at
Immediate information or initial consultation!
Other offers:
https://qr.scan.page/uploads/pdf/1751712478803_686335a001f76.pdf
Request a building description and catalogs!
For this, it is necessary to provide your telephone number, email address, and address.
Thank you!
Property characteristics
| Age | Over 5050 years |
|---|---|
| Layout | 3+1 |
| Usable area | 87 m² |
| Total floors | 1 |
| Condition | New-build |
|---|---|
| Listing ID | 998866 |
| Land space | 1 m² |
| Price per unit | €2,564 / m2 |
What does this listing have to offer?
| Garage |
| MHD 2 minutes on foot |
What you will find nearby
Still looking for the right one?
Set up a watchdog. You will receive a summary of your customized offers 1 time a day by email. With the Premium profile, you have 5 watchdogs at your fingertips and when something comes up, they notify you immediately.












