
House for sale 5+1 • 228 m² without real estateBURGBLICK GRUNDSTÜCK EXKLUSIV NUR FÜR DANWOOD-HAUSBAU Güssing Burgenland 7540
BURGBLICK GRUNDSTÜCK EXKLUSIV NUR FÜR DANWOOD-HAUSBAU Güssing Burgenland 7540Public transport 2 minutes of walkingEfficiency meets emotional intelligence!
Vision by Danwood stands for architecture with character. It is designed for people who take responsibility and make values visible.
Every home is created according to a conceptually sophisticated architectural design: clear in expression, precise in execution, and uncompromising in quality.
For leaders who don’t just build, but shape—with foresight, style, and substance.
On your property or in…
Güssing: Approximately 2,600m² of perfectly flat land. Plot sizes and locations can be chosen freely. Sizes from 500m² to 1500m².
These are premium building plots! In the best location and with a breathtaking view of the beautiful Güssing Castle!
Güssing offers a future-proof, affordable, and energy-independent life in the countryside, making an investment in property there a strategic asset.
Why Güssing
Energy Pioneer and Sustainability:
• The town is energy self-sufficient and internationally recognized.
• An over 85% coverage with regional biomass district heating leads to stable, low heating costs.
Affordable Property Prices:
• Prices are significantly lower than the Austrian average, making the dream of home ownership with spacious plots possible.
Strong Infrastructure and Quality of Life:
• As a district suburb, Güssing guarantees short distances and excellent services.
• Planned large-scale investments: a new education campus and a modern medical center (from 2026).
Cultural center (Güssing Castle) and proximity to thermal baths.
The complete opening of the S7 brings significant benefits for Güssing and its residents:
• Faster connection to urban centers: The expressway significantly reduces travel time to the A2 South Motorway, markedly shortening journeys to Graz and Vienna.
• Relief for the region: It reroutes transit traffic, which previously burdened towns like Fürstenfeld and Rudersdorf, onto the new route.
• Economic impulses: The new connection—including the junction at Rudersdorf/Dobersdorf and the proximity to the Königsdorf connection—strengthens Güssing as a district suburb and economic location by improving accessibility and promoting new commercial parks.
Value Stability and Development Potential:
• Targeted municipal investments in infrastructure, revitalization of the town center, and the technology center ensure the long-term value stability of the properties.
• The municipal strategy aims to overcome demographic challenges and establish Güssing as an attractive residential and economic location.
Target Audience
Families seeking a future, security, and nature, as well as anyone who values low energy costs and ecological responsibility.
Other properties in:
Property, 8323 Kohldorf: Building plot with abundant sunlight in the rolling hills of Styria, 15 km from Graz!
Size: 758 m², Purchase price: €66,000, --
Property, 8323 Kohldorf: Sunny building plot in Kohldorf, 15 km east of Graz!
Size: 787 m², Purchase price: €69,000, --
Property, 8311 Markt Hartmannsdorf: Fully serviced, sunny building plot in Markt Hartmannsdorf
Size: 920 m², Purchase price: €53,000, --
Property, 9335 Lölling Graben: Building plot with a dreamlike distant view in the picturesque Carinthian mountains
Size: 1001 m², Purchase price: €50,000, --
Property, 8075 Hart near Graz: Sunny plot on the outskirts of Graz
Size: 1980 m², Purchase price: €475,000, --
Property for sale in Stainz: Sunny plot on the edge of Stainz
Size: 825 m², Purchase price: €149,000
There is no economic connection between the owner of the plot and the builder of the house.
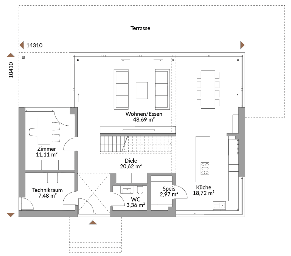
VISION Turnkey Construction and Service Description – Houses on a base slab!
Scope of Services
ROOM HEIGHTS: Ground floor 3.05m, Attic 2.67m
Technology
Technology that makes living easier. The Today 3BL technology package combines modern heat pump technology with a generous hot water storage and an intelligent ventilation system. The result: a home that automatically maintains a pleasant room climate – warm in winter, fresh in summer, efficient all year round. The underfloor heating ensures cozy warmth in every room, while the central ventilation system with heat recovery saves energy and ensures consistently fresh air. A technology package that perfectly combines comfort, efficiency, and future-proofing.
Electric Roller Shutters:
The roller shutters by DANWOOD are the perfect complement to the energy-efficient DANWOOD construction style. They protect from heat in the summer, keep the warmth in the house during winter, and always provide privacy and security. With electric operation or smart control, they are conveniently and intuitively usable—a daily convenience you can feel. In short, at DANWOOD roller shutters are optional but can be perfectly integrated technologically—electric, durable, and ideal for modern architecture.
Sanitary Fittings:
• Shower – safe, comfortable, and ideal for both children and adults
• Wall-hung WC – easy to clean, hygienic, and family-friendly
• Washbasin
• High-quality fixtures – durable, easy to operate, temperature-stable
• Optional depending on the model:
• Bathtub – perfect for children, relaxation, or shared evening rituals
• Double washbasin – no morning rush
• Concealed fittings – safe, elegant, and easy to clean
Everything is designed to simplify everyday life and remain attractive over time.
Painting Works:
Walls & Ceilings – Ready for move-in. All interior walls and ceilings are finished turnkey to a high standard. This means:
• Smooth, spackled, and sanded surfaces
• White final coating in high-quality dispersion paint
• Clean, uniform appearance in all living areas. DANWOOD delivers the finished surface.
• No visible joints or transitions thanks to industrial precision
This makes the house immediately habitable without the need for additional painting.
Vinyl/Laminate/Tiles:
Living and sleeping areas – warm, robust, inviting!
All living and sleeping areas are equipped with high-quality, easy-care floor coverings that combine warmth, comfort, and everyday practicality. Standard finish (depending on the model):
• High-quality design vinyl flooring in a wood look
• Durable, quiet, and warm underfoot
• Ideal for families, pets, and daily use
• Harmonious color ranges (light oak, natural oak, gray oak – depending on the selection in the Design Center Pinkafeld)
Optional:
• Premium quality laminate
• Real wood parquet (at an extra charge)
• Alternative design lines (concrete look, dark wood look, warm natural tones)
Note: All house prices are based on the top edge of the base slab. Illustrations may show optional special features.
Property characteristics
| Age | Over 5050 years |
|---|---|
| Layout | 5+1 |
| Usable area | 228 m² |
| Total floors | 2 |
| Condition | New-build |
|---|---|
| Listing ID | 998855 |
| Land space | 1 m² |
| Price per unit | €3,300 / m2 |
What does this listing have to offer?
| MHD 2 minutes on foot |
What you will find nearby
Still looking for the right one?
Set up a watchdog. You will receive a summary of your customized offers 1 time a day by email. With the Premium profile, you have 5 watchdogs at your fingertips and when something comes up, they notify you immediately.






























