House for sale 4+1 • 124 m² without real estateGRUNDSTÜCK EXKLUSIV NUR FÜR DANWOOD-HAUSBAU ORTSRAND STAINZ St Stefan ob Stainz Steiermark 8511
GRUNDSTÜCK EXKLUSIV NUR FÜR DANWOOD-HAUSBAU ORTSRAND STAINZ St Stefan ob Stainz Steiermark 8511Public transport less than a minute of walking • GarageBelow is the translation of the text marked by the tag into English:
Despite its small footprint, this house meets all the requirements of modern living. This space-saving marvel satisfies every demand of contemporary living – with maximum functionality. Perfect for those who plan deliberately and don’t want to compromise on anything. A well-thought-out home that surprises with its light-filled living area, clever layout, and everything modern living demands. For people who love the essentials – and appreciate comfort.
Functional, efficient, comfortable: This house demonstrates how much quality of life can be found in compact architecture. Ideal for those who plan with foresight – and make intelligent use of space.
On your own plot or in…
Güssing: Approximately 2,600 m², completely flat site. Plot sizes and locations are freely selectable. Sizes range from 500 m² to 1,500 m².
Here are the top-class building plots! In the best location with a breathtaking view of the beautiful Güssing Castle!
Güssing offers a future-proof, affordable, and energy-independent life in the greenery, making an investment in a property there a strategic asset.
Why Güssing
Energy Pioneer and Sustainability:
The town is energy self-sufficient and internationally recognized.
A high percentage (over 85%) of regional biomass district heating leads to stable, low heating costs.
Affordable Property Prices:
Prices are still considerably lower than the Austrian average, making the dream of owning a home with spacious plots achievable.
Strong Infrastructure and Quality of Life:
As a suburban district town, Güssing guarantees short distances and excellent services.
Planned major investments:
New education campus and modern medical center (from 2026).
Cultural center (Güssing Castle) and proximity to thermal baths.
The full opening of the S7 brings significant benefits for Güssing and its residents:
Faster connection to metropolitan areas: The expressway drastically reduces travel time to the A2 South Motorway, significantly cutting down travel times to Graz and Vienna.
Relief for the region: It diverts through traffic that previously burdened villages like Fürstenfeld and Rudersdorf onto the new route.
Economic incentives: The new connection – including the junction at Rudersdorf/Dobersdorf and the proximity to the Königsdorf junction – strengthens Güssing as a suburban district and economic location through improved accessibility and the promotion of new business parks.
Value Stability and Development Potential:
Targeted municipal investments in infrastructure, revitalization of the city center, and the technology center secure the long-term value stability of the properties.
The municipal strategy aims to overcome demographic challenges and establish Güssing as an attractive residential and business location.
Target Audience
Families seeking a future, security, and nature – as well as anyone who values low energy costs and ecological responsibility.
Other Plots in:
Plot, 8323 Kohldorf: Building plot with plenty of sun in the hilly area of Eastern Styria, 15 km from Graz!
Size: 758 m², Purchase price: €66,000
Plot, 8323 Kohldorf: Sunny building plot in Kohldorf, 15 km east of Graz!
Size: 787 m², Purchase price: €69,000
Plot, 8311 Markt Hartmannsdorf: Fully serviced, sunny building plot in Markt Hartmannsdorf
Size: 920 m², Purchase price: €53,000
Plot, 9335 Lölling Graben: Building plot with a dreamy long-distance view in the picturesque Carinthian mountains
Size: 1,001 m², Purchase price: €50,000
Plot, 8075 Hart near Graz: Sunny plot at the doorstep of Graz
Size: 1,980 m², Purchase price: €475,000
Plot for sale in Stainz: Sunny plot on the outskirts of Stainz
Size: 825 m², Purchase price: €149,000
There is no financial connection between the owner of the plot and the builder of the house.
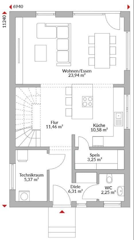
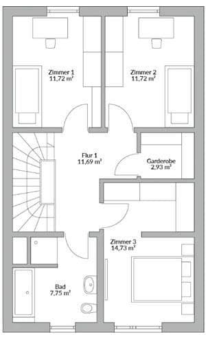
Single-family house with 4 rooms – Exclusive features!
Turnkey including delivery & installation from the top of the foundation.
☑ Snow load–reinforced roof truss
☑ Air-to-water heat pump & underfloor heating
☑ Mechanical ventilation with heat recovery (summer cooling)
☑ Electric shutters throughout the house
☑ Floor coverings & sanitary fixtures freely selectable
☑ Photovoltaic preparation
☑ All-around worry-free package
Self-performance is possible – completely according to your ideas.
Consulting & Sales:
Ms. Tatjana Wyss
+43 676 553 77 47
tatjana.wyss@danwood.at
Secure your initial consultation now!
Request a building description and catalogs!
For this, it is necessary for you to provide your telephone number, email address, and address.
Thank you!
FINANCIAL CALCULATOR
https://www.finaustria.at/finanzierungsrechner
MORE OFFERS!
https://qr.scan.page/uploads/pdf/1752348182250_686ba1debcb60.pdf
Property characteristics
| Condition | New-build |
|---|---|
| Listing ID | 998846 |
| Land space | 1 m² |
| Price per unit | €2,248 / m2 |
| Layout | 4+1 |
|---|---|
| Usable area | 124 m² |
| Total floors | 2 |
What does this listing have to offer?
| Garage |
| MHD 0 minutes on foot |
What you will find nearby
Still looking for the right one?
Set up a watchdog. You will receive a summary of your customized offers 1 time a day by email. With the Premium profile, you have 5 watchdogs at your fingertips and when something comes up, they notify you immediately.





















