
House for sale 5+1 • 126 m² without real estateEschenweg 41 Bamberg Bamberg Bayern 96050
You save €19,278 in broker’s fees.
This well-maintained terraced mid-terrace house, built in 2000, is located in the quiet and popular former NATO settlement – a family-friendly area with a strong sense of community.
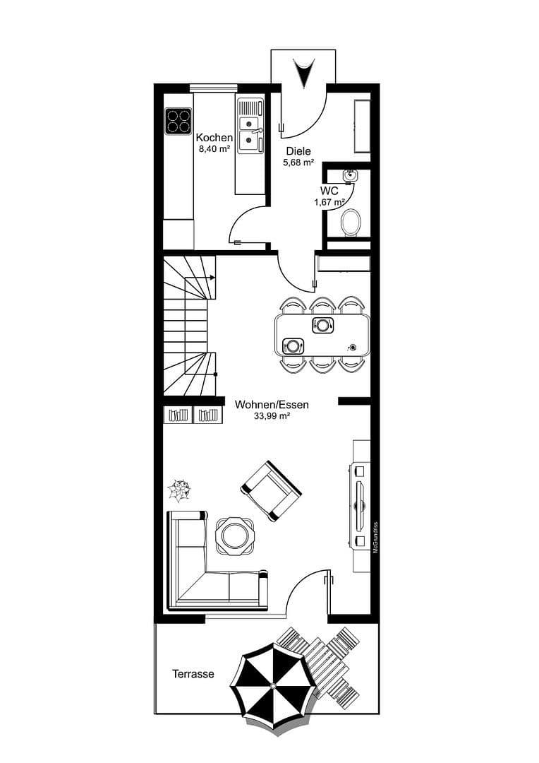
On the ground floor, you will find a bright living room of approximately 34 m² with access to the sunny west terrace – ideal for relaxed evenings and convivial moments. A separate kitchen, a guest WC, and an entrance area complete this level.
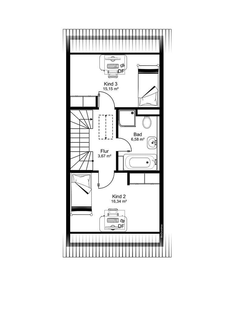
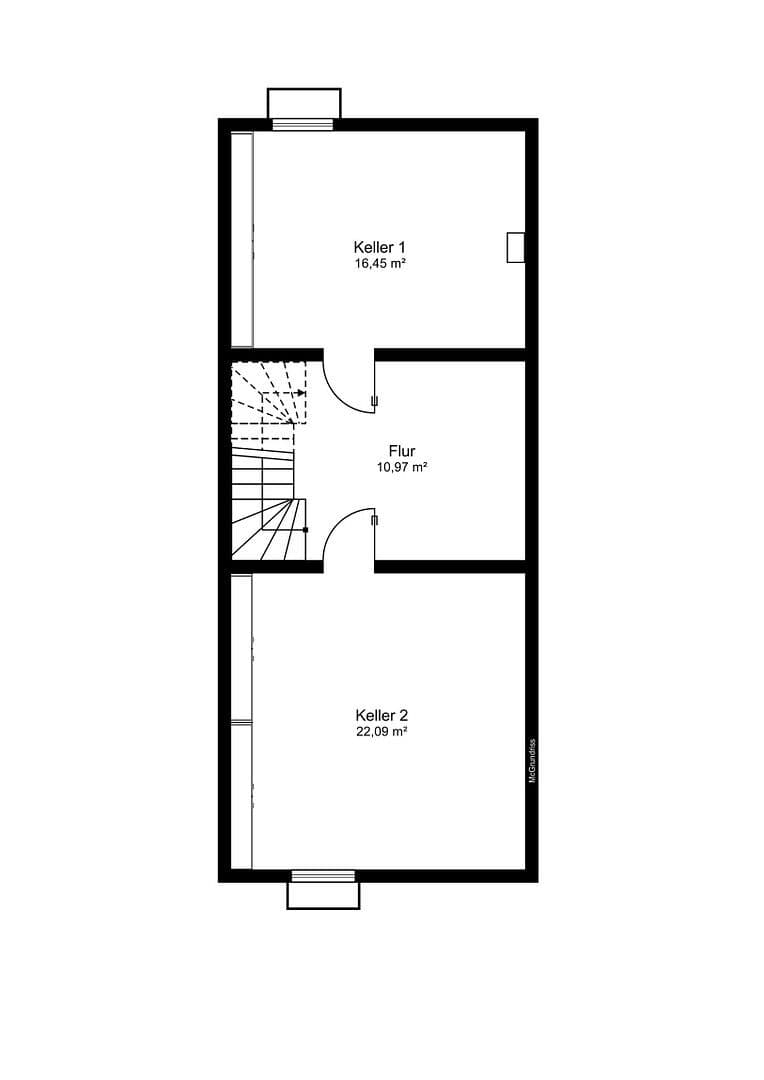
On the upper floors, there are four spacious bedrooms along with two large bathrooms equipped with a shower and a bathtub – perfect for families, guests, or a home office. The full basement offers additional storage space and flexible usage options.
The house is modern, well-insulated, and boasts excellent energy efficiency – a bonus for comfort and low running costs. Two outdoor parking spaces can be purchased additionally for €20,000.
A home that impresses with its space, layout, and inviting atmosphere – ideal for families of up to five people.
Eschenweg in the former “NATO Settlement” in the eastern part of Bamberg is more than just an address – it is a place to arrive and feel at home. The quiet residential area, characterized by abundant greenery and a harmonious neighborhood, has long been established as a popular retreat for young families.
Here, children can still play carefree on safe streets while you enjoy the exceptional quality of living. The settlement exudes an atmosphere of security and community – a genuine sense of home that you feel instantly.
Despite its idyllic location, you are excellently connected: only about 500 meters away, the city bus stop, with services every 15 minutes, takes you conveniently to the city center. By car, the motorway junction is reached in only about 1,000 meters – perfect for commuters or excursions to the surrounding area.
Shopping opportunities, schools, kindergartens, and leisure facilities are all located in the immediate vicinity, ensuring that you and your family enjoy short distances and the highest quality of living.
Eschenweg combines quiet, nature-oriented living with excellent infrastructure – creating the ideal environment where family life and everyday dreams go hand in hand.
Property characteristics
| Age | Over 5050 years |
|---|---|
| Condition | Good |
| Listing ID | 998770 |
| Usable area | 126 m² |
| Total floors | 3 |
| Available from | 10/03/2026 |
|---|---|
| Layout | 5+1 |
| EPC | B - Very economical |
| Land space | 178 m² |
| Price per unit | €4,127 / m2 |
What does this listing have to offer?
| Basement | |
| MHD 7 minutes on foot |
| Parking | |
| Terrace |
What you will find nearby
Still looking for the right one?
Set up a watchdog. You will receive a summary of your customized offers 1 time a day by email. With the Premium profile, you have 5 watchdogs at your fingertips and when something comes up, they notify you immediately.























