House for sale 6+1 • 135 m² without real estateMauthausen Mauthausen Oberösterreich 4310
Mauthausen Mauthausen Oberösterreich 4310Public transport less than a minute of walkingModernized townhouse with garden and roof terrace – quiet in the center
This charming townhouse from around 1890 is located in the heart of Mauthausen and yet surprisingly quiet at the end of a dead-end street without through traffic. A rare combination: central location, a peaceful environment, and a private garden.
Particularly attractive for buyers: The most important technical investments have already been completed in recent years.
Major investments already made:
- New Prefa roof including additional insulation (2023)
- New gas condensing heating system (2022)
- Photovoltaic system with approx. 5.5 kWp
- Modern DAN kitchen with natural stone worktop (2014)
Thus, the most cost-intensive measures have been taken care of for many years – a clear advantage compared to many comparable older buildings.
Key data:
• Living area: approx. 135 m²
• Plot: approx. 187 m²
• Rooms: 6
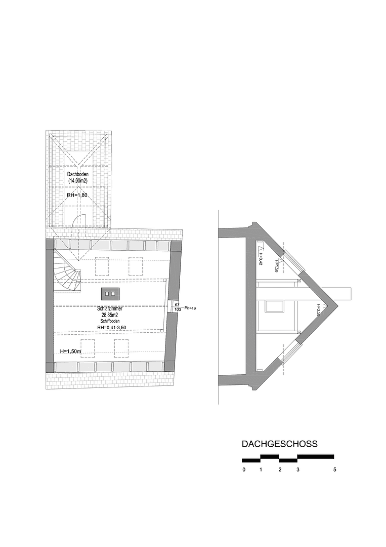
• Levels: 3 + converted attic
• Basement: approx. 35 m² with a separate entrance
• Year built: approx. 1890
• Heating: Gas condensing (2022)
• Photovoltaics: approx. 5.5 kWp
Room layout:
The approximately 135 m² of living space are spread over several levels and offer versatile possibilities – ideal for families, home offices, or creative projects.
The house features:
- 6 rooms
- Modern kitchen
- Bathroom (shower in need of renewal)
- 2 WCs
- Basement with a separate entrance
The layout is suitable for both classic residential use and for a home office, studio, or combined living and working spaces.
Garden & Outdoor Areas:
A particular highlight is the private garden on the residential level – a secluded retreat right in town.
Additionally, there is a brick garden house on the property with approx. 16 m² and water connections. This offers numerous possibilities, such as:
- Studio or atelier
- Guest room
- Small office
- Wellness or bathroom area
On the roof of the garden house is an approx. 20 m² terrace with expansive views all the way to the Alps.
The property includes a total of two garden areas (approx. 30 m² and approx. 50 m²) – ideal for seating areas, gardening projects, or play areas.
The house is centrally located in the historic center of Mauthausen and yet quiet at the end of a small cul-de-sac. A particularly striking feature is the direct view of the historic Karner – a characteristic element of the townscape.
Shops, restaurants, and infrastructure are within walking distance.
Schools and kindergarten
Property characteristics
| Age | Over 5050 years |
|---|---|
| Condition | Good |
| Listing ID | 998764 |
| Land space | 180 m² |
| Price per unit | €2,141 / m2 |
| Available from | 14/03/2026 |
|---|---|
| Layout | 6+1 |
| Usable area | 135 m² |
| Total floors | 3 |
What does this listing have to offer?
| MHD 0 minutes on foot |
What you will find nearby
Still looking for the right one?
Set up a watchdog. You will receive a summary of your customized offers 1 time a day by email. With the Premium profile, you have 5 watchdogs at your fingertips and when something comes up, they notify you immediately.










