House to rent • 220 m² without real estateAm Giesenbach 14, , Baden-Württemberg
Am Giesenbach 14, , Baden-WürttembergPublic transport 3 minutes of walking • Parking**** ATTENTION, PLEASE READ!!! ****
IF YOU ARE INTERESTED IN THE HOUSE:
Please contact me via the contact form and include the following:
- How many people will be occupying the house?
- What do you do for work, and where do you work?
- Do you have any negative credit records?
- What pets do you have?
- When would you like to move in?
Please include your mobile phone number!
************************
This solidly built, vacant detached house from 1973 offers approximately 220 m² of living space with versatile possibilities. Here you will find room for your individual living dreams. The house is located in the attractive area of Lahr-Reichenbach.
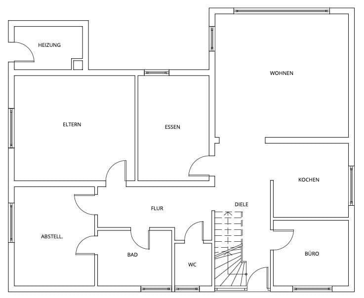
GROUND FLOOR:
- Inviting entrance area
- Guest WC
- Guest room or office
- Spacious living and dining room with an attached kitchen
- Access to the sunny terrace and garden
- Conservatory with a fireplace
- Modern bathroom
- Two bedrooms
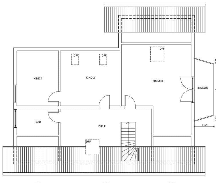
UPPER FLOOR:
- Three additional bedrooms
- One bathroom
- Access to the balcony
PROPERTY DETAILS:
- Year built: 1973
- Fictitious construction year: 1999 (due to modernizations)
- Construction type: solid house
- Condition: vacant, partly in need of renovation
- Heating: gas central heating
- Carport available
- Property with attractive design potential
- Available immediately
Currently, the interior (floors, walls, ceilings) needs renovation. If we come to an agreement, I will be happy to have the rooms designed to your wishes.
The energy certificate is currently being prepared.
Real estate agent inquiries are expressly not desired and will not be answered.
Property characteristics
| Age | Over 5050 years |
|---|---|
| Listing ID | 998080 |
| Land space | 857 m² |
| Price per unit | €9 / m2 |
| Available from | 07/03/2026 |
|---|---|
| Usable area | 220 m² |
| Total floors | 2 |
What does this listing have to offer?
| Balcony | |
| Parking | |
| Terrace |
| Basement | |
| MHD 3 minutes on foot |
What you will find nearby
Still looking for the right one?
Set up a watchdog. You will receive a summary of your customized offers 1 time a day by email. With the Premium profile, you have 5 watchdogs at your fingertips and when something comes up, they notify you immediately.























