Flat to rent 6+1 • 126 m² without real estateBerlin Adlershof Berlin 12489
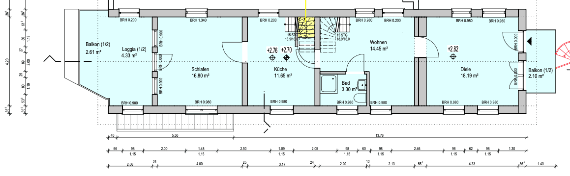
Berlin Adlershof Berlin 12489Public transport 1 minute of walking • ParkingThis bright and spacious 6‑room apartment with approximately 126 m² of living space is located on the 2nd floor and attic of a 2‑family house in Berlin Adlershof. The apartment features a large covered balcony that invites relaxation as well as a carport for your vehicle. A separate guest WC and an additional WC in the attic enhance the comfort. The living quality is average and provides room for personal design. The apartment will be available from April 1, 2026. Pets are allowed by arrangement. A communal garden is also available.
The address is located in the Adlershof district in Treptow-Köpenick, Berlin, right next to a small wooded area. Adlershof is a lively neighborhood with good public transport connections via S-Bahn, bus, and tram, and it is within walking distance to the Köpenicker Altstadt. The area is considered safe and offers a pleasant environment for young families and professionals.
If needed, furnished rental is available, even for temporary/move-in ready accommodations.
Upon consultation, other room layouts are possible.
Property characteristics
| Age | Over 5050 years |
|---|---|
| Condition | Good |
| Floor | 1. floor out of 2 |
| EPC | B - Very economical |
| Price per unit | €17 / m2 |
| Available from | 01/04/2026 |
|---|---|
| Layout | 6+1 |
| Listing ID | 998044 |
| Usable area | 126 m² |
What does this listing have to offer?
| Balcony | |
| MHD 1 minute on foot |
| Parking |
What you will find nearby
Still looking for the right one?
Set up a watchdog. You will receive a summary of your customized offers 1 time a day by email. With the Premium profile, you have 5 watchdogs at your fingertips and when something comes up, they notify you immediately.
















