Commercial property to rent 7+1 • 190 m² without real estateHebbelstraße 24, , Schleswig-Holstein
Hebbelstraße 24, , Schleswig-HolsteinPublic transport 1 minute of walking • GarageIn a central location in Hohenlockstedt, a well-maintained commercial space with a total area of approximately 190 m² is now available for rent. Due to its flexible room structure, the property is suitable for various usage concepts, in particular for gastronomy (bar, café), retail premises, office spaces, agencies, studios, or consultation rooms.
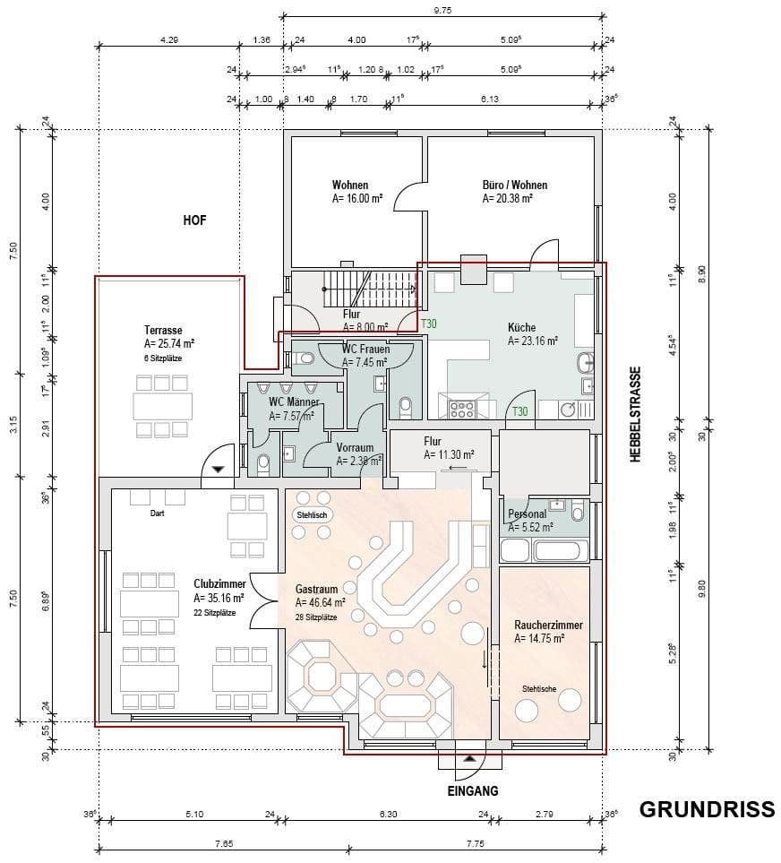
The premises are characterized by a functional layout and diverse design possibilities. A counter area is already in place, which is particularly suitable for use as a bar or café and can be individually adapted if needed. The space is further complemented by separate sanitary facilities for ladies and gentlemen as well as a terrace with its own access.
Equipment and Features:
- Total area: approx. 190 m²
- Two large, flexibly usable rooms that can be separated if required
- Existing counter/bar area
- Separate sanitary facilities (ladies and gentlemen)
- Terrace with separate access
- Parking facilities in the immediate vicinity
- Well-maintained condition and pleasant atmosphere
Special Features:
- Good visibility and central accessibility within Hohenlockstedt
- Flexible usage possibilities (bar, café, retail premise, office, practice, studio, or storage)
- Opportunity for individual room design
- Possibility of modifications for long-term leases available upon agreement
Rental Start:
The property is available for rent immediately. A long-term rental can be arranged individually.
The commercial space is located in a central area of Hohenlockstedt. The location is characterized by good accessibility and well-developed infrastructure, offering attractive conditions for various commercial usage concepts.
In the immediate vicinity, there are various retail stores, service companies, and gastronomic offerings, ensuring a continuous flow of customers in the area. This commercial mix makes the location suitable both for traditional retail premises and for gastronomy concepts such as cafés or bars.
The transport connection can be evaluated as favorable. The municipality is well positioned between the cities of Itzehoe and Neumünster and is easily accessible via regional traffic routes. This ensures good accessibility for both local customers and delivery traffic.
In addition, parking facilities are available in the immediate vicinity of the commercial space, ensuring convenient access for visitors and customers. Overall, the location is characterized by a central position, solid infrastructure, and good regional connectivity.
The commercial space is in a well-maintained condition and, thanks to the flexible room structure, offers versatile usage options for different business models. The generously proportioned rooms can be separated or individually adapted if necessary, enabling both open usage concepts and separate work or treatment areas.
An existing counter or bar area already provides a suitable basis for gastronomic uses such as a bar or café, but it can also be adapted or redesigned to meet other commercial requirements. In addition, separate sanitary facilities for ladies and gentlemen are available.
Particularly noteworthy is the terrace with separate access, which offers additional usage possibilities, for example for outdoor gastronomic areas or waiting areas. The space’s equipment thus provides a solid foundation for individual room design tailored to the respective business concept.
For long-term leasing, there is also the possibility, subject to agreement, to carry out modifications or adaptations to optimally adjust the premises to business needs.
Property characteristics
| Age | Over 5050 years |
|---|---|
| Condition | Good |
| Listing ID | 997639 |
| Price per unit | €8 / m2 |
| Available from | 14/03/2026 |
|---|---|
| Layout | 7+1 |
| Land non-residential space | 190 m² |
What does this listing have to offer?
| Garage | |
| Terrace |
| MHD 1 minute on foot |
What you will find nearby
Still looking for the right one?
Set up a watchdog. You will receive a summary of your customized offers 1 time a day by email. With the Premium profile, you have 5 watchdogs at your fingertips and when something comes up, they notify you immediately.





