
Flat for sale 3+1 • 60 m² without real estate, Lower Saxony
, Lower SaxonyPublic transport 2 minutes of walkingThis 3-room apartment in a three-family house built in 1909 is in good condition and can be taken over on short notice. Only the bathroom should be renovated before moving in. After that, this condominium can be rented out under attractive conditions, offering an ideal opportunity for capital investors. The neighboring apartment generates a monthly net rent of €650.
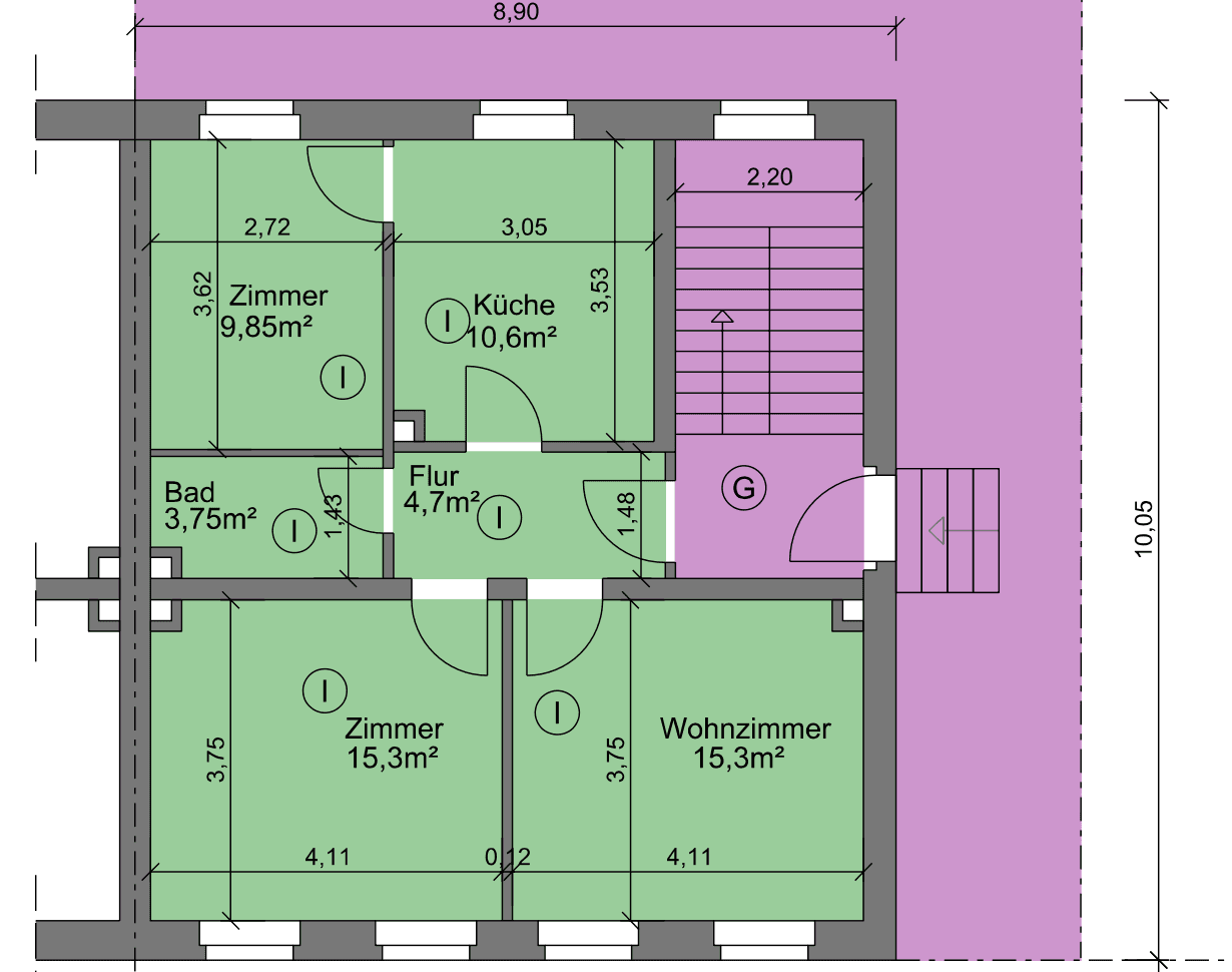
A functional layout over approximately 60 m² provides space for living, sleeping, working, or hosting guests. The apartment is currently vacant and available for immediate takeover. The unit is heated by its own gas central heating system (built in 2005). In addition, the apartment comes with a large basement storage room that offers plenty of storage space.
The apartment is located in a very central location. It lies in a relatively quiet dead-end street, yet it is very well connected. Shops, doctors, schools, and the Peine train station are all in close proximity. In addition, the local bus stop is just a few steps from the front door.
The apartment’s bathroom is in need of renovation. If desired, we can carry out the renovation and also take care of renting out the apartment. Please feel free to discuss this with me. In the images, you will see one picture that was created using artificial intelligence. It is marked with "KI" (AI) in the description. This is how the bathroom could look without much effort.
All the information provided in the exposé and advertisement has been compiled to the best of my knowledge and belief. As the owner, I assure you that I am not aware of any hidden defects that I would deceitfully conceal from the buyer. Changes, errors, and an intermediate sale are reserved. The energy certificate will be available for inspection.
Property characteristics
| Age | Over 5050 years |
|---|---|
| Layout | 3+1 |
| EPC | G - Extremely uneconomical |
| Price per unit | €1,750 / m2 |
| Available from | 15/03/2026 |
|---|---|
| Listing ID | 997577 |
| Usable area | 60 m² |
What does this listing have to offer?
| Basement |
| MHD 2 minutes on foot |
What you will find nearby
Still looking for the right one?
Set up a watchdog. You will receive a summary of your customized offers 1 time a day by email. With the Premium profile, you have 5 watchdogs at your fingertips and when something comes up, they notify you immediately.






