
Office to rent • 200 m² without real estateFriedrichshain-Kreuzberg - Kreuzberg Kreuzberg Berlin 10965
Friedrichshain-Kreuzberg - Kreuzberg Kreuzberg Berlin 10965Public transport 1 minute of walking • ParkingIn the midst of the famous Riehmers Hofgarten in Berlin-Kreuzberg, this beautiful commercial unit is located in a quiet and prestigious setting between two landscaped inner courtyards.
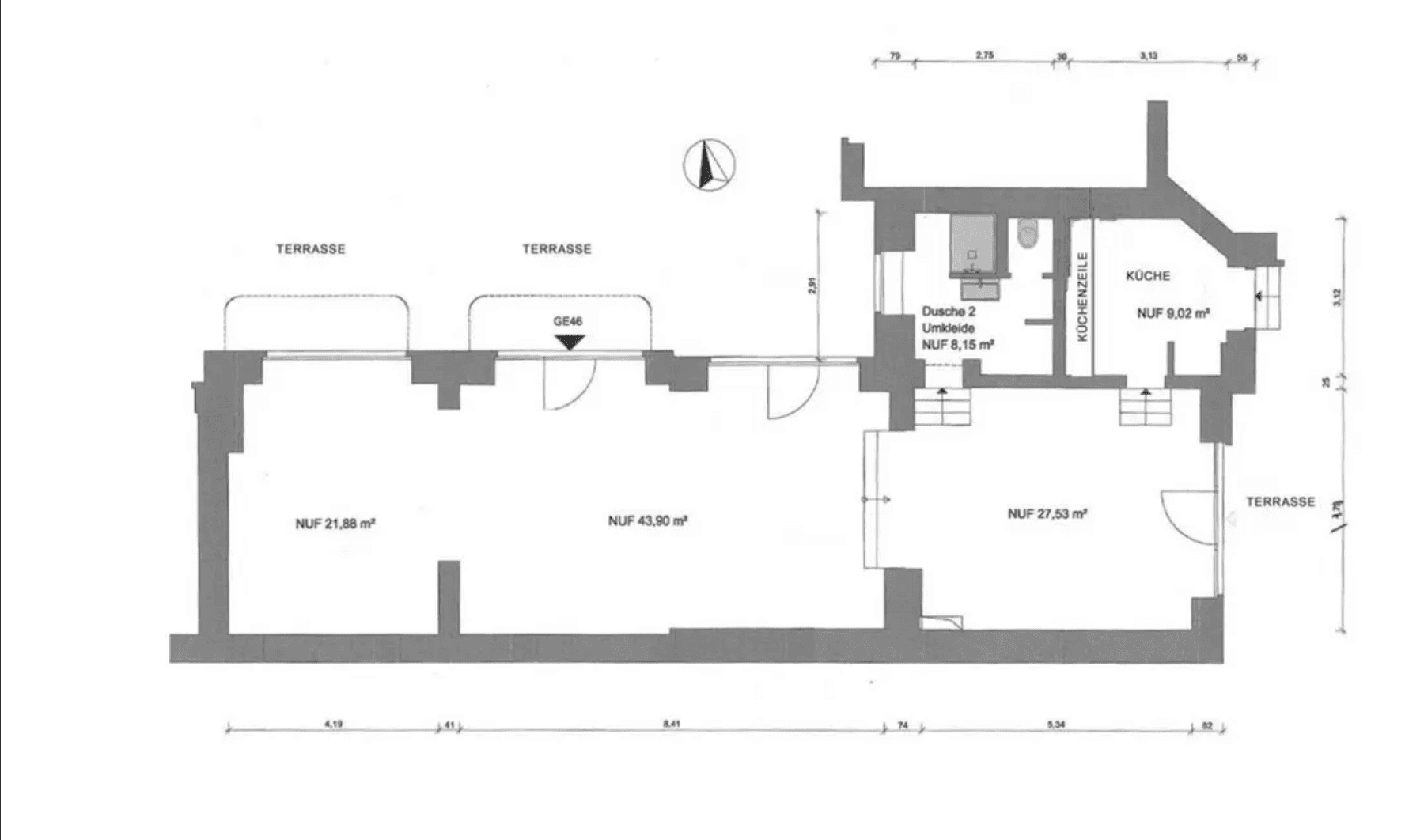
It is offered as either a partial or full commercial unit. Its use is flexible – suitable both for living and working (for example, as a studio, office with a residential component, or creative space) as well as for exclusively commercial purposes.
The high ceilings and large glazed door elements give the unit a distinctive, open character and create a bright, pleasant atmosphere.
In addition to the generous work or living space, the unit features a kitchen with fitted appliances and a sanitary area with a toilet and shower. Two terraces of approximately 70 m² each and two basement rooms are also included.
Depending on the intended use and redesign concept, this unit provides the ideal framework for prestigious work, creative endeavors, or a combination of living and commercial activities.
The commercial unit is situated in the middle of the famous Riehmers Hofgarten, an ensemble of buildings from the Gründerzeit that is now under historic preservation.
The Riehmers Hofgarten in Berlin-Kreuzberg was built between 1881 and 1890. It is an impressive residential ensemble initiated by Wilhelm Riehmer, a Berlin entrepreneur, with Ernst Spindler as the architect.
The idea was particularly innovative for the Gründerzeit – to create a high-quality residential quarter with a spacious inner courtyard and garden complex – at a time when cramped rental housing was more common. Today, Riehmers Hofgarten is considered one of Berlin’s most significant architectural monuments from that era and is protected by heritage conservation laws.
All around – right in the heart of Kreuzberg – there are numerous shops and restaurants in the neighborhood between Yorckstraße, Großbeerenstraße, Hagelberger Straße, and Mehringdamm in the immediate vicinity, as well as the Viktoriapark, which invites you to take extended walks.
Public transportation – including the Mehringdamm U-Bahn station – and shops for daily needs are just a stone’s throw away from Riehmers Hofgarten.
Quiet yet in one of the best locations in Berlin!
- Loft character – 1 large, light-filled room
- Extra high ceilings
- Fitted kitchen with ceramic hob, oven, extractor hood, refrigerator, and dishwasher
- Toilet and shower
- Parquet flooring (mosaic pattern) in oak and oak wood planks in the entrance area
- Large wooden windows
- Door fittings in retro design
- View into 2 landscaped inner courtyards
- 2 basements (approximately 35 m² each)
- Direct access to the basement area from the unit
- 2 terraces (approximately 70 m²)
- Alarm system
- Gardener available upon arrangement
The space is flexible and suitable for various uses, such as a showroom, retail space, office or studio, as well as residential accommodation.
Property characteristics
| Age | Over 5050 years |
|---|---|
| Condition | Very good |
| Land office | 200 m² |
| Available from | 19/03/2026 |
|---|---|
| Listing ID | 997327 |
| Price per unit | €15 / m2 |
What does this listing have to offer?
| Wheelchair accessible | |
| Parking | |
| Terrace |
| Basement | |
| MHD 1 minute on foot |
What you will find nearby
Still looking for the right one?
Set up a watchdog. You will receive a summary of your customized offers 1 time a day by email. With the Premium profile, you have 5 watchdogs at your fingertips and when something comes up, they notify you immediately.










