House for sale 6+1 • 189 m² without real estate, North Rhine-Westphalia
For sale is a detached, brick-clad single-family house with an energy efficiency rating of KfW 55, built in 2018. The house combines modern architecture, excellent construction quality, and high-end technical equipment on a spacious plot of approximately 794 m². It offers around 260 m² of livable space spread over three floors, which can be flexibly arranged for families, home office use, or multi-generational living.
• Living area (according to WoFIV): approx. 188.8 m²
• Usable area (according to DIN 277): approx. 164.6 m²
• Total usable area (excluding terraces/balcony/storage): approx. 353.4 m²
Thanks to geothermal energy, controlled residential ventilation, underfloor cooling/heating, and smart home technology, you will experience the utmost living comfort with extremely low energy costs.
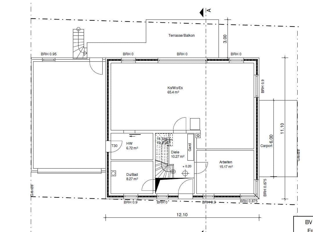
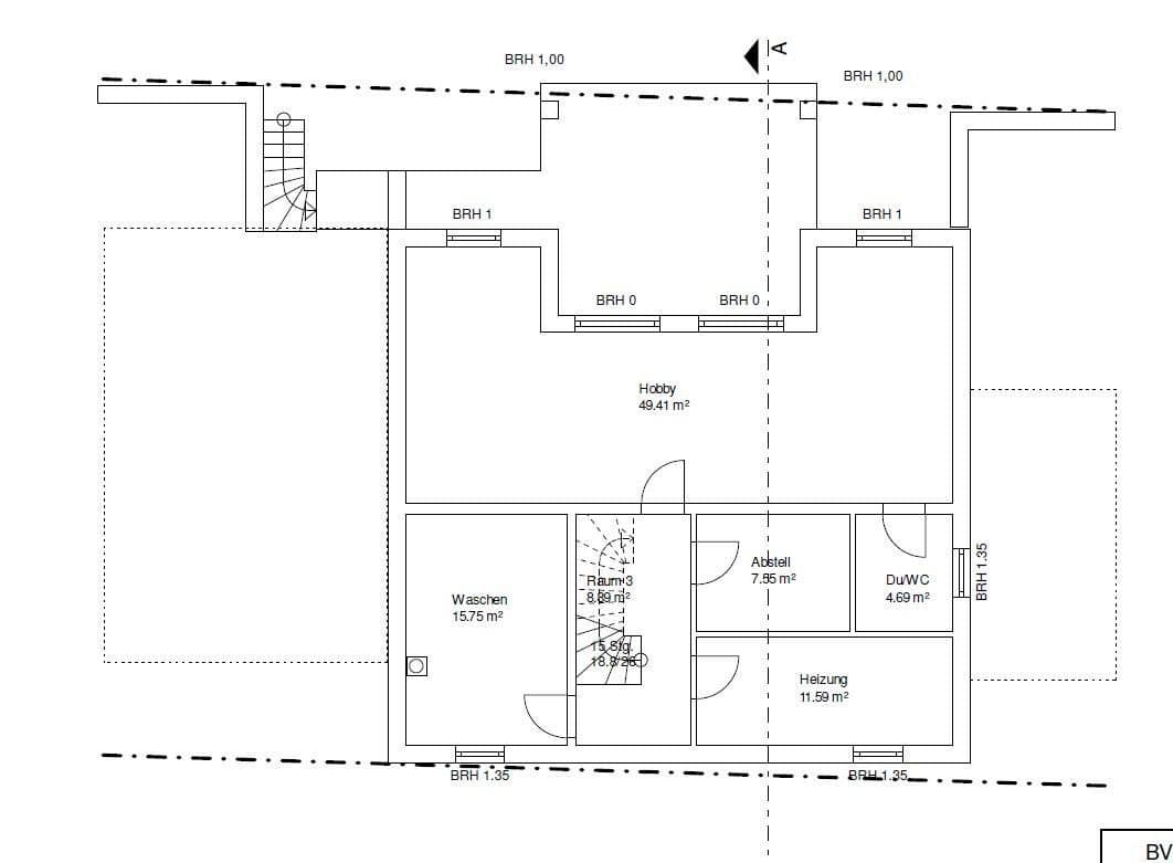
Floor Plans / Room Layout
Ground Floor:
• Open living/dining/kitchen area
• Home office (optional)
• Guest WC with shower
• Utility room with additional access to the garage
• Spacious hallway with a view upstairs
Upper Floor:
• Master bedroom with access to the dressing room (air-conditioned)
• Dressing room with direct access to the bathroom
• Two children’s rooms (one with an additional mezzanine)
• Family bathroom with shower, bathtub, double washbasin, and WC
Basement:
• Hobby room (can also be used as a kitchen, living room, or bedroom)
• Shower bathroom with WC
• Storage room (also suitable as an additional bedroom)
• Boiler room
• Laundry room
• Corridor with plenty of storage space
Erftstadt-Erp is a quiet district in close proximity to Lechenich with excellent connections to Cologne, Bonn, and the surrounding area. Ideal for families: a primary school, daycare center, supermarket, doctor’s office, and pharmacy are available on site. In the immediate vicinity, Erftstadt offers a wide range of secondary schools, shopping opportunities, medical care, and excellent leisure facilities (Ville-Seen, cycling/hiking paths).
Transport Connections:
• Access to the A1, A61, and A553 motorways within minutes
• B265 with direct connection to Cologne
• Erftstadt-Liblar train station with regional connections (to Cologne/Bonn)
• Energy Efficiency: KfW 55 standard, geothermal energy, central ventilation system
• Windows: Triple-glazed Schüco windows with enhanced burglary protection
• Underfloor heating/cooling: on the ground floor, upper floor, and basement (partially also in the showers)
• Ceiling heights: Ground floor 2.72 / 5.60 m, Basement 2.59 m
• Smart Home: Busch & Jäger switching system, programmable and controllable via app
• Air conditioning: in the master bedroom
• Interior Finishing:
o Large-format porcelain stoneware tiles 120 x 60 cm
o Natural stone staircase
o High-quality vinyl flooring in the sleeping area (industrial standard)
o Extra wide and tall doors throughout the house
• Garage & Parking Spaces:
o Double garage with access to the house and garden
o Carport with solid glass roof (walkable)
o 3 covered parking spaces + 5 additional parking spots
• Roof: Glazed flat roof tiles
• Basement: fully developed, concrete walls (36.5 cm) in the earth-contact zone, suitable for living use
• Garden: very well maintained, with a sunny orientation
Sale by auction at the highest bid
– The stated price is the minimum bid
Viewing appointments will only be arranged upon presentation of the following documents:
• Valid copy of a photo ID
• Proof of financing or proof of funds of at least €1,000,000
Please make initial contact exclusively by e-mail.
• The exact address will be provided after a qualified first contact.
________________________________________
Energy Data
• Type of energy certificate: Energy demand certificate
• Energy efficiency class: A+
• Final energy demand: 17.08 kWh/(m²·a)
• Primary energy demand: 30.74 kWh/(m²·a)
• Heating type: Geothermal energy
• Year of construction according to the energy certificate: 2018
Property characteristics
| Age | Over 5050 years |
|---|---|
| Layout | 6+1 |
| EPC | A - Extremely economical |
| Land space | 794 m² |
| Price per unit | €4,947 / m2 |
| Condition | Very good |
|---|---|
| Listing ID | 997323 |
| Usable area | 189 m² |
| Total floors | 2 |
What does this listing have to offer?
| Balcony | |
| Garage | |
| MHD 1 minute on foot |
| Basement | |
| Parking | |
| Terrace |
What you will find nearby
Still looking for the right one?
Set up a watchdog. You will receive a summary of your customized offers 1 time a day by email. With the Premium profile, you have 5 watchdogs at your fingertips and when something comes up, they notify you immediately.














































