
Flat for sale 2 bedroom • 61 m² without real estateWien 2. Bezirk Wien 1020
Wien 2. Bezirk Wien 1020Public transport less than a minute of walking • LiftThis historic apartment combines the unmistakable charm of classical architecture with a renovation quality that far exceeds the usual developer standard.
During a comprehensive and lovingly executed general refurbishment, special emphasis was placed on high-quality materials, precise workmanship, and a coherent overall concept.
Even the beautiful corner townhouse has already been fully renovated and adapted in a contemporary style.
Features:
• Underfloor heating with preparation for district heating connection
• Fitted kitchen with Siemes appliances
• Rehau energy-saving, soundproof windows with triple glazing
• Weitzer oak parquet flooring
• Shower room with Italian fine stoneware and towel radiator
• Wall-hung WC with electrical and water connections for a shower toilet
• Kunex solid wood doors
• Security door
• Wolf condensing boiler with preparation for a heat pump or district heating connection
• Cable TV/Internet
• Electrical connections in the window reveals, and much more
• Fireplace connection in the living room and bedroom
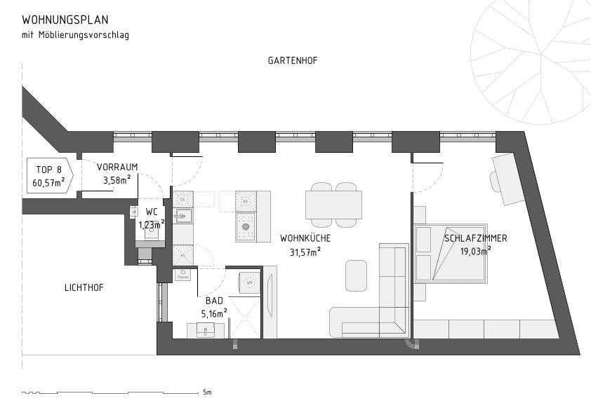
• Green inner courtyard
• Bicycle and pram room and garbage room on the ground floor
• Built circa 1900
• Large elevator
• Dry basement storage compartment (3 m²)
• Barrier-free
• Monthly additional costs 159 Euros, reserve fund 59 Euros
SOLD AS IS, FREE OF EXISTING OBLIGATIONS AND LIABILITIES
AGENT INQUIRIES ARE NOT DESIRED.
Surroundings:
U1, U2, S-Bahn Venediger, Au, Stuwerviertel, Vorgartenmarkt, WU, FH, BFI, Webster University, Viertel Zwei, OMV, ÖBB, Town-Town, Prater, Augarten, Danube, Ferris Wheel, Stadium Pool, Austria Campus, Das Muth, Messe Wien, Rad, Highway, Kieser Training, Bilal, Penny, Reinthaler, Das Stuber, Mochi, Crumbs, The Cake Tree …
* Resident parking in front of the building.
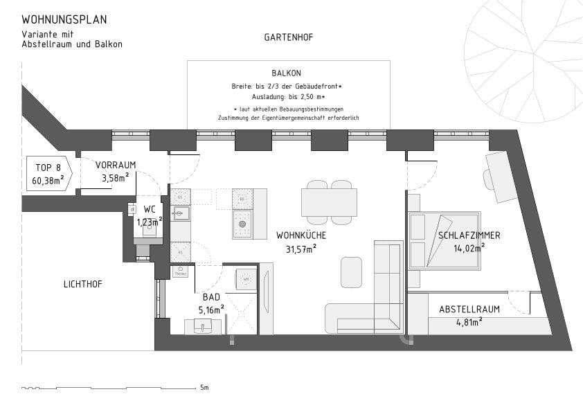
* Balcony extension: “In principle, the co-owners must give their consent to the addition of a balcony. However, there is now also the possibility of legally enforcing individual approvals as part of the so-called ‘local custom.’”
Property characteristics
| Age | Over 5050 years |
|---|---|
| Layout | 2 bedroom |
| Listing ID | 997178 |
| Usable area | 61 m² |
| Condition | New-build |
|---|---|
| Floor | Ground floor |
| EPC | C - Economical |
| Price per unit | €8,115 / m2 |
What does this listing have to offer?
| Wheelchair accessible | |
| Lift |
| Basement | |
| MHD 0 minutes on foot |
What you will find nearby
Still looking for the right one?
Set up a watchdog. You will receive a summary of your customized offers 1 time a day by email. With the Premium profile, you have 5 watchdogs at your fingertips and when something comes up, they notify you immediately.














