Flat for sale 6+1 • 220 m² without real estate, North Rhine-Westphalia
, North Rhine-WestphaliaPublic transport 1 minute of walking • ParkingFREIESLEBEN-IMMOBILIEN presents these three versatile condominiums in a three-family house located in the well-maintained area of Recklinghausen Süd / König-Ludwig. The condominiums are offered as a package for the stated total price.
The three-family house was built around 1900 using solid construction and features a full basement on a privately owned plot of approximately 360 m².
It offers about 220 m² of living space, divided among two ground floor apartments with approximately 63 m² and 60 m² of living space, respectively, plus an apartment on the top floor with approximately 97 m² of living space.
A division plan is available and each apartment has its own separate land register sheet. After purchase, the three apartments can be owner-occupied, rented out, or even sold individually.
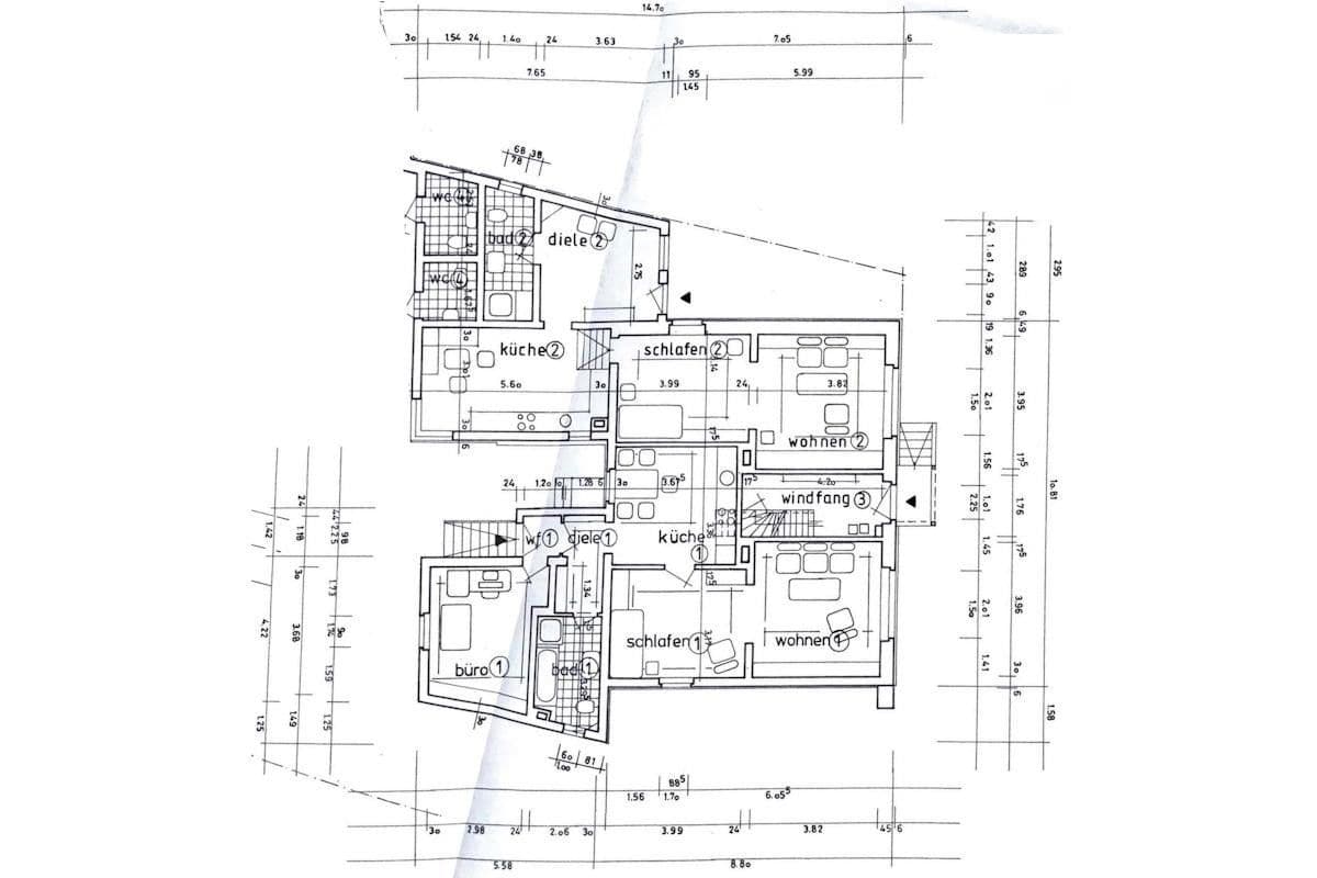
The larger ground floor apartment of approximately 63 m² in the three-family house features a living room, a bedroom, a kitchen of about 12 m², a study, a shower room, a hallway, and a vestibule.
The smaller ground floor apartment of approximately 60 m² offers a living room, a bedroom, a kitchen of about 16 m², a hallway of approximately 11 m², and a daylight bathroom.
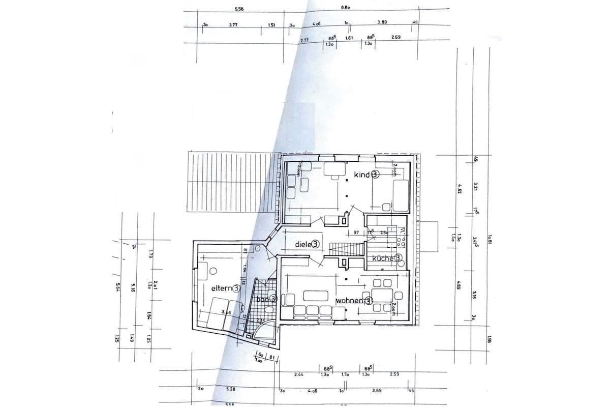
The top floor apartment provides approximately 97 m² of living space, distributed as follows: a living room of about 27 m², a bedroom of about 21 m², a children’s room of about 23 m², a kitchen, a daylight bathroom with a stylish corner bathtub, a spacious hallway, and a vestibule.
All three apartments are accessible via the staircase and have separate entrances.
In the basement of the house there is a laundry room with heating system and building connections, a drying room, a separate cellar room for each apartment, a passage room, and a corridor.
Each apartment is provided with one parking space.
The house is heated by a gas central heating system from 2015.
Currently, all apartments are vacant.
Would you like to view the property immediately?
Then please send us an inquiry via the contact form, and we will contact you promptly.
Written inquiries are processed significantly faster than telephone inquiries!
NO COMMISSION FOR THE BUYER
The attractive condominiums are located in a well-maintained mixed-use area of the popular Recklinghausen district of König-Ludwig.
Schools, kindergartens, doctors, pharmacies, and shopping facilities for daily needs are available in the vicinity.
The nearby Südbad (outdoor and indoor pool at Pappelallee) within walking distance, as well as walking paths along the Emscher, invite you to enjoy leisure activities.
Bus stops from the well-developed public transport network are also within walking distance.
By car, the center of Recklinghausen can be reached in about 15 minutes. The nearby motorways A43 and A2 provide good connections to the cities of the Ruhr area and Münsterland.
- 3 versatile condominiums in a three-family house
- Total living area of approximately 220 m²
- Built around 1900
- Solid construction
- Basement rooms
- Separate entrance for each apartment
- 3 parking spaces
This is a non-binding offer from
FREIESLEBEN GmbH,
Steinstraße 14
45657 Recklinghausen
Tel.: 02361 - 90 61 030
You can reach us MONDAY to SUNDAY from 7:00 a.m. to 10:00 p.m. By the weekend, we also offer our service for property appraisals, showings, and getting acquainted in person.
Regarding the property, we rely on the information provided by the owners and authorities. No liability can be accepted for the correctness and completeness of the details provided. Furthermore, no warranty can be given for the property, and the liquidity of the contracting parties is not guaranteed.
Would you like to have your property marketed professionally as well?
- Use our free service and have the current value of your property appraised by one of our real estate specialists.
- Optimize your property’s sales potential by letting us create a marketing plan tailored specifically to your property.
- Benefit from our excellent nationwide network to quickly connect you with potential buyers. Hundreds of interested parties are waiting for you!
Call us – we look forward to speaking with you!
Central Münsterland: Tel.: 0251 - 39 444 998
Central Ruhr Area: Tel.: 0234 - 92 56 98 00
Property characteristics
| Age | Over 5050 years |
|---|---|
| Layout | 6+1 |
| EPC | D - Less economical |
| Price per unit | €1,363 / m2 |
| Condition | Good |
|---|---|
| Listing ID | 997082 |
| Usable area | 220 m² |
What does this listing have to offer?
| Basement | |
| MHD 1 minute on foot |
| Parking |
What you will find nearby
Still looking for the right one?
Set up a watchdog. You will receive a summary of your customized offers 1 time a day by email. With the Premium profile, you have 5 watchdogs at your fingertips and when something comes up, they notify you immediately.



















