
House for sale • 182 m² without real estate, North Rhine-Westphalia
, North Rhine-WestphaliaPublic transport 3 minutes of walking • ParkingFREIESLEBEN-LUXUSIMMOBILIEN presents you with this unique, imposing villa offering approximately 182m² of living space in a popular, central-near location in Dülmen.
This property for sale is the only residential building in Dülmen that represents the Neoclassical era. It has been used continuously as an impressive and very well-maintained residence and is even listed as a historic monument.
The exterior of the house already impresses with its clean, structured lines and many details.
After the extensive war damage in the city of Dülmen, the house—built in 1918/20—stands as the only property that represents the Neoclassical style in Dülmen, beyond its architectural value. It is therefore also of urban historical significance.
Characteristic features:
A single-story, rendered solid construction on a nearly square floor plan. The facade is articulated by a continuous arrangement featuring channelled, Doric pilasters; above, an entablature with a large, toothed frieze. Windows have profiled arches, with parapets supported by integrated balusters. On the mansard roof facing the street is a three-axis dormer with a triangular gable between two smaller, flat-topped roof sections, with the middle one on the left side modified and enlarged. At the back left corner, there is a polygonal bay extension.
The stately house was built in solid construction, fully basemented, on a private plot of approximately 767m².
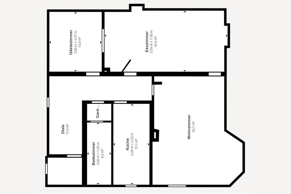
On the ground floor of this beautiful house, you will find a living room of about 35m² with access to the west-facing terrace, an adjoining dining room of around 30m², a reception room, a kitchen equipped with a high-quality, stylish fitted kitchen and access to the west-facing terrace, a daylight bathroom with an open shower modernised approximately 5 years ago, an entrance hall with a cloakroom and stairwell, as well as a storage room with a secondary exit to the carport and access to the basement.
The floors in the living areas on the ground floor are fitted with nearly new parquet, the kitchen features granite surfaces, and the bathroom is tiled in premium-quality finishes.
On the upper floor there is another living room of about 26m², an office, two bedrooms, a utility room with a separate sink, a daylight bathroom with a walk-in shower modernised approximately 10 years ago, plus an entrance hall.
On the intermediate level between the ground floor and the upper floor, there is a modernly designed daylight guest WC.
The spacious loft is convertible, and the basement offers ample additional usable space.
A fiber optic connection is already available in the house.
For cars, there is a long driveway and a carport available.
The park-like, very well-maintained grounds invite you to enjoy lovely hours outdoors.
The annual real estate taxes amount to €1,285.87.
Would you like to view it immediately?
Then please send us an inquiry via the contact form or by email at info@immobilienmakler12.de, and we will contact you immediately.
Written inquiries are processed significantly faster than telephone inquiries!
NO COMMISSION FOR THE BUYER
The representative house is located in a popular, central-near area of Dülmen, in the immediate vicinity of the Schlosspark.
The city centre with its shopping and leisure options, restaurants, doctors, and pharmacies is within walking distance.
Public transport stops are also within walking distance.
There is also easy access to the A43 motorway and thus to the cities of the Ruhr area and Münsterland.
Dülmen is a medium-sized town belonging to the Coesfeld district in North Rhine-Westphalia, situated between Münster and the Ruhr area. With its approximately 46,500 inhabitants, it holds the status of a medium-sized town and boasts an extensive network of cycle and hiking trails, making it a popular excursion destination, especially for those from the nearby Ruhr area. The property is centrally located; it only takes about a 5-minute drive to reach the city centre with its diverse shopping opportunities and varied dining options.
- Unique, imposing villa
- Stately listed building
- Built between 1918 and 1920
- Solid construction
- Fully basemented
- Approximately 182m² of living space
- Approximately 767m² private plot
- Large west-facing terrace
- High-quality, approximately 6-year-old fitted kitchen
- Carport
- Flooring with parquet, granite, and premium tiles
- Two modern daylight bathrooms with showers
- One modernly designed daylight guest WC
- Additional usable space in the loft and basement
- Fiber optic connection
- Carport
- West-facing terrace
- Park-like, very well-maintained grounds
This is a non-binding offer from
FREIESLEBEN GmbH,
Steinstraße 14
45657 Recklinghausen
Tel.: 02361 - 90 61 030
Internet: www.immobilienmakler12.de
Email: info@immobilienmakler12.de
You can reach us by phone from MONDAY to SUNDAY, between 7:00 AM and 10:00 PM. On weekends, we also offer our services for property valuations, property viewings, and personal introductions.
Regarding the property, we rely on the information provided by the owners and authorities. No liability can be accepted for the accuracy and completeness of the information. In addition, no warranty can be given for the property, and no liability is accepted for the liquidity of the contractual partners.
Would you also like your property to be marketed professionally?
- Use our free service to have your property’s current value appraised by one of our real estate specialists.
- Optimize your property’s sales prospects by having us create a marketing plan tailored specifically to your property.
- Take advantage of our excellent nationwide network to quickly connect you with potential buyers. Hundreds of interested buyers are waiting for you!
Call us—we look forward to hearing from you!
Central Münsterland: Tel.: 0251 - 39 444 998
Central Ruhr Area: Tel.: 0234 - 92 56 98 00
Property characteristics
| Age | Over 5050 years |
|---|---|
| Condition | Good |
| Usable area | 182 m² |
| Total floors | 2 |
| Available from | 09/03/2026 |
|---|---|
| Listing ID | 996402 |
| Land space | 767 m² |
| Price per unit | €3,846 / m2 |
What does this listing have to offer?
| Basement | |
| MHD 3 minutes on foot |
| Parking | |
| Terrace |
What you will find nearby
Still looking for the right one?
Set up a watchdog. You will receive a summary of your customized offers 1 time a day by email. With the Premium profile, you have 5 watchdogs at your fingertips and when something comes up, they notify you immediately.




































