
House for sale • 346 m² without real estate, Bavaria
, BavariaPublic transport less than a minute of walking • Lift • Parking • GarageGroomed single-family house with two residential units and a large plot in a quiet location
Welcome to your new home!
This impressive single-family house in a quiet location combines stylish living, thoughtful architecture, and state-of-the-art amenities. With generous living areas, a bright in-law apartment, a versatile office section, and lovingly crafted details, it offers the ideal conditions for families, self-employed individuals, or anyone looking to harmoniously combine living and working.
Built in 1996 using solid construction, this single-family house impresses with high-quality equipment, a well-thought-out spatial concept, and diverse usage possibilities. It was last used as a combination of a residential house and office spaces and, with its light-filled in-law apartment in the basement, provides ideal conditions for multigenerational living, a home office, or two separate rental units.
The spacious property, measuring 893 m², is located in a quiet and well-kept residential area that offers plenty of privacy and relaxation.
The large double garage with a basement and integrated freight elevator conveniently connects all levels – from the cellar to the upper floor of the garage. The concrete cellar is designed to be both earth- and watertight, offering excellent stability and protection.
The in-law apartment in the semi-basement is wonderfully bright thanks to large windows, creating a friendly ambiance. A sauna with a separate supply and exhaust air system also invites you to relax and feel good.
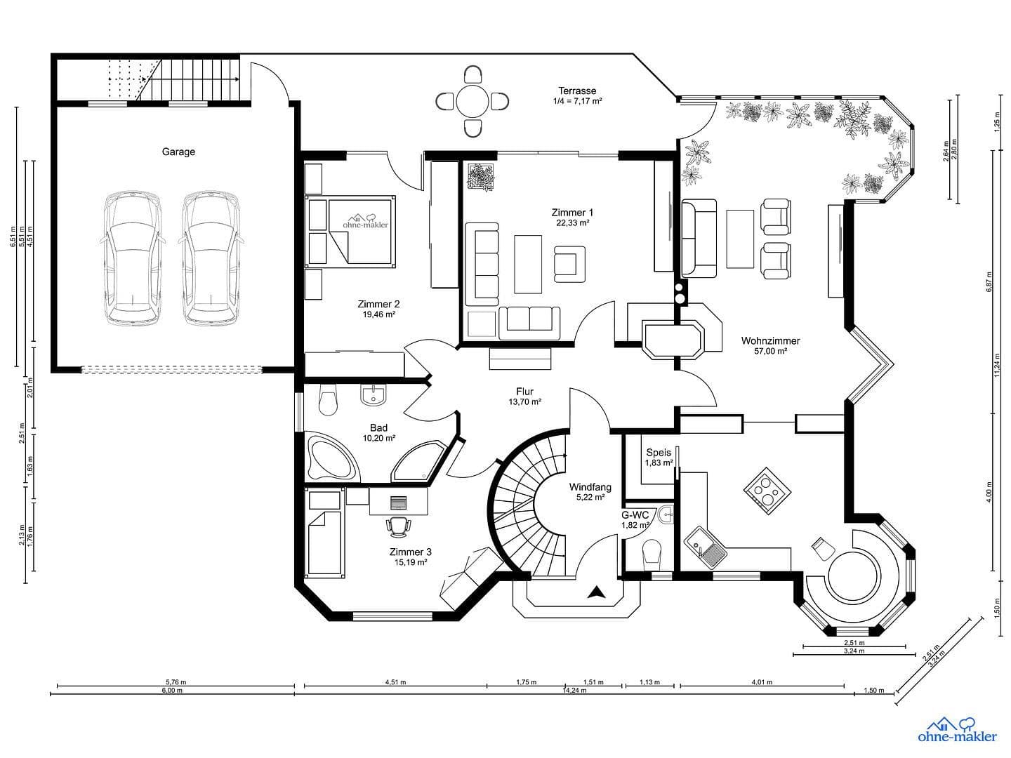
On the ground floor, you will find a spacious living area with an integrated conservatory, creating a bright, open feeling. Electric shutters and an intelligent weather station with temperature, wind, and rain measurement automatically control awnings, conservatory shading, and windows – so you can enjoy perfect indoor climate in every season.
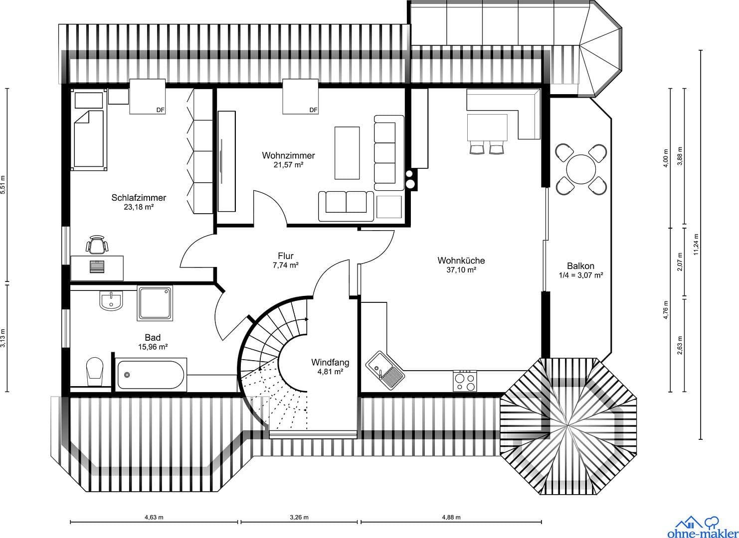
A representative circular staircase leads you to the upper floor, which impresses with its pleasant room layout and brightness. Here you will find a large bathroom with a shower and bathtub as well as two rooms that are ideal as a children's room, guest room, or office.
A special highlight is the spacious office in the southwest, which, thanks to access to a sunny west balcony, offers additional living comfort. The available kitchen connections allow for flexible use – whether as an independent living area, studio, or additional residential unit.
From the office, a circular spiral staircase leads to the expansive open-plan office in the attic, with an area of around 100 m². The large triangular windows on the roof gable sides flood the room with daylight and create an open, inspiring atmosphere.
This representative single-family home brings together living, working, and relaxing at the highest level – a home with character, comfort, and versatile potential that leaves nothing to be desired.
The single-family house is located in a quiet residential area of Höchstädt an der Donau, a well-maintained residential district predominantly consisting of single- and two-family homes. The area is characterized by its close proximity to the old town and good access to local infrastructure.
In Höchstädt, you will find everyday shopping opportunities, schools, childcare facilities, doctors, and various leisure activities. The town is conveniently located on Federal Highway B16 between Dillingen and Donauwörth, with connections towards Ulm, Augsburg, and Ingolstadt as well as its own station on the Danube Valley Railway.
The proximity to the Danube, riparian forests, and cycle paths such as the Danube Cycle Path offers high recreational and relaxation value right at your doorstep. This makes the location ideal for families, commuters, and nature lovers who wish to combine quiet living with good accessibility.
This exceptionally well-maintained single-family house impresses with a high-quality and future-oriented Ausstattung (amenities), perfectly combining living comfort and efficiency.
• High-speed internet with a broadband connection – ideal for a home office and multimedia.
• Air-conditioned pantries on the ground floor and in the basement for optimal storage conditions.
• A cozy tiled stove in the living area provides a warm, comfortable atmosphere during transitional seasons.
• Underfloor heating on the ground floor and in the bathroom on the upper floor.
• Elegant Kashmir granite flooring on the ground floor with integrated underfloor heating.
• High-quality granite paving in the outdoor area – stylishly designed driveway for the house and garage.
• External water supply for toilet flushing – resource-efficient and effective.
• Planned district heating connection (biogas plant) by the end of 2026.
• Spacious south roof area, ideally prepared for the installation of a photovoltaic system.
This equipment underlines the sophisticated character of the house and at the same time provides a solid foundation for sustainable, modern living.
Property characteristics
| Age | Over 5050 years |
|---|---|
| Listing ID | 996361 |
| Land space | 893 m² |
| Price per unit | €2,514 / m2 |
| Condition | Good |
|---|---|
| Usable area | 346 m² |
| Total floors | 3 |
What does this listing have to offer?
| Balcony | |
| Garage | |
| Parking | |
| Terrace |
| Basement | |
| Lift | |
| MHD 0 minutes on foot |
What you will find nearby
Still looking for the right one?
Set up a watchdog. You will receive a summary of your customized offers 1 time a day by email. With the Premium profile, you have 5 watchdogs at your fingertips and when something comes up, they notify you immediately.




















