
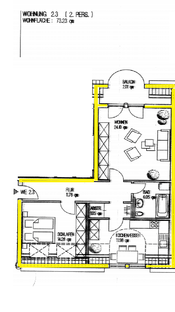
Flat to rent 2 bedroom • 74 m² without real estate, Rhineland-Palatinate
, Rhineland-PalatinatePublic transport 2 minutes of walking • ParkingWell-proportioned 2-room/kitchen/bath attic apartment.
The apartment was partially renovated in autumn 2020.
Please note that when requesting an appointment you must send a self-disclosure; more details can be found in the section "What We Expect from the Tenant":
Pet Ownership
Due to the size of the property (16 residential units), dogs are not allowed. Pet birds, ornamental fish, small rodents, as well as a cat kept exclusively in the apartment, are permitted.
Viewing Appointments
Friday, 07.03.2026 from 2:00 PM to 4:00 PM. Please inquire about an appointment via email at
Remember to include the self-disclosure with your request!!
Quiet location on the outskirts
Fitted kitchen with dishwasher at €100.00 per month.
The balcony is partially covered (glass roof).
What We Expect from the Tenant
In the completed self-disclosure (which can be downloaded) (full name, current residence, marital status, occupation, and details of your current employment), you should introduce yourself in your inquiry.
Detected AI-generated inquiries will be ignored.
For a viewing appointment, in addition to the self-disclosure/application form, you must provide your contact details (email and telephone). If this information is not provided, your inquiry will not be processed!
Property characteristics
| Age | Over 5050 years |
|---|---|
| Condition | Good |
| Floor | 2. floor out of 2 |
| EPC | C - Economical |
| Price per unit | €10 / m2 |
| Available from | 01/03/2026 |
|---|---|
| Layout | 2 bedroom |
| Listing ID | 996357 |
| Usable area | 74 m² |
What does this listing have to offer?
| Balcony | |
| Parking |
| Basement | |
| MHD 2 minutes on foot |
What you will find nearby
Still looking for the right one?
Set up a watchdog. You will receive a summary of your customized offers 1 time a day by email. With the Premium profile, you have 5 watchdogs at your fingertips and when something comes up, they notify you immediately.



















