House for sale • 206 m² without real estate, Baden-Württemberg
, Baden-WürttembergPublic transport 1 minute of walking • ParkingHistoric 3-Family House with Heritage Depreciation
Former Rectory | 74585 Rot am See
An investment property with history – and substance
For sale is one of the most defining buildings in Rot am See: a listed former rectory dating back to 1747.
Properties like this rarely come on the market.
The house was comprehensively and luxuriously renovated in 2002 and converted into three separate residential units. It combines historic character with modern living standards – and at the same time offers significant tax advantages through its heritage protection status.
A property for investors who are buying not just square meters, but substantial quality.
Key Facts at a Glance
Year of construction: approx. 1747
Core renovation: 2002
Total living area: approx. 206 m²
Plot size: approx. 564 m²
3 self-contained residential units
3 outdoor parking spaces
Oil central heating (boiler renewed in 2012)
Vaulted cellar
Listed building (no energy certificate required)
Fully rented
Current Rental Income
The current net rent is:
€1,700 per month
= €20,400 per year
The property is leased on a long-term basis and offers immediate cash flow.
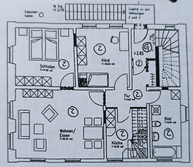
Apartment Layout
Ground Floor – approx. 80 m²
Living kitchen, living room, 2 bedrooms, bathroom, terrace
Upper Floor – approx. 75 m²
Kitchen, living room, 2 bedrooms, bathroom
Attic – approx. 51 m²
Kitchen, living room, 2 bedrooms, bathroom
The units are functionally arranged and easy to rent.
Thanks to its layout, the property is suitable both as a classic investment and, prospectively, for owner-occupiers with partial rental.
Renovation – Substance That Convinces
As part of the core renovation in 2002, among other measures, the following were carried out:
• Electrical system renewed
• Water and sewage pipes re-laid
• Roof insulated
• Windows renewed in accordance with heritage protection requirements
• Heating system modernized
• Bathrooms renovated
• Floor structures with impact sound insulation installed
• Facade refurbished
High-quality materials such as solid wood parquet, stone tiles, and solid wood elements were used.
The property presents itself in a well-maintained and technically sound condition.
The Decisive Advantage: Heritage Depreciation
For capital investors, the real leverage lies in the tax structure.
For heritage-protected properties, recognized renovation costs can be depreciated according to § 7i EStG:
• 8 years at 9% per annum
• 4 years at 7% per annum
• A total of 100% of the recognized renovation costs over 12 years
In addition to the linear building depreciation.
Especially for investors with a high tax rate, this creates a significant tax advantage – particularly during the first 12 years.
Location
• Central location in Rot am See
• Southwest orientation
• Established residential area
• Solid rental demand
A quiet location with long-term prospects.
The property is situated in the center of Rot am See, a well-established community in the Schwäbisch Hall district.
Thanks to its central position on the main street, everyday shopping facilities, bakeries, banks, restaurants, and medical services are conveniently accessible. Kindergartens and a community school are also located right in town – a clear advantage for rental potential.
Rot am See has its own train station with connections toward Crailsheim and Schwäbisch Hall. The B290 provides good regional transportation links, which commuters appreciate.
The surrounding area is characterized by rural tranquility, an established neighborhood, and a high quality of life close to nature – all while offering a solid basic infrastructure.
This combination of reliable local services, excellent transport links, and a manageable community structure ensures stable rental demand.
Features & Documentation
The building was comprehensively core renovated in 2002 and combines historical charm with contemporary living comfort.
The features include, among others:
• Solid wood parquet in living areas and bedrooms
• Stone tiles in the kitchen area
• Three fitted kitchens (included in the purchase price)
• Modernized bathrooms with both shower and bathtub
• Double-insulated, glazed wooden windows
• Insulated roof
• Renewed electrical system as well as water and sewage pipes
• Oil central heating (boiler renewed in 2012)
• Vaulted cellar with additional usable space
• Three outdoor parking spaces
The property is presented in a well-maintained and technically sound condition.
In addition, a comprehensive renovation plan with documentation of all the measures carried out is available. This provides transparency regarding the modernization status and ensures planning security for future owners.
Property characteristics
| Age | Over 5050 years |
|---|---|
| Listing ID | 996292 |
| Land space | 564 m² |
| Price per unit | €1,602 / m2 |
| Condition | Good |
|---|---|
| Usable area | 206 m² |
| Total floors | 3 |
What does this listing have to offer?
| Basement | |
| MHD 1 minute on foot |
| Parking | |
| Terrace |
What you will find nearby
Still looking for the right one?
Set up a watchdog. You will receive a summary of your customized offers 1 time a day by email. With the Premium profile, you have 5 watchdogs at your fingertips and when something comes up, they notify you immediately.















