
House for sale 5+1 • 110 m² without real estateOsterfeuerbergstr. 24 Bremen Walle Bremen 28219
This old Bremen terraced middle house impresses with its classic, functional floor plan design and has been repeatedly renovated over the years.
The terraced house is highly versatile, whether used as a flatshare, for multigenerational living, or simply for larger families! The layout offers many options:
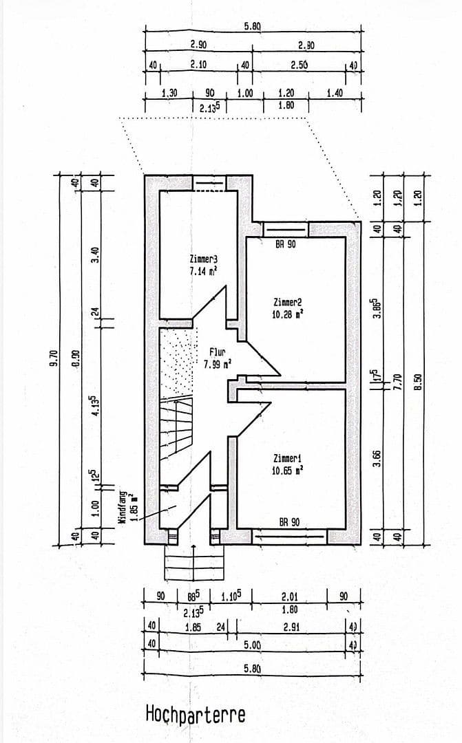
Ground Floor: 2 rooms plus a kitchen, bathroom, and access to the small garden
Upper Floor: 2 rooms plus a kitchen, bathroom, and roof terrace (10 sqm)
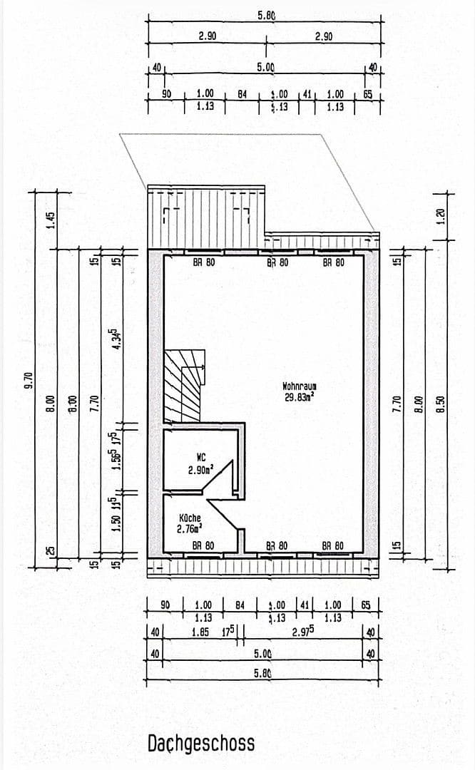
Top Floor: a large living area (just under 30 sqm) with a bathroom and kitchenette
In addition, the house is partially basemented!
In total, approximately 120 sqm of living space (including a 10 sqm roof terrace)
Features & Condition
According to the energy certificate, the gas heating dates from 2002.
The windows are predominantly wooden from 1988, although some have already been replaced with plastic ones.
The property is well-maintained yet overall in need of renovation. Depending on expectations and the intended use, modernization and renovation work should be planned. This offers buyers the opportunity to customize and upgrade the house according to their own ideas.
Special Features
• Flexible usage possibilities (single-family home, two-family home, flatshare, multigenerational living)
• Easily convertible into two separate living units with minimal structural work
• Attractive for investors (e.g., for flatshares or student housing)
• No realtor fees – direct private sale
The house is located in a 30 km/h zone, yet remains centrally positioned. Public transportation, shopping facilities, and schools are within a few minutes' walk.
Property characteristics
| Age | Over 5050 years |
|---|---|
| Layout | 5+1 |
| EPC | G - Extremely uneconomical |
| Land space | 103 m² |
| Price per unit | €2,682 / m2 |
| Available from | 04/03/2026 |
|---|---|
| Listing ID | 996247 |
| Usable area | 110 m² |
| Total floors | 3 |
What does this listing have to offer?
| Basement | |
| Terrace |
| MHD 2 minutes on foot |
What you will find nearby
Still looking for the right one?
Set up a watchdog. You will receive a summary of your customized offers 1 time a day by email. With the Premium profile, you have 5 watchdogs at your fingertips and when something comes up, they notify you immediately.
















