House for sale 4+1 • 120 m² without real estateFärbergasse 5, , Baden-Württemberg
Färbergasse 5, , Baden-WürttembergPublic transport 2 minutes of walking • Parking*Commission-free house in Ettlingen's Old Town
Architecturally interesting town house (built in 1988) with a parking space and terrace – located right in the old town and in immediate proximity to the pedestrian zone and the Alb river.
The approximately 120 m² of living space is spread over staggered levels with a total of four rooms as well as an open mezzanine. Directly in front of the house, there is a parking space – an absolute rarity in this central old town location.
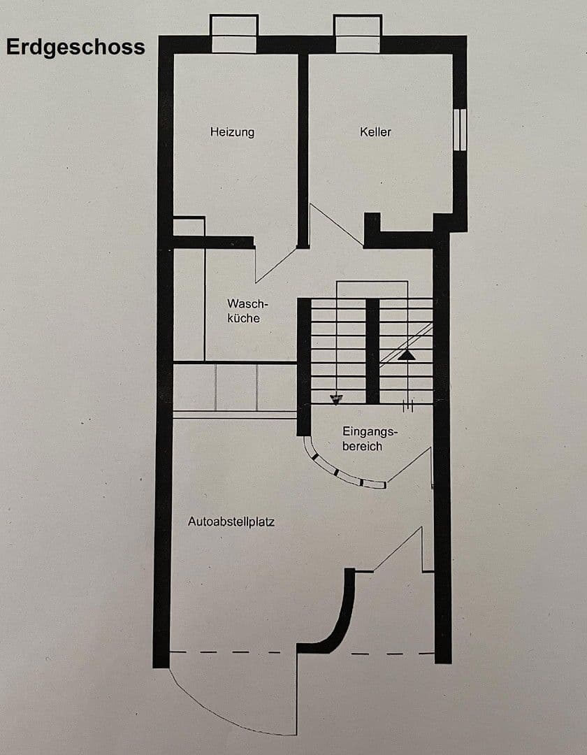
From the entrance area, you can either access the basement with generous storage space and a laundry room or the upper levels with living and sleeping areas. Two equally sized rooms overlooking the inner courtyard are ideal as children's rooms or offices. A larger room with an adjoining WC is well suited as the master bedroom.
The open-plan living and kitchen area impresses with plenty of light. A Swedish stove can provide cozy warmth in addition to the gas condensing heater. The open mezzanine and the roof terrace on the upper levels offer additional retreats for relaxed hours on the sofa or in the sun.
The highlights at a glance:
• Built in 1988, approx. 120 m² of living space, 4 rooms, staggered levels
• Best location in Ettlingen's old town (quiet street, near the Alb river)
• Two equally sized children’s/office rooms
• Master bedroom with en-suite bathroom
• Large living/dining room with open kitchen
• Roof terrace and open mezzanine
• Parking space (for a small/medium-sized vehicle) directly at the house
• Large basement rooms in historic masonry
• Gas condensing heater from 2013 (maintenance due in 2025)
Available immediately, without an agent's fee
The property is located in a central yet very quiet area in the historic old town of Ettlingen. The marketplace, the castle, as well as numerous cafés, restaurants, and shopping opportunities are all easily accessible on foot.
Kindergartens, schools, doctors, and pharmacies are in the immediate vicinity. Leisure and recreational opportunities along the Alb river and in Horbachpark are also just a few minutes' walk away.
Very good public transport connections are ensured by nearby bus and tram stops. Karlsruhe and the surrounding towns can be reached within a short time via the B3 as well as the A5 motorway.
The energy certificate from 2019 (Class D) is available and can be viewed during the inspection.
All details are provided without guarantee. We invite you to personally view the property during an inspection, where further details can be reviewed and discussed.
Property characteristics
| Age | Over 5050 years |
|---|---|
| Layout | 4+1 |
| EPC | D - Less economical |
| Land space | 70 m² |
| Available from | 09/03/2026 |
|---|---|
| Listing ID | 996006 |
| Usable area | 120 m² |
| Price per unit | €5,742 / m2 |
What does this listing have to offer?
| Basement | |
| MHD 2 minutes on foot |
| Parking |
What you will find nearby
Still looking for the right one?
Set up a watchdog. You will receive a summary of your customized offers 1 time a day by email. With the Premium profile, you have 5 watchdogs at your fingertips and when something comes up, they notify you immediately.













