
Flat for sale 2 bedroom • 75 m² without real estateAlbrechtstr. 22 Bremen Mitte Bremen 28203
Albrechtstr. 22 Bremen Mitte Bremen 28203Public transport 2 minutes of walkingThe Apartment – Completely Redesigned in 2026
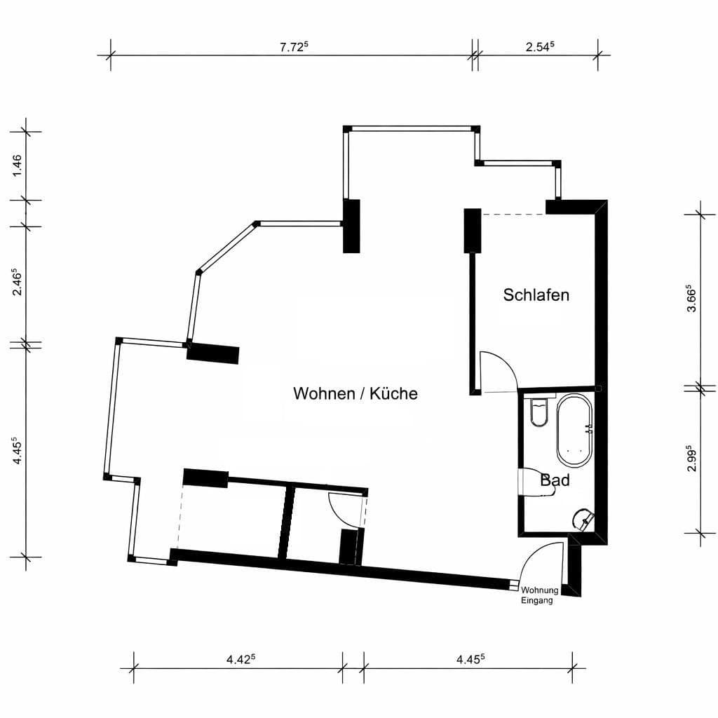
The approximately 75 m² have been comprehensively refurbished:
• new electrical wiring
• new, modern series of switches
• new floors
• new walls
• new bathroom
• open, exceptionally bright layout
• small utility room within the apartment
• small home office nook behind the kitchen
• separate basement room/storage
The result: Move in, bring your own furniture, and feel at home.
No deferred maintenance. No renovation stress.
The apartment is located on the 2nd floor of a well-maintained building built in 1982 and impresses with its open plan and abundant natural light – both in the morning and in the evening.
My tip for your individual kitchen design: A modern kitchen with a cooking or work island – perfect for sociable evenings.
(Example photos were visualized with the help of AI.)
The small home office nook at the back creates a cleverly separated work area without losing any living space.
The Building & the Homeowners’ Association (WEG):
• Very well-maintained multi-family house
• Built in 1982
• Great, functioning community of owners
• Central heating installed in 2019
• Sound financial management
• No major measures planned
A True Unique:
The homeowners’ association boasts a huge garden area for communal use – right in the middle of the Bremer Viertel – almost one-of-a-kind.
Space for:
• children to play
• summer barbecues
• relaxing after work
• meeting with friends
• a green escape in an urban environment
Monthly Service Charge (including heating according to the 2025 economic plan)
Total: €327.00 per month
Of which:
Approximately €300.00 is transferable
Approximately €27.00 is non-transferable
Heating costs are already included.
Also ideal for rental – top location with strong rental dynamics
The apartment is excellently suited as an investment property in an absolute “best quarter location.”
Freshly refurbished 2-room apartments like this one are currently achieving very good square meter prices in the Ostertor/Steintor area.
Financing Example
Purchase Price: €329,000
100% Financing
3.8% Interest Rate
1.0% Repayment
€329,000 × 4.8% / 12 = approximately €1,316 monthly rate
The Location – As Urban as It Gets
In the morning: head downstairs to pick up fresh produce from the organic supermarket.
Enjoy a cappuccino at the Harbour Café across the street.
In the evening, quickly grab your favorite magazine from the kiosk in the building – everything is right at your doorstep.
You'll be living in Ostertor/Steintor – an absolute prime location.
Restaurants, bars, culture, theaters, trams – all within walking distance.
And yet: the building itself is pleasantly quiet.
Key Facts at a Glance
• 75 m² of living space
• 2 rooms
• 2nd floor
• Built in 1982
• Completely refurbished in 2026
• High-quality Schüco windows
• Small home office nook
• Utility room within the apartment
• Basement room
• Large garden area (communal space)
• Central heating installed in 2019
• Service charge including heating: €327
• No deferred maintenance
• Ready for immediate occupancy
Private sale, commission-free.
No broker fee.
Broker inquiries are expressly not desired.
Property characteristics
| Age | Over 5050 years |
|---|---|
| Condition | After reconstruction |
| Floor | 2. floor |
| EPC | E - Wasteful |
| Price per unit | €4,387 / m2 |
| Available from | 15/03/2026 |
|---|---|
| Layout | 2 bedroom |
| Listing ID | 995617 |
| Usable area | 75 m² |
What does this listing have to offer?
| Basement |
| MHD 2 minutes on foot |
What you will find nearby
Still looking for the right one?
Set up a watchdog. You will receive a summary of your customized offers 1 time a day by email. With the Premium profile, you have 5 watchdogs at your fingertips and when something comes up, they notify you immediately.































