Flat to rent 3+kk • 50 m² without real estateLuštěnice - Luštěnice, Středočeský Region
Interested?
Communicate all private owners and save CZK 13,900 on commissions.
3+KK, 50m2, Klima
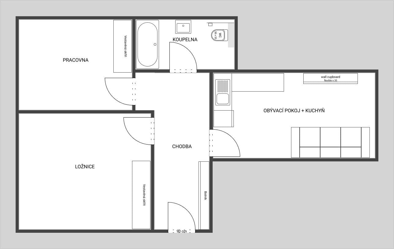
Nabízím k pronájmu prakticky řešený byt 3+kk o ploše 50 m2 v lokalitě Luštěnice – Zelená. Byt se nachází v klidné části s přímým výhledem do lesa z balkonu, který je orientován na východ. V následujících měsících prochází dům revitalizací a plocha balkonu bude cca 5 m2. Velkou výhodou je instalovaná klimatizace ve dvou místnostech, Díky které budete mít v létě příjemnou teplotu. Dispozice nabízí tři samostatné místnosti, takže i na menší ploše získáte oddělenou ložnici a pokoj využitelný jako pracovnu.
Lokalita je strategická především pro zaměstnance firem v Mladé Boleslavi. Autem se na dálnici D10 dostanete za pár minut a v Boleslavi jste do čtvrt hodiny. Pro ty, kteří nevyužívají auto, funguje pravidelné autobusové spojení přímo do MB, přičemž zastávka je v docházkové vzdálenosti od domu.
Přímo za domem začíná les, což je ideální pro procházky nebo sport.Byt je částečně zařízený nábytkem, který vidíte na fotografiích, konkrétně pohovkou, stolkem, postelí kuchyňským koutem. Úložné prostory řeší prostorné vestavěné skříně v chodbě, ložnici a pracovně. Kuchyňská linka je vybavena varnou deskou a horkovzdušnou troubou. V bytě chybí lednice a pračka, které si nájemce zajišťuje vlastní.
Měsíční nájemné činí 13900 Kč. K nájemnému se hradí zúčtovatelné zálohy na služby (teplo, voda, správa domu) ve výši 2 600 Kč. Elektřina a internet nejsou zahrnuty v ceně a nájemce si je přepisuje na sebe, přičemž reálné náklady se pohybují kolem 1300 Kč měsíčně. Vratná kauce je stanovena na 17 000 Kč. Byt je volný k nastěhování
Mezi jeho přednosti patří rovněž přítomnost parkovacího stání, což je v této lokalitě velké plus. K bytu náleží také balkón o ploše 4 m², kde si můžete vychutnat čerstvý vzduch po náročném dni.
Kontaktujte mě prostřednictvím zpráv na komunikační platformě a domluvíme si prohlídku této atraktivní nabídky.
Property characteristics
| Available from | 01/03/2026 |
|---|---|
| Building construction | Precast concrete |
| Fully furnished | Partly |
| Listing ID | 995211 |
| Usable area | 50 m² |
| Condition | Good |
|---|---|
| Layout | 3+kk |
| Floor | 5. floor out of 5 |
| Location | Quiet area |
| Price per unit | CZK 278 / m2 |
What does this listing have to offer?
| Balcony: 4 m² |
| Parking |
What you will find nearby
Interested?
Communicate all private owners and save CZK 13,900 on commissions.
Still looking for the right one?
Set up a watchdog. You will receive a summary of your customized offers 1 time a day by email. With the Premium profile, you have 5 watchdogs at your fingertips and when something comes up, they notify you immediately.











