
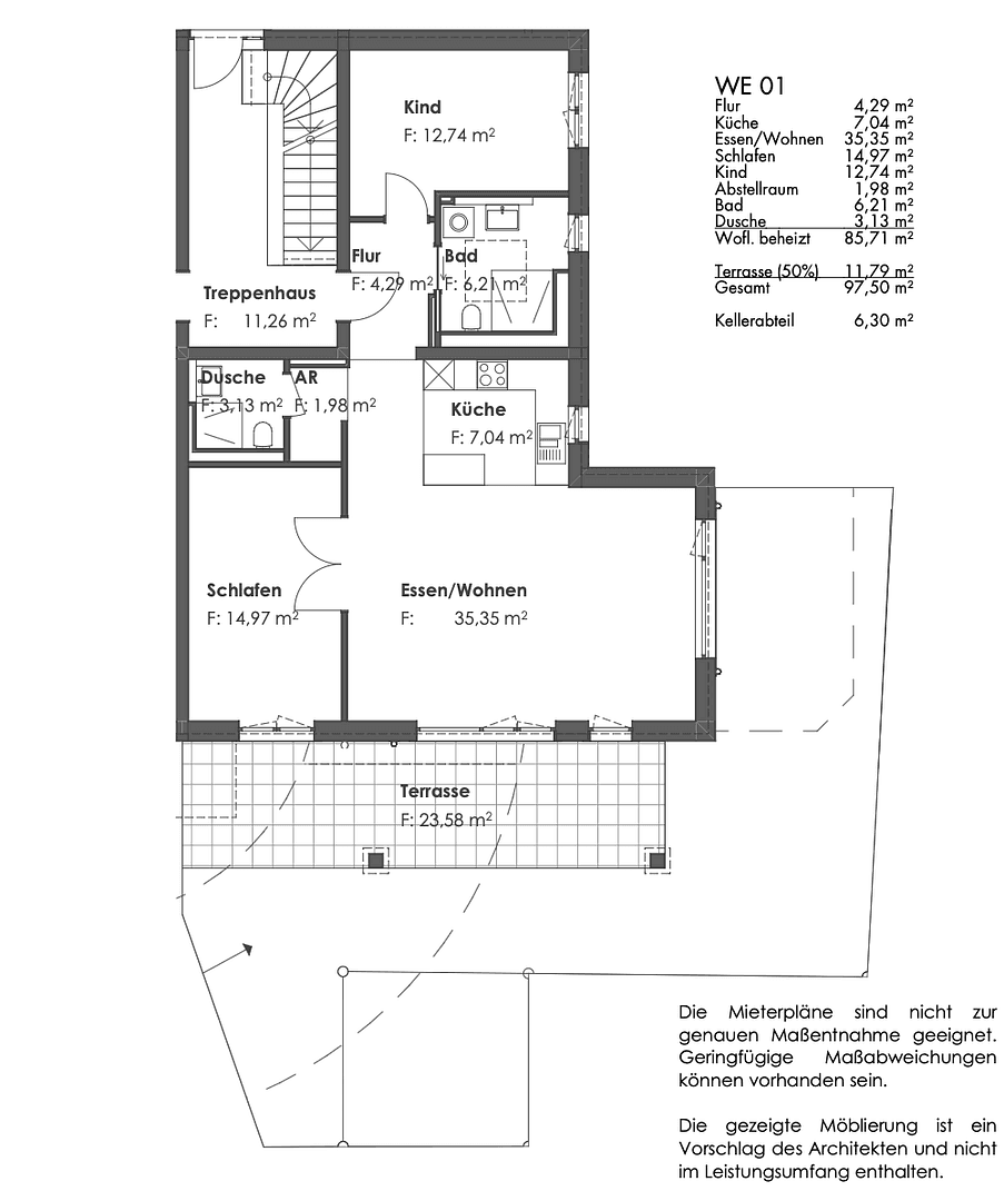
Flat to rent 3+1 • 98 m² without real estateDorfstraße 11b Germering Germering Bayern 82110
Dorfstraße 11b Germering Germering Bayern 82110Public transport 1 minute of walking • Parking • GarageThis high-quality furnished apartment features a modern bathroom, two beautiful bedrooms, and a spacious, open-plan living area. An adjoining terrace and garden are also part of this property.
The apartment is built to the latest energy efficiency standards and is equipped with decentralized residential ventilation to create a pleasant and healthy living climate.
The residential building is located on the village road and has good connections to the city center, the surrounding area, and Munich.
Features include a basement room, an underground parking space, and an outdoor parking space. Charging facilities for e-mobility can be provided.
- approx. 20 km from Munich
- good connection to motorway A99 as well as federal roads B2 and B471
- solid construction
- high-quality windows with triple thermal insulation glazing
- electric aluminum roller shutters
- bathrooms and corridors with high-quality tiles
- living and sleeping areas, as well as kitchen, with designer flooring
- apartment entrance door with sound- and explosion-proof sealing and a door viewer
- electric underground parking gate system with a wireless remote control
- washing machine connection located in the bathroom
- geothermal heating
- underfloor heating throughout, including room thermostats
- decentralized ventilation system
- intercom system with two-way communication
Property characteristics
| Age | Over 5050 years |
|---|---|
| Condition | Very good |
| Listing ID | 995042 |
| Usable area | 98 m² |
| Available from | 01/03/2025 |
|---|---|
| Layout | 3+1 |
| EPC | A - Extremely economical |
| Price per unit | €21 / m2 |
What does this listing have to offer?
| Wheelchair accessible | |
| Garage | |
| MHD 1 minute on foot |
| Basement | |
| Parking | |
| Terrace |
What you will find nearby
Still looking for the right one?
Set up a watchdog. You will receive a summary of your customized offers 1 time a day by email. With the Premium profile, you have 5 watchdogs at your fingertips and when something comes up, they notify you immediately.











