
Flat to rent 2 bedroom • 80 m² without real estate, Lower Saxony
, Lower SaxonyPublic transport 7 minutes of walkingThe house was thermally insulated in 2008 according to the specifications of KfW and proKlima, and is connected to the district heating network.
It is located in a traffic-calmed area near the Eilenriede urban forest with various shopping options and venues nearby. A tram stop can be reached in 5 minutes, and the city center (train station) is about a 15-minute bike ride away.
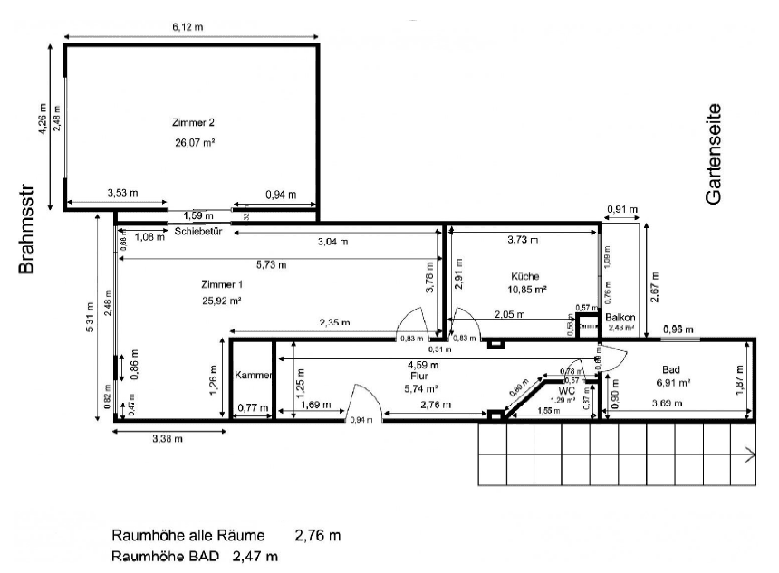
It features a bathroom with a shower, a guest toilet, and a kitchen with a southwest-facing balcony.
The listed rental prices are based on one person; for each additional person, an extra €25.00 is currently added to the warm rent (for water supply and waste disposal). Note that stairwell cleaning is included in the warm rent, but a cable TV connection is not.
The tenant is responsible for the energy costs (electricity only) as well as the heating costs (as a heating cost prepayment to Stadtwerke Hannover).
The rental contract stipulates a minimum rental period of 2 years.
Property characteristics
| Age | Over 5050 years |
|---|---|
| Condition | After reconstruction |
| Listing ID | 995035 |
| Usable area | 80 m² |
| Available from | 28/02/2026 |
|---|---|
| Layout | 2 bedroom |
| EPC | C - Economical |
| Price per unit | €13 / m2 |
What does this listing have to offer?
| Balcony | |
| MHD 7 minutes on foot |
| Basement |
What you will find nearby
Still looking for the right one?
Set up a watchdog. You will receive a summary of your customized offers 1 time a day by email. With the Premium profile, you have 5 watchdogs at your fingertips and when something comes up, they notify you immediately.














