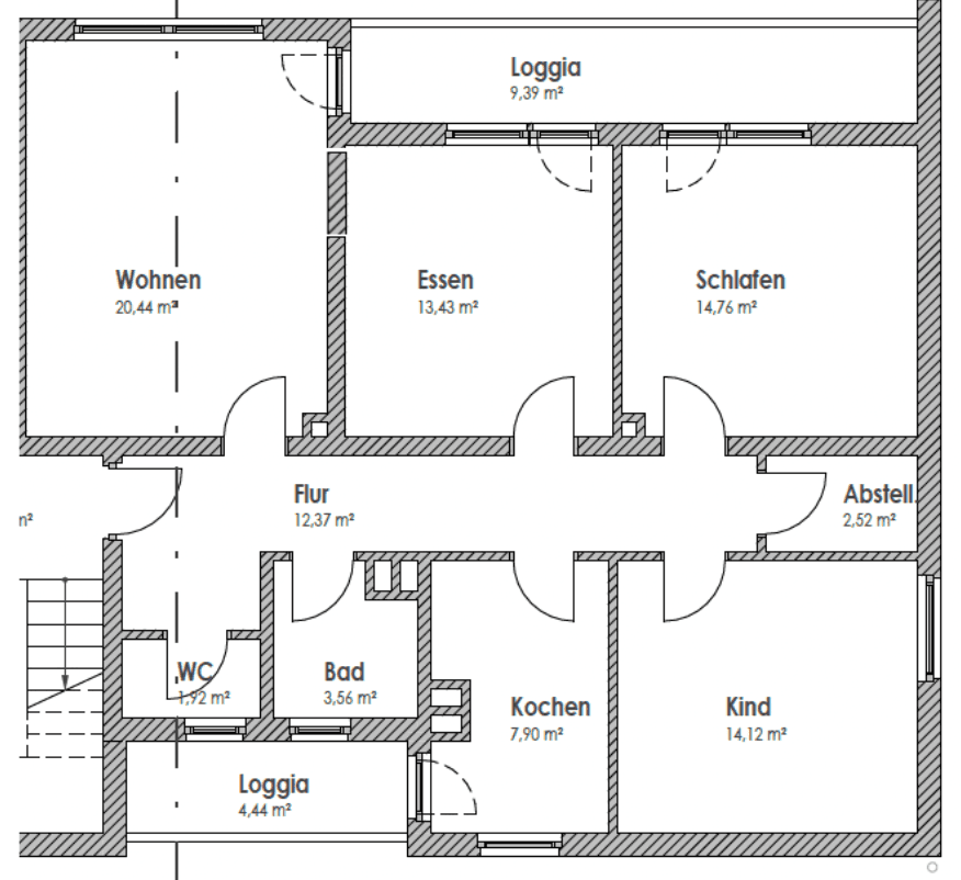
Flat to rent 4+1 • 93 m² without real estateRingstraße, , Baden-Württemberg
Ringstraße, , Baden-WürttembergPublic transport 3 minutes of walking • GarageFirst occupancy after complete gut renovation: This bright 4-room apartment with 2 loggias (facing north and south) in a 6-unit building in Walldürn is currently undergoing a comprehensive gut renovation and offers modern living comfort on approximately 93 m². Thanks to the complete renewal of the flooring, walls, interior doors, and the bathroom and kitchen areas, the property presents itself in like-new condition.
As part of the renovation work, the following is being carried out:
- All wall and ceiling surfaces are being finished with a high-quality mineral plaster and a fresh coat of white paint.
- A modern, high-quality acoustic vinyl floor is being installed.
- All room doors, along with their frames, are being replaced and fitted with stainless steel-style door handles.
- The modernized bathroom is being equipped with a new bathtub, a folding real glass panel, and a designer washbasin in a wild oak finish with a dimmable LED mirror cabinet, as well as an installed towel radiator.
- A separate guest WC is being installed, featuring a new rimless wall-hung toilet and an additional hand basin.
- The electrical system is being completely renewed: all sockets and light switches in the apartment will be replaced with new components.
- All water pipes have been replaced.
- Additional details include fresh painting of the radiators and window sills, and the kitchen wall tiles are being prepared for a new kitchen unit.
The apartment is expected to be completed by mid to late March and will be available at the latest from April 1, 2026. Pictures will be uploaded as soon as they are available – for now, you can view images of the materials used.
Heating and electricity costs are paid directly by the tenant to the provider.
If you are interested in renting, you will need to submit a completed self-disclosure form, proof of income, and a SCHUFA credit report.
The apartment impresses with its central location in a low-traffic part of the ring road in Walldürn, offering you maximum independence. All important amenities are within a few minutes’ walk:
- A supermarket for your daily needs is only a 1-minute walk away.
- The train station can be reached comfortably in just a 3-minute walk.
- A general practitioner is located in the immediate vicinity (3 minutes on foot).
This combination of a high-quality comprehensive renovation and a prime location makes the apartment an ideal home for families or couples who value quality and short distances.
Property characteristics
| Age | Over 5050 years |
|---|---|
| Condition | After reconstruction |
| Floor | 3. floor out of 3 |
| Usable area | 93 m² |
| Available from | 01/04/2026 |
|---|---|
| Layout | 4+1 |
| Listing ID | 994996 |
| Price per unit | €9 / m2 |
What does this listing have to offer?
| Balcony | |
| Garage |
| Basement | |
| MHD 3 minutes on foot |
What you will find nearby
Still looking for the right one?
Set up a watchdog. You will receive a summary of your customized offers 1 time a day by email. With the Premium profile, you have 5 watchdogs at your fingertips and when something comes up, they notify you immediately.






