House for sale 5+1 • 265 m² without real estate, Lower Saxony
, Lower SaxonyPublic transport 1 minute of walking • Parking • GarageThis unique city villa in a country house style crowns an expansive plot and combines the best of both worlds: the representative spaciousness of a classic villa with the warm, rustic charm of rural life.
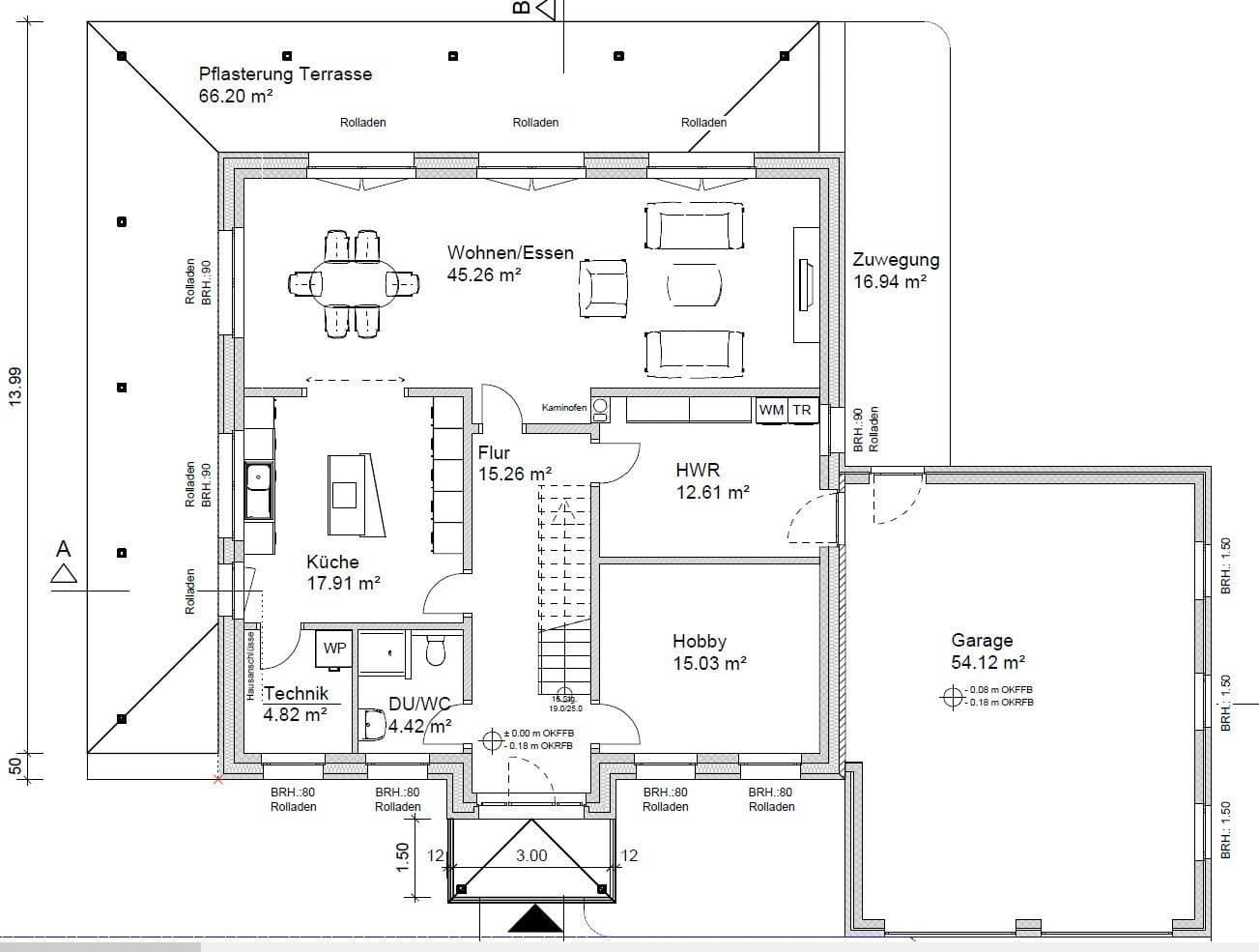
Inside, a light-filled oasis awaits you thanks to two full floors and high ceilings. The centerpiece is the open, spacious living and dining area with a cozy fireplace that brings comfort on cool evenings.
An open kitchen is where laughter, cooking, and dining come together. While guests sit at the counter, you create culinary delights and are always part of the conversation – rather than standing alone by the stove. Dining becomes a communal experience.
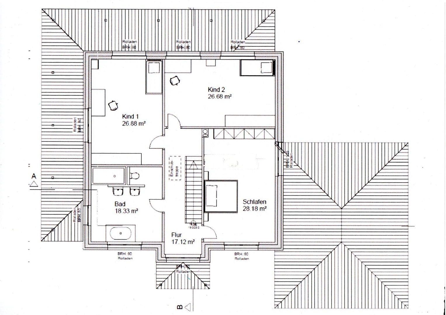
The upper floor hosts the spacious bedrooms and children’s rooms, as well as a luxurious bathroom with a freestanding bathtub.
The expansive garden with its fruit trees and a generous veranda invites you to relax and savor the moment – the perfect retreat to escape everyday life.
The city villa is complemented by a harmoniously integrated double garage. A wide, paved driveway provides an additional 3 parking spaces.
Thus, this villa offers not only a stylish home but also an outstanding quality of life in a highly sought-after location.
Unique location in the heart of Riede! It is a place for the whole family – rural and quiet, yet still close to the city.
This property is situated in one of the best locations in the charming town of Riede, nestled in a quiet, family-friendly neighborhood. The residential street ends in a traffic-calmed cul-de-sac, which increases child safety and enhances privacy.
Within walking distance, you will find all the essential facilities of daily life, including a nursery (ages 1–3), a kindergarten, an elementary school, a sports hall, several playgrounds, as well as a supermarket, two bakeries, a post office, and bus stops.
Medical care is accessible on foot via a community practice with three doctors, a pharmacy, and physiotherapy.
Recreational opportunities in and around Riede include: a local sports club, a football field, a shooting club, a riding facility for horse enthusiasts, a sports boat harbor in Dreye with a sailing and water sports club, an ancestral estate in Thedinghausen with a tree park and playground, an adventure pool in Verden, and an outdoor pool in Weyhe.
Within a 7 km radius, you will find Lidl, Edeka, Netto, a pharmacy, medical practices, kindergarten, elementary school, secondary and comprehensive schools, a gymnasium, and public transportation.
Riede boasts an excellent transport infrastructure. With bus and train, you can quickly reach the surrounding towns and Bremen. By car, it is about 10 minutes to the Bremen town sign and the Bremen-Arsten motorway exit. Bremen’s old town is about 23 minutes away, Bremen Airport is approximately 18 minutes by car, and the Mercedes-Benz plant is around 16 km away.
A+ City Villa, 40KfW House 264.29 m² + Garage 54 m², 10 minutes from the central station
Family dream – Spacious living in "Grünes Riede"
On 264 m², generous space design, high-quality materials, and features that leave nothing to be desired come together.
This city villa was built in solid masonry construction and offers a safe and durable home.
Equipment:
• Geothermal heating installed with six bore hole circuits on the plot, geothermal heat pump with passive cooling, hot water storage (180 liters, brand: Alpha InnoTec, type: WZ S81H/K)
• Soothing underfloor heating throughout the house
• Controlled ventilation system with heat recovery and additional interchangeable pollen filters for summer and charcoal filters for winter
• Light-filled living and dining area with a fireplace and open kitchen (Nobilia fitted kitchen)
• Lockable, multi-point locking sash windows and terrace doors with triple glazing and electric roller shutters
• Front door and garage door with multi-point locking are equipped with modern security fittings and high-quality locking cylinders
• Ground floor and upper floor bathroom finished with high-quality tiles
• Upper floor with laminate flooring
• Fiber optic connection; all living areas are equipped with LAN and TV outlets
• Ground floor ceiling height of 270 cm, upper floor ceiling height of 250 cm, interior door leaf dimensions 86 cm x 212 cm
• Bathroom: shower 118 cm x 98 cm, freestanding bathtub, 2 washbasins
• Guest bathroom with shower 90 cm x 90 cm
• Finished attic with gypsum board
• Upper and lower floors feature reinforced concrete ceilings
• Garage: 54.12 m², ceiling height of 260 cm, two electrically operated insulated Hörmann garage doors, three lockable windows with window sills, garage door with security locking, interior walls plastered, floor with high-quality industrial tiles, walkable attic accessible via insulated retractable stairs, featuring a gypsum board-clad wooden beam ceiling and two galvanized H-beams, insulated with 200 mm glass wool; in the full brickwork, eight struts with reinforced concrete and continuous ring beams are incorporated.
• Exterior facade of house and garage: OLFRY clinker bricks and hard-fired plinth clinker
• Black, high-quality glazed roof tiles (advantage: no dirt build-up, such as verdigris)
• Terrace and front door canopy (wood construction with roof tiles)
• The property is completely fenced and lockable (front: galvanized, powder-coated wrought iron fence; sides and rear: 182 cm high double bar mesh fence)
Additional Information:
• Living area: 264.29 m² + Garage 54.12 m²
• Plot size: 1040 m²
• Property condition: like new
• Year of construction: 2015
• Available from: 01.09.2026
Energy:
• Energy certificate: Energy consumption certificate
• Energy consumption: 9.0 kWh/(m²·a)
• Energy efficiency class: A+
• Type of heating: Underfloor heating
• Main energy source: Geothermal
All information is provided without any guarantee.
The property is sold as seen and where it lies.
This property is commission-free and free of encumbrances.
Viewings are by appointment only with proof of financing.
Property characteristics
| Age | Over 5050 years |
|---|---|
| Condition | Very good |
| Listing ID | 994672 |
| Usable area | 265 m² |
| Total floors | 2 |
| Available from | 01/09/2026 |
|---|---|
| Layout | 5+1 |
| EPC | A - Extremely economical |
| Land space | 1,040 m² |
| Price per unit | €3,698 / m2 |
What does this listing have to offer?
| Garage | |
| MHD 1 minute on foot |
| Parking | |
| Terrace |
What you will find nearby
Still looking for the right one?
Set up a watchdog. You will receive a summary of your customized offers 1 time a day by email. With the Premium profile, you have 5 watchdogs at your fingertips and when something comes up, they notify you immediately.





















