
Flat to rent 3+kk • 105 m² without real estateIm Schießgärtle 17 Stuttgart Möhringen Baden-Württemberg 70567
Im Schießgärtle 17 Stuttgart Möhringen Baden-Württemberg 70567Public transport 6 minutes of walking • GarageWelcome to your attractive 3.5-room apartment on the first floor of an elegant and newly renovated three-family house in Stuttgart-Möhringen.
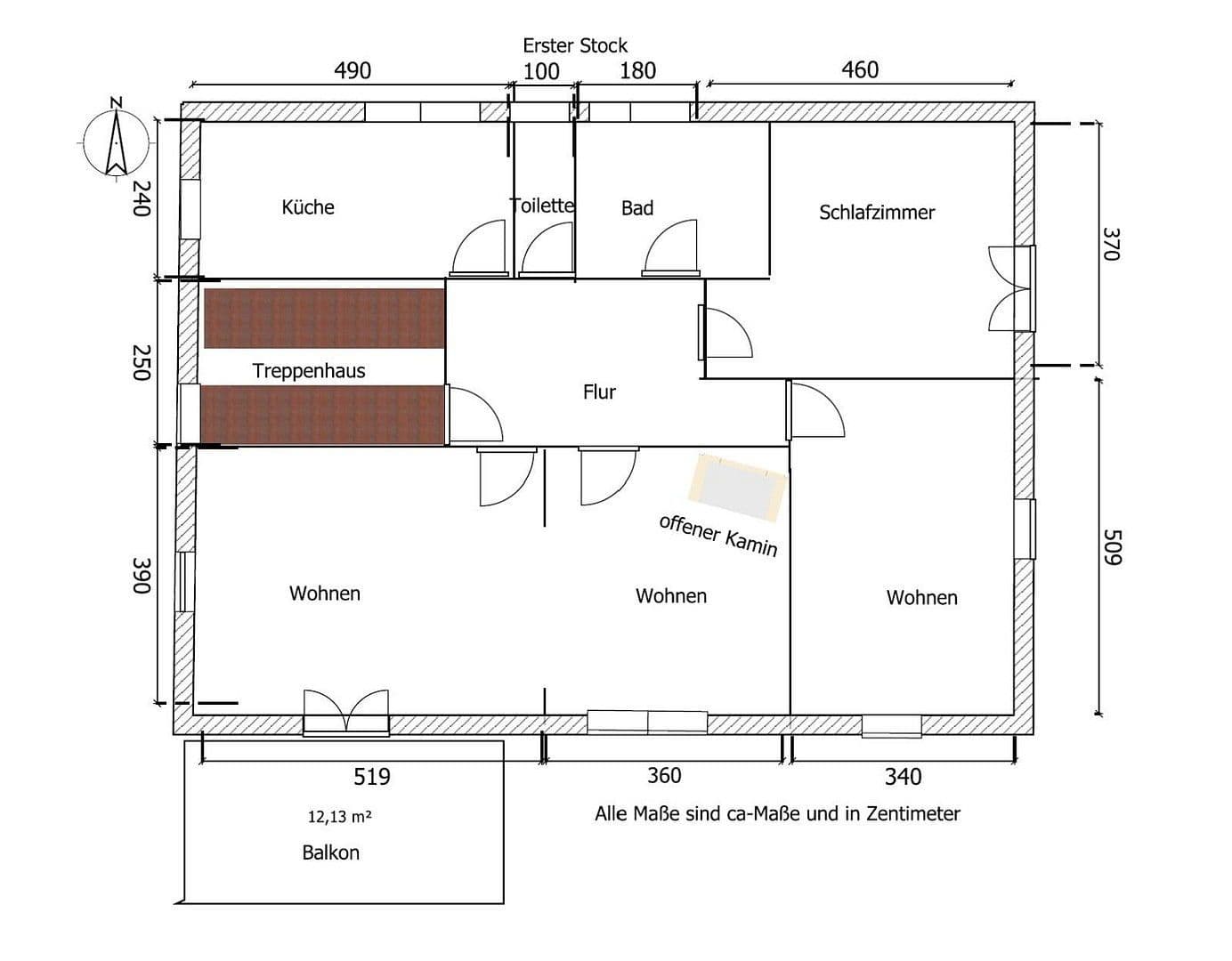
After the complete core renovation of the building, this apartment is now available as a first occupancy and offers modern living comfort on approximately 105 m² of living space.
The apartment is divided into a living and dining area with a fireplace area and balcony, a separate kitchen, a large study, a bedroom, a bathroom, a guest WC, and an open hallway that connects all the rooms. Additionally, there is a large basement room with a washing machine connection.
The interior features underfloor heating, ventilation systems with heat recovery, a walk-in shower, LAN connections in all rooms including a media distribution panel and fiber-optic preparation, and much more, ensuring a very pleasant living experience.
Heating is provided by a modern heat pump that is, among other things, powered by a photovoltaic system.
As part of the renovation, the building was insulated, and all water pipes, electrical wiring, and building services were updated to the latest standards without compromising the charm of the house.
The images were created with the help of AI for orientation purposes only, as the interior construction is not yet complete.
The street "Im Schießgärtle" is very quiet, yet you are only a few minutes away from the center of Möhringen.
The apartment has been refurbished with high-quality, upscale materials.
Property characteristics
| Age | Over 5050 years |
|---|---|
| Layout | 3+kk |
| Listing ID | 994571 |
| Usable area | 105 m² |
| Condition | After reconstruction |
|---|---|
| Floor | 1. floor out of 3 |
| EPC | A - Extremely economical |
| Price per unit | €24 / m2 |
What does this listing have to offer?
| Balcony | |
| Garage |
| Basement | |
| MHD 6 minutes on foot |
What you will find nearby
Still looking for the right one?
Set up a watchdog. You will receive a summary of your customized offers 1 time a day by email. With the Premium profile, you have 5 watchdogs at your fingertips and when something comes up, they notify you immediately.





