
Flat for sale 3+1 • 76 m² without real estateKukelská, Prague - Hloubětín
Prodej bytu 3+1 76 m²
3+1 Hloubětín – čisté plátno s lodžií, výtahem a velkým potenciálem
Praha 9 | 1. patro | lodžie 6 m² | sklep 2 m² | výtah | osobní vlastnictví | PENB C
Hledáte byt, kde neplatíte za cizí vkus, ale vytvoříte si bydlení přesně podle sebe?
Tento byt 3+1 v oblíbeném Hloubětíně je ideální volbou pro vlastní bydlení i jako investice.
🛠 Byt je připravený na rekonstrukci – žádné kompromisy, vše podle vašich představ.
⚡ Kompletně nová měděná elektroinstalace – jedna z nejdražších částí už je hotová.
🌿 Zasklená lodžie o velikosti 6 m² poskytuje příjemný prostor navíc pro relax i praktické využití po celý rok. Šetří nemalé peníze v topné sezóně.
🛗 Dům má výtah, pohodlný přístup je samozřejmostí.
🏷 Energetická náročnost budovy: C – rozumné provozní náklady.
🏠 Osobní vlastnictví – bez omezení financování hypotékou.
Fond oprav činí 2 748kč
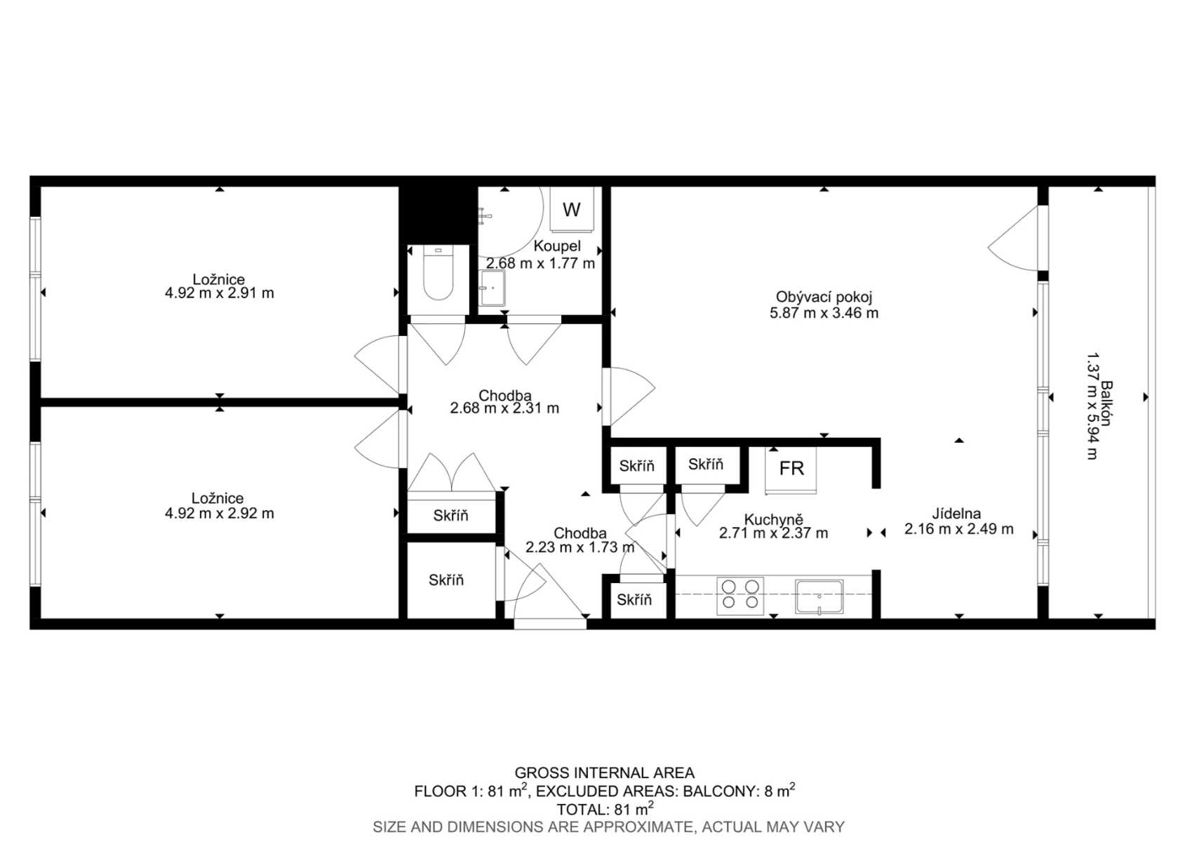
Plochy a dispozice:
podlahová plocha bytu: 76 m²
celková užitná plocha včetně lodžie: 82 m²
a sklepní kóje: 2 m²
dispozice 3+1 – ideální pro rodinu i pronájem
1. patro – praktické a dobře dostupné
výborný základ pro moderní rekonstrukci
vysoký potenciál zhodnocení po úpravách
Lokalita Hloubětín nabízí klid, zeleň, kompletní občanskou vybavenost a rychlé spojení do centra Prahy.
Shrnutí:
Byt, který dává smysl hlavou i srdcem.
Skvělá adresa, silné technické základy a volná ruka pro budoucího majitele.
Sale of a 3+1 Apartment, 82 m²
3+1 Hloubětín – a blank canvas with a loggia, elevator, and great potential
Prague 9 | 1st floor | 6 m² loggia | 2 m² storage room | elevator | freehold ownership | Energy Certificate C
Are you looking for an apartment where you don’t pay for someone else’s taste, but instead create a living space exactly the way you want it?
This 3+1 apartment in the popular Hloubětín area is the perfect choice for both owner-occupiers and investors.
🛠 The apartment is ready for renovation – no compromises, everything tailored to your ideas.
⚡ Completely new copper electrical installation – one of the most expensive parts is already done.
🌿 The glazed loggia, spanning 6 m², provides a pleasant extra space for relaxation and year-round use, saving you quite a bit during the heating season.
🛗 The building has an elevator, ensuring easy access.
🏷 Energy class of the building: C – reasonable operating costs.
🏠 Freehold ownership – no restrictions when it comes to mortgage financing.
Areas and layout:
• Apartment floor area: 76 m²
• Total usable area including the loggia: 82 m²
• Storage room: 2 m²
• Layout 3+1 – ideal for a family or rental
• 1st floor – practical and easily accessible
Excellent foundation for a modern renovation
High potential for value increase after improvements
The Hloubětín location offers tranquility, greenery, complete civic amenities, and fast connections to the center of Prague.
Summary:
An apartment that makes sense both in mind and heart.
A great address, solid technical foundations, and complete creative freedom for the future owner.
Property characteristics
| Available from | 24/02/2026 |
|---|---|
| Building construction | Precast concrete |
| Fully furnished | Unfurnished |
| Design | Standard |
| Listing ID | 994434 |
| EPC | C - Economical |
| Usable area | 76 m² |
| Condition | Before reconstruction |
|---|---|
| Layout | 3+1 |
| Floor | 1. floor out of 5 |
| Heating | Distance |
| Ownership | Personal |
| Location | Quiet area |
| Price per unit | CZK 119,211 / m2 |
Are you choosing a apartment?
Make sure you have all the important information!
What does this listing have to offer?
| Wheelchair accessible | |
| Lift |
| Basement: 2 m² | |
| Loggia balcony: 6 m² |
What you will find nearby
Still looking for the right one?
Set up a watchdog. You will receive a summary of your customized offers 1 time a day by email. With the Premium profile, you have 5 watchdogs at your fingertips and when something comes up, they notify you immediately.





















