House for sale • 470 m² without real estate, Thuringia
The listed multi-family house from 1900 offers a total living area of approximately 470 m². The well-maintained building stands on a plot of around 245 m² and is presented in excellent condition.
The practical layout allows for flexible design and use of the spaces. All floors are equipped with laminate flooring, creating a uniform and homely ambience.
Some of the apartments feature a cozy balcony. The house has a basement, providing additional storage space and versatile usage possibilities.
The targeted annual net cold rent amounts to approximately €29,400. Currently, one apartment is occupied by a tenant; it will be available again from May 1, 2026.
We look forward to your inquiry and are pleased to provide you with further information.
The multi-family house is located near the center of Altenburg. The city lies in the midst of the Leipzig, Chemnitz, and Gera triangle. Grocery stores, daily shopping facilities, restaurants, kindergartens, schools, doctors, pharmacies, banks, and much more are in the immediate vicinity and can be reached by public transport. The property is very well connected, with quick access to highways such as the A4 and A72.
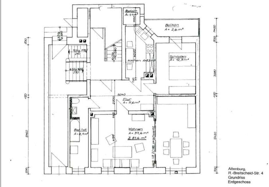
Ground Floor:
Apartment 1: 3 rooms, kitchen, bathroom (81.60 m²)
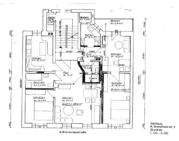
First Floor:
Apartment 2: 2 rooms, kitchen, bathroom (59.40 m²)
Apartment 3: 2 rooms, kitchen, bathroom (44.30 m²)
Second Floor:
Apartment 4: 4 rooms, kitchen, bathroom (103.00 m²)
Third Floor:
Apartment 5: 2 rooms, kitchen, bathroom (59.40 m²)
Apartment 6: 2 rooms, kitchen, bathroom (44.30 m²)
Attic:
Apartment 7: 2 rooms, kitchen, bathroom (39.10 m²)
Apartment 8: 2 rooms, kitchen, bathroom (38.90 m²)
The property is being sold in its current condition. The seller assumes no liability for the condition, absence of material defects, or the size of the property. The sale is made excluding any warranty for material defects. This does not apply in cases of fraud or for any characteristics that have been expressly guaranteed. The real estate offer is non-binding. Any errors or a prior sale remain reserved.
Interested? Then send us an inquiry.
Property characteristics
| Age | Over 5050 years |
|---|---|
| Listing ID | 994188 |
| Usable area | 470 m² |
| Price per unit | €1,032 / m2 |
| Condition | Good |
|---|---|
| EPC | D - Less economical |
| Land space | 245 m² |
What does this listing have to offer?
| Basement |
| MHD 2 minutes on foot |
What you will find nearby
Still looking for the right one?
Set up a watchdog. You will receive a summary of your customized offers 1 time a day by email. With the Premium profile, you have 5 watchdogs at your fingertips and when something comes up, they notify you immediately.











