
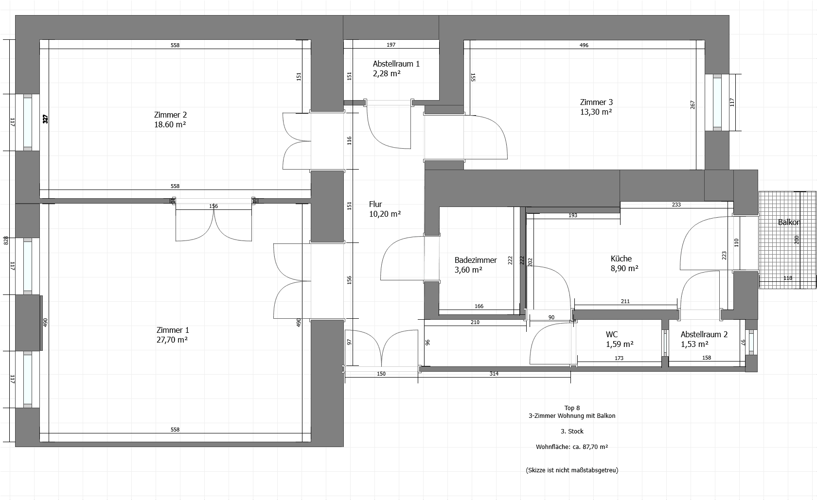
Flat for sale 3+1 • 87 m² without real estatePestalozzistraße 28 Graz Jakomini Steiermark 8010
Pestalozzistraße 28 Graz Jakomini Steiermark 8010Public transport 2 minutes of walkingEach of the 3 rooms is accessible separately, and the two larger rooms are additionally connected by a double door. There are 2 storage rooms, 1 bathroom, and a small utility balcony overlooking the courtyard garden.
The apartment is very bright since it is located on the 3rd floor. The attic above has been renovated and newly developed.
The apartment is assigned a basement compartment, and there is the possibility of sharing a small communal garden in the courtyard.
It is located directly behind the popular Augartenpark in a renovated historic building in a central, quiet location. Within a few minutes’ walk, you can reach Graz city center, Jakominiplatz, as well as numerous shops and restaurants.
The apartment is partially furnished, and there are currently electric heaters in the living areas. In the building, there is the option to connect to either the existing gas network or district heating system.
Property characteristics
| Available from | 09/03/2026 |
|---|---|
| Layout | 3+1 |
| Listing ID | 994138 |
| Price per unit | €4,011 / m2 |
| Condition | Before reconstruction |
|---|---|
| Floor | 3. floor |
| Usable area | 87 m² |
What does this listing have to offer?
| Balcony | |
| MHD 2 minutes on foot |
| Basement |
What you will find nearby
Still looking for the right one?
Set up a watchdog. You will receive a summary of your customized offers 1 time a day by email. With the Premium profile, you have 5 watchdogs at your fingertips and when something comes up, they notify you immediately.














