House to rent 7+1 • 243 m² without real estateAltötting Altötting Bayern 84503
Altötting Altötting Bayern 84503Public transport 2 minutes of walking • GarageThe single-family house with a guest apartment and a very spacious, well-kept garden was built in 1975 in the Bauhaus style.
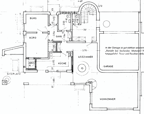
On the ground floor, in addition to the dining room and kitchen, there is a very large living room (almost 40 square meters) that faces south.
Additionally, in the western part of the house, the guest apartment is located, featuring two office rooms as well as a shower and toilet. This apartment has its own separate entrance and is currently connected to the rest of the house.
Three large bedrooms and two additional bathrooms are situated on the upper floor, along with a south-facing balcony.
In the basement, besides the technical/heating room, there is a laundry room and a storage room. The highlight in the basement is the very spacious hobby room with a large window front (facing south with a lowered section for plenty of light).
The garage is a double garage – there is room for two cars.
The rental property is located in the western part of Altötting in a residential area in a quiet cul-de-sac and faces south.
The house was built in 1975 in the Bauhaus style and has been renovated repeatedly over the years, although most of it remains in its original condition. The bathrooms date back to the time of construction but are very well maintained. In some areas, electric shutters are installed.
In 2023, the oil heating was replaced by a district heating connection.
The house was recently connected to Telekom’s fiber optic network.
Renovations and cosmetic repairs can be carried out in consultation.
To offset inflation, a graduated rent is agreed upon. The details will be explained during a personal conversation.
Please send inquiries via email, including your phone number and possible callback times.
I will be happy to return your call – thank you very much.
Property characteristics
| Age | Over 5050 years |
|---|---|
| Layout | 7+1 |
| EPC | G - Extremely uneconomical |
| Land space | 745 m² |
| Price per unit | €9 / m2 |
| Condition | Good |
|---|---|
| Listing ID | 993879 |
| Usable area | 243 m² |
| Total floors | 2 |
What does this listing have to offer?
| Balcony | |
| Garage | |
| Terrace |
| Basement | |
| MHD 2 minutes on foot |
What you will find nearby
Still looking for the right one?
Set up a watchdog. You will receive a summary of your customized offers 1 time a day by email. With the Premium profile, you have 5 watchdogs at your fingertips and when something comes up, they notify you immediately.






















