
Flat for sale 3+kk • 99 m² without real estate, Baden-Württemberg
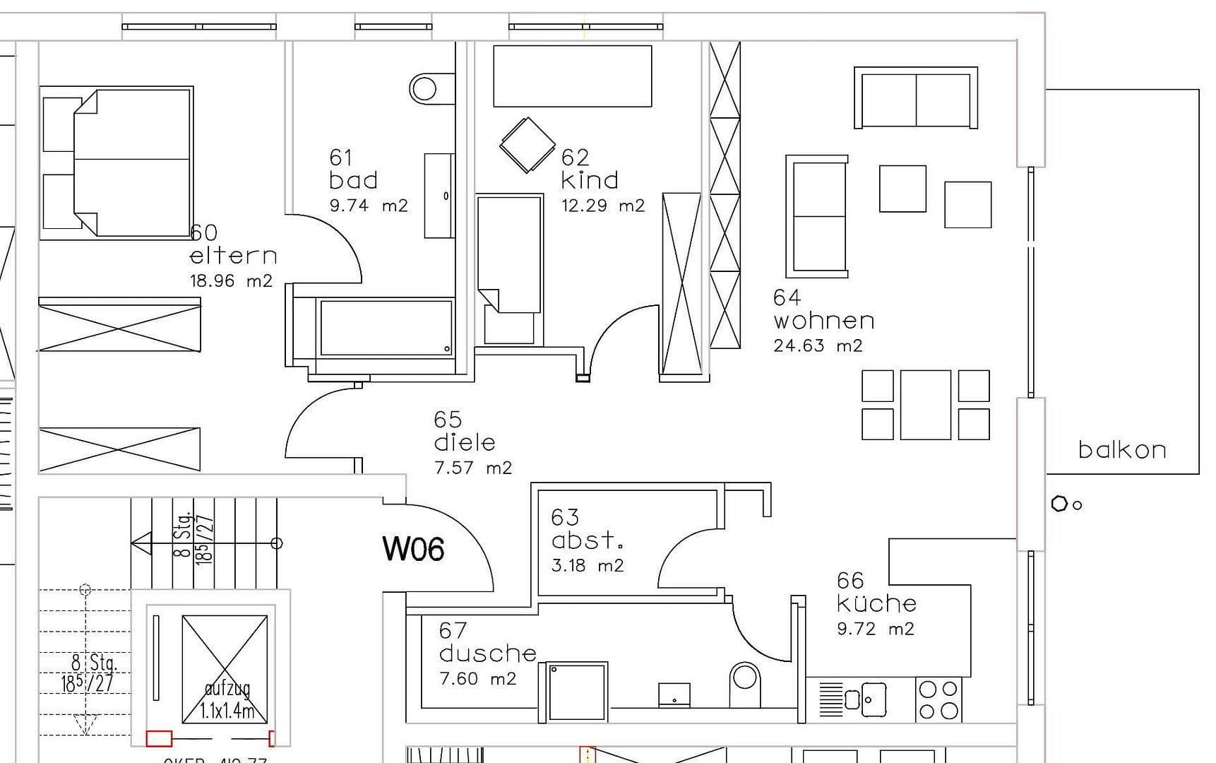
, Baden-WürttembergPublic transport 3 minutes of walking • Lift • GarageThis modern apartment impresses with its high-quality fittings. The roughly 98 m² of living space are divided into a spacious living and dining area with an open kitchen, a bedroom with a large en-suite bathroom, a child's/office/guest room, a fully equipped second bathroom, and a generous balcony. In addition, there is a practical storage room and a small utility room (with a washing machine and dryer). It is located in an apartment building with 13 units built in 2013 (first occupancy in 2014).
The tiles laid throughout the apartment provide an easy-to-maintain yet homely ambience that harmoniously adapts to any interior design style. The pleasant, feel-good climate inside the apartment is supported by a mechanical ventilation system (perfect for allergy sufferers!), a split air conditioning system with three indoor units (ensuring comfort even on the hottest summer days), and underfloor heating. The apartment building is heated by a combined heat and power unit (CHP) along with a central gas heating system.
The apartment also features triple-glazed plastic windows, electric shutters, and an electric awning. An elevator conveniently takes you from the underground garage nearly right up to the apartment.
Leinfelden-Echterdingen – located south of Stuttgart – offers excellent infrastructure, a green environment, and optimal connections to economic centers and leisure facilities. Shopping opportunities, restaurants, doctors, and schools are only a few minutes away. You will appreciate the quiet residential street, the diverse educational offerings, and the immediate neighborhood adjacent to the nature-friendly outskirts of the city with numerous cycling and walking paths. At the same time, cultural and sports facilities provide a varied leisure offer.
It is particularly worth highlighting that the location is ideal for commuters: Stuttgart, the airport, and the state fair can be reached in no time via the B27 and the A8. The S-Bahn and U-Bahn connect Leinfelden-Echterdingen directly with downtown Stuttgart!
– Built in 2013, modern apartment building with 13 units
– Apartment located on the 1st floor with approximately 98 m² of living space
– 1 en-suite bathroom with a level, large shower
– 1 fully equipped second bathroom with a shower
– Mechanical ventilation system with fine dust filter for the entire apartment
– Split air conditioning system (Daikin) with 3 indoor units in the bedroom, guest room, and living room
– High-quality tiles in all rooms
– Underfloor heating in all rooms
– Triple-glazed plastic windows with electric shutters
– Balcony with panoramic views
– Electric awning
– Elevator from the underground garage to the 3rd floor
– Washing machine connection in the apartment and in the communal laundry room in the basement
– CHP with supporting central gas heating system
– Underground parking space with an 11 kW wallbox from Heidelberg
– Private basement storage as well as a communal bicycle storage area and boiler room
Property characteristics
| Age | Over 5050 years |
|---|---|
| Condition | After reconstruction |
| Floor | 1. floor |
| EPC | B - Very economical |
| Price per unit | €5,303 / m2 |
| Available from | 01/05/2026 |
|---|---|
| Layout | 3+kk |
| Listing ID | 993873 |
| Usable area | 99 m² |
What does this listing have to offer?
| Balcony | |
| Garage | |
| MHD 3 minutes on foot |
| Basement | |
| Lift |
What you will find nearby




Flat for saleGögelbachstraße 12 Stuttgart Untertürkheim Baden-Württemberg 70327- 3+1
- 85 m²
€420,000 + €500
Still looking for the right one?
Set up a watchdog. You will receive a summary of your customized offers 1 time a day by email. With the Premium profile, you have 5 watchdogs at your fingertips and when something comes up, they notify you immediately.











