House to rent 7+1 • 220 m² without real estateMarkgrafenstr. 7, , Baden-Württemberg
Markgrafenstr. 7, , Baden-WürttembergPublic transport 3 minutes of walking • Parking • GarageBelow is the translation of the text marked by the XML tag:
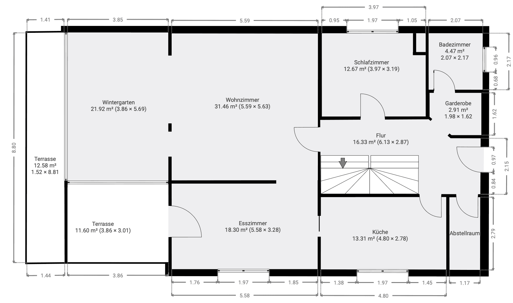
For rent is a detached single-family house in the quiet and family-friendly area of Teningen-Nimburg. The house offers approximately 220 m² of living space, a surrounding, completely fenced garden, and a very high-quality, comprehensively modernized equipment – ideal conditions for families with children seeking a spacious, long-term home.
The property covers approximately 554 m² and is fully fenced – ideal for children and pets. The well-maintained garden features a new pergola with electrical connections and lighting, a balcony power plant, a garden shed, three raised beds, as well as a groundwater well for garden irrigation.
A special highlight is the spacious conservatory, which can be used as a fully functional living area. It is heated, includes a Swedish stove, a modern automatic shading system (including sun position and temperature measurement), underfloor heating, and two large terrace doors. The terrace will be newly constructed as a raised terrace at the level of the conservatory and is directly accessible from both the conservatory and the dining room.
The house spans three floors:
Basement:
Workshop, study, utility room with sauna (including modern, app-controlled operation), hallway/pre-basement. The basement is not renovated but is well-maintained and functional. New triple-glazed windows with new shutters are also being installed here, which significantly improves comfort and energy efficiency.
Ground floor:
Living room, dining room, kitchen, study, conservatory, guest WC with shower (to be fully renovated at the beginning of 2025, including a toilet/shower unit), hallway with wardrobe. The ground floor has been completely renovated. New triple-glazed plastic windows with electric shutters as well as integrated LED spotlights in the window reveals (smart controllable, e.g. via voice control) ensure a modern and atmospheric living ambience.
The kitchen will be upgraded spatially and receive new wall and floor coverings. A fitted kitchen is not provided, so tenants can bring their own kitchen to suit their personal tastes.
Upper floor:
The upper floor comprises three rooms, one bathroom, and a hallway. All living areas are equipped with laminate flooring.
The bedroom has direct access to the covered and tiled balcony with an area of approximately 10 m². Two further rooms can be used as children’s, study, or guest rooms.
As part of the planned measures, new triple-glazed windows with thermally insulated, electric shutters will be installed on the upper floor.
The bathroom will remain in its existing configuration. A roof window will be renewed and the fittings at the washbasins will be replaced. A passive underfloor heating is available.
The house is very well equipped technically:
In all living and sleeping rooms (except the bathroom) interconnected smoke and fire detectors are installed; in addition, interconnected carbon monoxide detectors are present in the boiler room and in the conservatory (Swedish stove).
Also part of the property is a new aluminum carport (built in 2024, illuminated with motion sensor) at the entrance, as well as a garage with an electric garage door at the back of the house.
Heating is provided by an oil central heating system, with hot water produced via the heating system. An energy performance certificate is available (key value 101.4 kWh/(m²·a); the certificate does not yet take into account the newly installed windows).
The single-family house is located in Teningen-Nimburg, a quiet and well-established district of the municipality of Teningen in the Emmendingen district. The area is characterized by a family-friendly residential environment, little traffic, and a pleasant neighborhood predominantly consisting of single- and two-family houses.
Nimburg offers a high quality of life through the combination of living close to nature and good infrastructural connections. Fields, meadows, and walking paths are in the immediate vicinity and invite leisure activities in the green. At the same time, the cities of Emmendingen and Freiburg im Breisgau can be reached quickly.
The transport connection is very good:
Via the nearby A5 motorway and the B3 federal road, Emmendingen, Freiburg, and the entire Breisgau region are quickly accessible. Commuters also benefit from the good regional connections. Public transport is available in Teningen and connects the municipality with the surrounding areas.
For families with children, the location is particularly attractive. Kindergartens, schools, playgrounds as well as sports and leisure facilities are available in Teningen and the adjoining districts. Shopping facilities for daily needs, doctors, pharmacies, and other service providers are also within a short distance.
Overall, the location provides an ideal balance of tranquility, security, and proximity to urban infrastructure – perfect for families who appreciate spacious living in a relaxed environment with good connectivity.
The single-family house features an extensively modernized and technically up-to-date equipment. In recent years, windows, sun protection, technology, and selected interior areas have been renewed. The focus is on living comfort, energy efficiency, safety, and suitability for everyday use.
Windows, Doors & Sun Protection
• Plastic windows (white), triple-glazed throughout the house
Ground floor:
• New windows
• Electric shutters
• Integrated LED spotlights in the window reveals, smart controllable
Upper floor:
• New windows
• New thermally insulated, electric shutters
Basement:
• New triple-glazed windows with new shutters
• High-quality, burglary-resistant front door with good thermal insulation (installed in 2021)
Interior Finishes & Floor Coverings
Ground floor (renovated):
• Tiles in hallway, dining room, and living room
• Kitchen: new vinyl flooring
• Study: laminate
• Guest WC: tiles with underfloor heating
• Conservatory: tiles with underfloor heating
Upper floor:
• All living areas with laminate flooring
Basement:
• Utility room: PVC
• Study: laminate
• Hallway: carpet
• Workshop: concrete
Kitchen
• The kitchen will be fitted with new wall and floor coverings.
• No fitted kitchen is included in the rental.
• Tenants can bring their own kitchen and design the room individually.
Bathrooms & Sanitary
Guest WC on the ground floor:
• To be fully renovated at the beginning of 2025
• With shower and modern toilet/shower unit
• Underfloor heating
Bathroom on the upper floor:
• Existing equipment will remain
• Renewal of a roof window
• Replacement of the fittings at the washbasins
• Passive underfloor heating available
Wellness & Comfort
• Sauna in the basement
• Control renewed in 2021
• App-controlled operation (on/off, temperature)
• Spacious utility room with direct connection to the sauna
Heating & Energy
• Oil central heating system
• Oil tank with approximately 6,000-liter capacity
• Hot water produced via the heating system
• Energy performance certificate available (key value 101.4 kWh/(m²·a), prior to window replacement)
Conservatory (fully functional living area)
• Heated
• Swedish stove
• Underfloor heating
• Automatic shading system with sun position and temperature measurement
• Two large terrace doors
The conservatory is a fully functional, heated living area with a Swedish stove, underfloor heating, and an automatic shading system.
The new raised terrace at the level of the conservatory is planned for summer/autumn 2026 and will then provide direct access from the conservatory and dining room to the garden.
Until completion, the outdoor area remains accessible via the garden.
Safety & Smart Home
• Interconnected smoke and fire detectors in all living and sleeping rooms (except the bathroom)
• Interconnected carbon monoxide detectors in the boiler room and conservatory
Outdoor Area & Parking Spaces
• Fully fenced property
• Surrounding garden
• New pergola with:
– Electrical connections
– Lighting
• Balcony power plant
• Garden shed
• Three raised beds
• Groundwater well for garden irrigation
The raised terrace at the level of the conservatory is in planning and is expected to be built in summer/autumn 2026. Once completed, a high-quality, direct transition from the living area to the garden will be created.
• New aluminum carport (built in 2024, illuminated)
• Garage with an electric garage door
Balcony on the upper floor:
• Covered
• Tiled
• Approximately 10 m² in size.
Property characteristics
| Age | Over 5050 years |
|---|---|
| Condition | After reconstruction |
| Listing ID | 993871 |
| Usable area | 220 m² |
| Total floors | 3 |
| Available from | 01/05/2026 |
|---|---|
| Layout | 7+1 |
| EPC | D - Less economical |
| Land space | 554 m² |
| Price per unit | €11 / m2 |
What does this listing have to offer?
| Balcony | |
| Garage | |
| MHD 3 minutes on foot |
| Basement | |
| Parking | |
| Terrace |
What you will find nearby
Still looking for the right one?
Set up a watchdog. You will receive a summary of your customized offers 1 time a day by email. With the Premium profile, you have 5 watchdogs at your fingertips and when something comes up, they notify you immediately.




















