House for sale 3+1 • 50 m² without real estate, Bavaria
Pre-announcement:
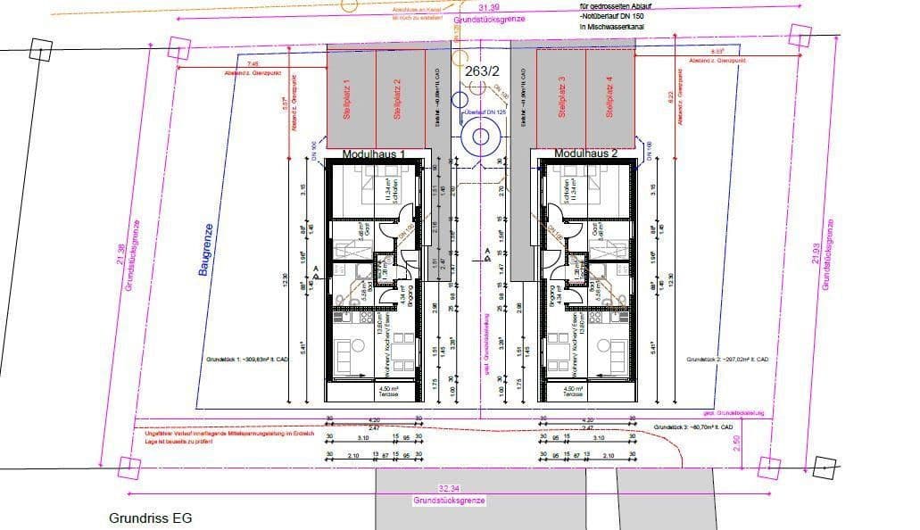
50 sqm design prefab house with approximately 300 sqm of land by the lake in Bruck in der Oberpfalz.
There are two prefab houses planned. These are scheduled for completion around June/July 2026.
The plots can also be purchased without the prefab houses. If you already own a plot, you can, of course, purchase our prefab houses without the land.
The visualizations of the prefab houses are for illustration purposes. The prefab houses can be built according to your wishes and can also be offered with interior furnishings upon request.
The purchase price of 220,000 euros refers to a non-binding indicative value of a prefab house according to EH 55 (in compliance with GEG) with standard equipment, standard windows, and underfloor heating, without interior furnishings and with a plot size of approximately 300 sqm in the location described above. The prefab houses can be customized to meet the customer's requirements and can also be delivered as EH 40. For further details and specific offer prices, please feel free to contact us.
This is an offer from MeinDesignhaus powered by DEGOS Immobilien Projektentwicklung.
DEGOS Immobilien Projektentwicklung is a branch of DEGOS Dental GmbH, Bayernstr. 10a, 93128 Regenstauf.
Lakeside plot in Bruck in der Oberpfalz.
The equipment can be customized to the customer's requirements.
Property characteristics
| Age | Over 5050 years |
|---|---|
| Condition | New-build |
| Listing ID | 993800 |
| Land space | 300 m² |
| Price per unit | €4,400 / m2 |
| Available from | 01/07/2026 |
|---|---|
| Layout | 3+1 |
| Usable area | 50 m² |
| Total floors | 1 |
What does this listing have to offer?
| Wheelchair accessible | |
| MHD 2 minutes on foot |
| Parking | |
| Terrace |
What you will find nearby
Still looking for the right one?
Set up a watchdog. You will receive a summary of your customized offers 1 time a day by email. With the Premium profile, you have 5 watchdogs at your fingertips and when something comes up, they notify you immediately.

