
Flat to rent 2 bedroom • 71 m² without real estateTusarova, Prague - Holešovice
Tusarova, Prague - HolešoviceEquipped • LiftLiability insurance requiredVerification of debt-free status requiredInterested?
Communicate all private owners and save CZK 23,000 on commissions.
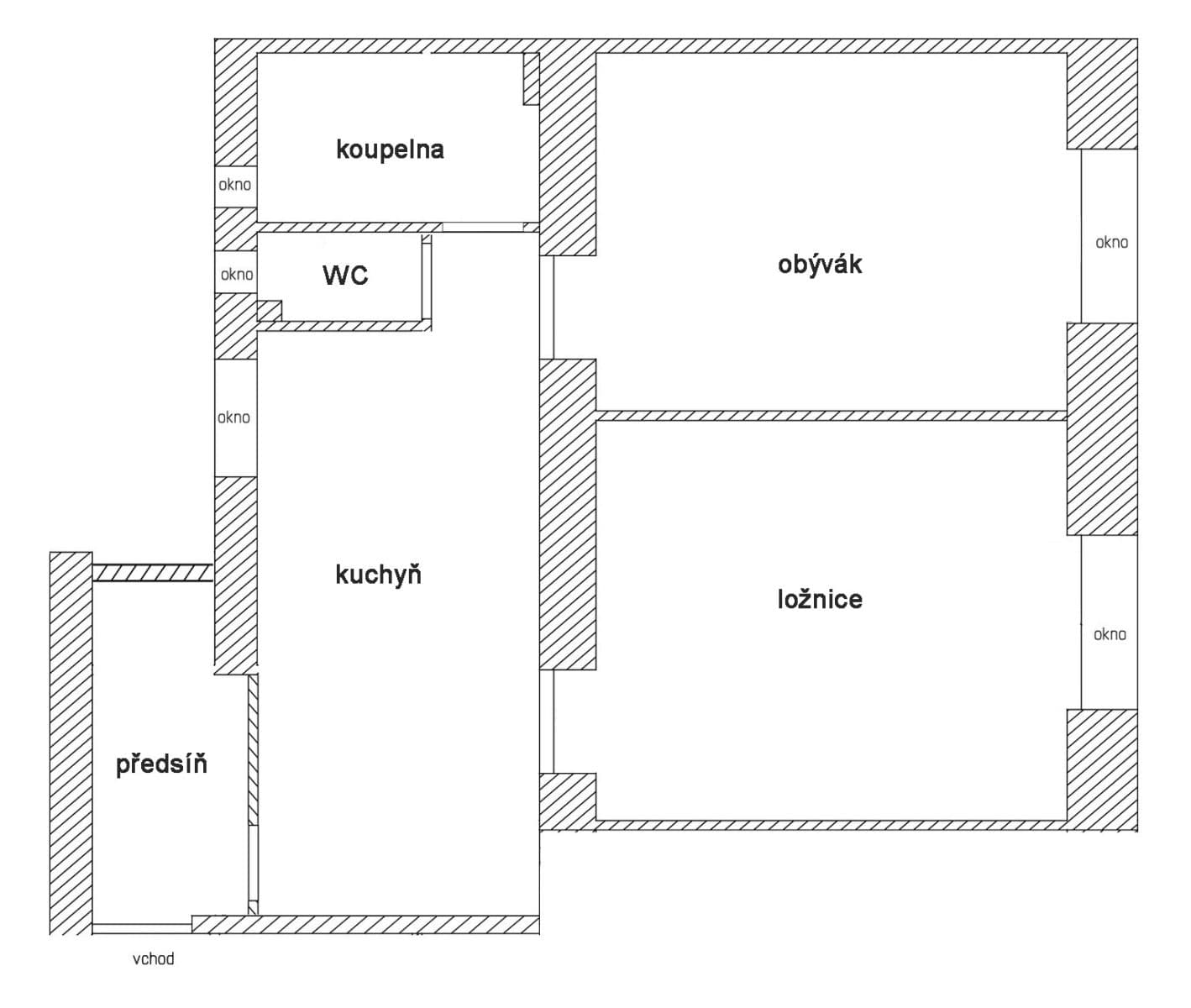
Nabízím k pronájmu světlý byt 2+1 o rozloze 70,9 m² v žádané lokalitě Holešovic, v krásném prvorepublikovém domě blízko pražské tržnice. Pokoje jsou situovány na východ s výhledem do oplocené předzahrádky. Kuchyň, WC a koupelna mají okna na západ do dvorku domu. Byt je v polosuterénu (okna v pokojích jsou v úrovni okolního terénu), přesto vzhledem k velikosti oken, východní orientaci a zeleně před okny nabízí nečekané množství světla.
Byt je základně vybavený a připravený k nastěhování. V předsíni je k dispozici 2dílná šatní skříň s posuvnými dveřmi. Z předsíně se vchází do prostorné kuchyně vybavené kuchyňskou linkou se sklokeramickou varnou deskou, elektrickou pečící troubou, lednicí s mrazákem, myčkou nádobí a mikrovlnnou troubou, rozkládacím jídelním stolem a 4 židlemi. Z kuchyně jsou vchody do všech ostatních místností bytu.
Samostatné WC má okno, je vybaveno radiátorem, umývadlem se skříňkou a baterií s bidetovou sprškou. Koupelna má též okno, vestavěný sprchový kout, umývadlo se skříňkou a radiátor (žebřík) napojený na rozvod topení, které lze v přechodných obdobích zapojit i nezávisle do elektrické sítě. V koupelně je umístěn plynový kondenzační kotel zajišťující etážové ústřední vytápění bytu a ohřev vody.
Obývací pokoj je vybaven rozkládací pohovkou, konferenčním stolkem, skříňkou pod TV a dvěma dalšími skříňkami (komodami), vše v jednotném stylu.
Ložnice je vybavena 2dílnou šatní skříní s posuvnými dveřmi, manželskou postelí, dvěma psacími stoly a komodou.
Všechna okna v bytě jsou vybavena žaluziemi a okna v pokojích sítěmi proti hmyzu.
Internet je k dispozici - kabelový rozvod v bytě od Vodafone nebo příprava u bytu - optická síť Pe3ny Net.
Energie (elektřina a plyn), internet a koncesionářské poplatky - převod na nájemce.
Pro více informací a sjednání prohlídky mne neváhejte kontaktovat prostřednictvím zpráv na komunikační platformě.
Property characteristics
| Available from | 01/03/2026 |
|---|---|
| Building construction | Brick |
| Fully furnished | Fully furnished |
| Listing ID | 993752 |
| Location | Quiet area |
| Price per unit | CZK 324 / m2 |
| Condition | Very good |
|---|---|
| Layout | 2 bedroom |
| Floor | Floors not specified |
| EPC | E - Wasteful |
| Usable area | 71 m² |
What does this listing have to offer?
| Lift |
What you will find nearby
Interested?
Communicate all private owners and save CZK 23,000 on commissions.
Still looking for the right one?
Set up a watchdog. You will receive a summary of your customized offers 1 time a day by email. With the Premium profile, you have 5 watchdogs at your fingertips and when something comes up, they notify you immediately.






















