
Flat to rent 2+kk • 52 m² without real estateTerezínská, Prague - Letňany
Interested?
Communicate all private owners and save CZK 23,400 on commissions.
Bez provize!
Majitel nabízí k dlouhodobému pronájmu světlý, plně zařízený byt o dispozici 2+kk o výměře 52 m2 v klidné lokalitě s kompletní občanskou vybaveností. Dům se nachází v docházkové vzdálenosti od metra (stanice Střížkov, Prosek).
Rohový byt se nachází ve 3. nadzemním podlaží bytového domu s výtahem a je orientován na jih a východ.
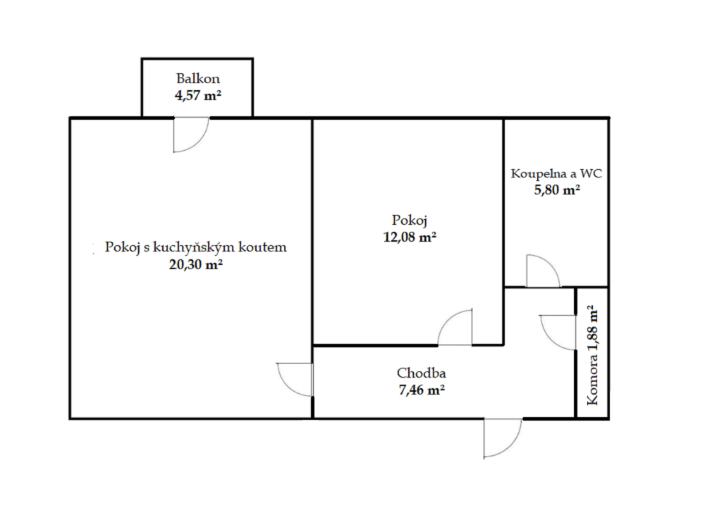
Obývací pokoj, spolu s kuchyňským koutem (20,30 m²), je vybaven vestavěným elektrickým sporákem se sklokeramickou varnou deskou, digestoří, mikrovlnnou troubou a lednicí s mrazákem. V obývací části se nachází jídelní stůl, židle, rozkládací pohovka, konferenční stolek a 2 poličky. Z obývacího pokoje je vstup na balkon (4,57 m²).
Ložnice (12,08m²) je vybavena skříní, postelí a 2 nočními stolky.
Vstupní chodba je vybavena botníkem s věšáky a zrcadlem. Z chodby je vstup do komory (1,88 m²).
Koupelna s WC (5,80 m²) je vybavena vanou, toaletní skříňkou se zrcadlem, skříňkou pod umyvadlo, pračkou a toaletou.
K bytu náleží vyhrazené parkovací místo před vstupem do domu a sklep (1,79 m²).
Nemovitost leží jen několik minut od stanic metra linky C - Prosek a Střížkov. Autobusová zastávka Českolipská je vzdálena přibližně 2 minuty chůze od domu. Velmi dobré je také spojení na stanici metra B Vysočanská - ze zastávky Letňanská, nacházející se zhruba 8 minut od domu.
Nedaleké obchodní centrum Letňany je dostupné za cca 5 minut jízdy autem, případně za 15 minut pěšky a nabízí širokou škálu obchodů, multikino, restaurace, kavárny, bazén, fitness centrum a hypermarket Tesco.
V blízkém okolí bytu je výborná občanská vybavenost. Nachází se zde mateřské, základní i střední školy, pošta a zdravotnická zařízení (poliklinika). V pěší vzdálenosti jsou restaurace a supermarkety Penny, Lidl, Billa, hobbymarket OBI a obchodní centrum Globus. Jen pár minut od domu je menší prodejna potravin, večerka, výdejní místo Zásilkovny a také Alzabox.
Byt je ideální pro pár či jednotlivce, který hledá moderní a pohodlné bydlení s výbornou dostupností do centra. K nastěhování od 1. března 2026, prohlídky jsou možné po předchozí dohodě od 23. února 2026.
V případě zájmu o bližší informace nebo domluvení prohlídky mne, prosím, kontaktujte prostřednictvím zpráv na komunikační platformě.
Property characteristics
| Age | 10 to 30 years |
|---|---|
| Condition | Very good |
| Layout | 2+kk |
| Floor | 3. floor out of 6 |
| Listing ID | 993718 |
| EPC | B - Very economical |
| Usable area | 52 m² |
| Available from | 01/03/2026 |
|---|---|
| Building construction | Skeleton |
| Fully furnished | Fully furnished |
| Heating | Central |
| Ownership | Personal |
| Location | Quiet area |
| Price per unit | CZK 450 / m2 |
What does this listing have to offer?
| Balcony: 5 m² | |
| Basement: 2 m² | |
| Parking |
| Wheelchair accessible | |
| Lift |
What you will find nearby
Interested?
Communicate all private owners and save CZK 23,400 on commissions.
Still looking for the right one?
Set up a watchdog. You will receive a summary of your customized offers 1 time a day by email. With the Premium profile, you have 5 watchdogs at your fingertips and when something comes up, they notify you immediately.
























