Flat to rent 4+1 • 131 m² without real estateKunibertusplatz 7, , North Rhine-Westphalia
Kunibertusplatz 7, , North Rhine-WestphaliaPublic transport less than a minute of walking • GarageThis 4-room maisonette apartment is located in a very well-maintained residential building in the heart of Erftstadt-Gymnich. The living area of approximately 130.74 m² is divided into 4 rooms, a high-quality functional fitted kitchen, a hallway, a bathroom with a large bathtub, a separate shower and WC, as well as a separate shower room with WC. One bathroom is located on the second floor – the other on the apartment’s upper level.
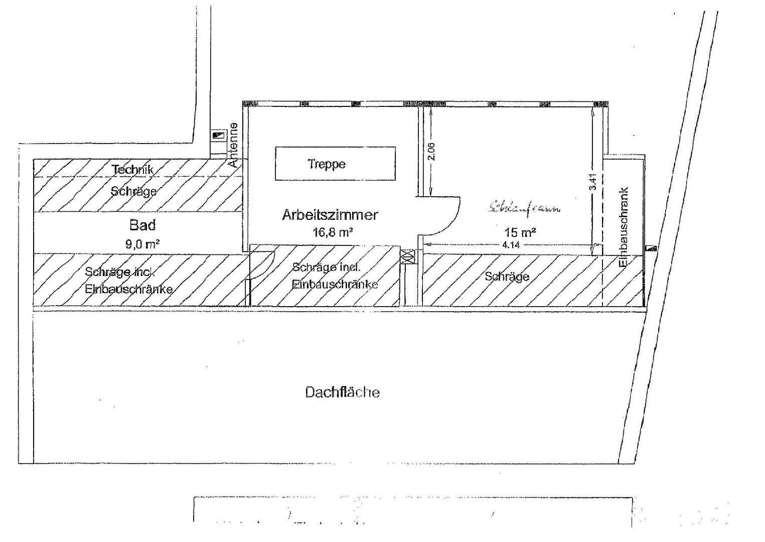
Layout:
On the second floor, you will find the living room, two bedrooms, the kitchen (a fitted kitchen is provided) and the shower room with a guest WC. Through the staircase integrated into the hallway, you can reach the gallery in the attic, another room, as well as a comfortable bathroom with a large bathtub and separate shower.
The lower bathroom includes a washing machine connection and the option to install an additional dryer. In the upper bathroom, a dryer can also be placed. In the inner courtyard, there is a separate drying room and bicycle room.
The apartment also comes with a basement room.
The lovingly landscaped courtyard can be used as an open space.
The elongated garage is located on the ground floor next to the entrance (with an electrically operated rolling door controlled by a remote).
See for yourself the feel-good offering and arrange an individual viewing appointment!
Conversion of the radiator readings to remote measurement in July 2026.
Calculation for 4 persons of the ancillary and heating costs for the billing period 01.07.2026 – 30.06.2027.
The apartment at Kunibertusplatz 7 is situated in a quiet yet well-connected area within the town of Erftstadt. The surroundings are characterized by well-kept residential houses, plenty of greenery, and a pleasant neighborhood atmosphere – ideal for those who want to live close to nature yet near the city.
Shopping facilities for your daily needs, bakeries, pharmacies, and doctors are reachable within a few minutes. Kindergartens, schools, and leisure facilities are also in the immediate vicinity. The nearby shopping center and various service providers offer additional everyday convenience.
The transport connections are excellent: via the A1 motorway you can quickly reach Cologne and Bonn. Public transportation is also well-developed – bus and train connections provide convenient access to the surrounding towns and communities. The bus stop is less than a minute’s walk away.
Equipment:
- Bathrooms with wall and floor cabinets
- Fully equipped L-shaped kitchen with high-quality appliances and telescopic drawers
- Windows with double glazing
- Partially electric shutters
- Roof windows that can be partially opened electrically with a remote control (some equipped with a rain sensor)
Floor Coverings:
- High-quality solid wood parquet flooring in the living room
- Tiled bathrooms, kitchen, and hallway
- The remaining rooms are furnished with laminate flooring
- The spacious courtyard is furnished with a garden table, chairs, and an umbrella, and is available for tenant use.
- Bicycle room
- Drying room
- Basement room for the apartment measuring 9.30 m²
Property characteristics
| Age | Over 5050 years |
|---|---|
| Condition | Good |
| Floor | 2. floor out of 3 |
| EPC | E - Wasteful |
| Price per unit | €9 / m2 |
| Available from | 01/05/2026 |
|---|---|
| Layout | 4+1 |
| Listing ID | 993661 |
| Usable area | 131 m² |
What does this listing have to offer?
| Basement | |
| MHD 0 minutes on foot |
| Garage | |
| Terrace |
What you will find nearby
Still looking for the right one?
Set up a watchdog. You will receive a summary of your customized offers 1 time a day by email. With the Premium profile, you have 5 watchdogs at your fingertips and when something comes up, they notify you immediately.


















