House for sale 3+kk • 90 m² without real estate, Mecklenburg-Vorpommern
, Mecklenburg-VorpommernPublic transport 2 minutes of walking • ParkingHere is the translation:
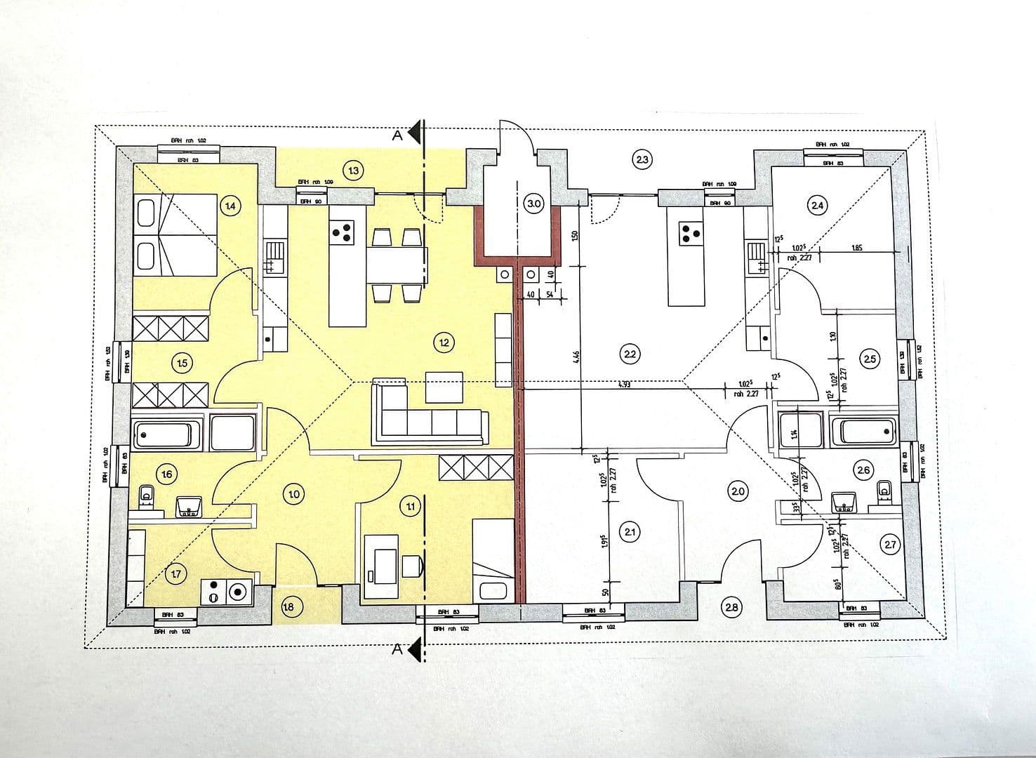
In Feldberg, this high-quality semi-detached bungalow is being built. The project is constructed using solid construction methods and features modern exterior architecture. The semi-detached bungalow is being built in accordance with Energy Certificate A+. A state-of-the-art air/water heat pump and proper building insulation are a must. This not only increases your own positive contribution but also the potential savings on your operating costs. The 90 m² large, one-story, barrier-free 3.5-room semi-detached bungalow half (No. 8) scores on many fronts. Family-friendly and quiet location, thoughtful room layout, a perfectly oriented garden, high-quality fittings, and much more!!! The floor plan can still be influenced during planning. In addition, each bungalow comes with a carport with an adjacent tool/storage room. (If desired, an e-charging station can be installed in the carport at an extra cost.) Completion of the new construction project is planned for 01 October 2026. An on-site visit to the construction area on the property can be arranged at any time. Should you wish to schedule an appointment or have any further questions, we are, of course, happy to assist you.
This semi-detached bungalow is being built in the Feldberger Seenlandschaft OT Feldberg, a district with about 4,000 inhabitants in the Mecklenburgische Seenplatte district. Feldberg is ideally suited as a place to live for nature-loving people who do not want to miss out on the benefits of city life. The proximity to the cities of Neubrandenburg, Neustrelitz, Fürstenberg, and Prenzlau, as well as the highways A11 and A20, makes the area very attractive. In Feldberg itself, you will find all the essentials of daily life. In addition to supermarkets (Edeka, Netto, and Lidl), banks, pharmacies, and doctors, as well as various childcare options, there is also a Kneipp pool in town. Feldberg also offers optimal living conditions for families, with nearby primary schools, daycare centers, and kindergartens. The “Wohnpark am Schmalen Luzin” development area is located in the eastern part of the municipality of Feldberger Seenlandschaft and is surrounded by existing residential buildings. The plot has a total size of 15,000 m². The land share for semi-detached half No. 8 is approximately 394 m².
See for yourself during an on-site visit!
Feldberg is located in the Feldberger Seenlandschaft Nature Park. Mysterious lakes up to 60 meters deep, beech forests whose treetops have been reaching for the skies for more than three centuries, small villages with ancient field stone churches and wonderfully cozy coffee houses…
The Feldberger Seenlandschaft is a haven for nature lovers and for all those who long for tranquility.
In the state-recognized recreational resort of Feldberg (Kneipp spa town), located directly by the beautiful Haussee, the award-winning Klinik am Haussee, with its four departments – neurology, cardiology, orthopedics, and psychosomatics – offers holistic treatment concepts. Feldberg is accessible by bus or car via well-developed state roads. The nearest train connections can be found in Neustrelitz or Fürstenberg/Havel. The local government office is centrally located in town.
The high-quality semi-detached bungalows will be delivered to you according to your individual wishes. The features of the houses bring all the advantages of a new build. Generous room layout, well-thought-out floor plans, and plenty of light that skillfully carries the exterior into the interior. All living areas benefit from underfloor heating. Each semi-detached bungalow has its own air/water heat pump. Of course, if you decide early, there is still the possibility to accommodate additional individual requests.
• Electric blinds
• Stylish bathroom concept
• Large garden
• Outdoor facilities
• Underfloor heating
• Triple insulated glazing – PVC windows – burglar resistant including mushroom-head locking system (color: DB 07) including insect protection
• Individual customization by the buyer (vinyl flooring, skirting boards, floor and wall tiles, sanitary fixtures, and much more)
Imprint
Mailing address:
Feldberger Immobilien GmbH
Küstersteig 13
17258 Feldberger Seenlandschaft
Telephone: 039831 26120
Email: info@feldberger-immobilien.de
Managing Director: Matthias Nest
Registered in the Commercial Register under HRB 21806
Local Court Neubrandenburg
Tax number: 075/108/05504
Contact form
Content responsible according to § 6 MDStV: Matthias Nest
EU Online Dispute Resolution
The European Commission provides a platform for online dispute resolution (OS): https://ec.europa.eu/consumers/odr.
You can find our email address above in the imprint.
We are not willing or obliged to participate in dispute resolution proceedings before a consumer arbitration board.
Disclaimer: Despite careful content control, we assume no liability for the content of external links. The operators of the linked pages are solely responsible for their content. All brands mentioned here are the property of their respective owners and are referenced solely for informational purposes.
In a ruling dated 12 May 1998, the LG Hamburg decided that by providing a link, one may be partly responsible for the content of the linked page. According to the court, this can only be prevented by expressly distancing oneself from these contents.
Property characteristics
| Age | Over 5050 years |
|---|---|
| Layout | 3+kk |
| EPC | A - Extremely economical |
| Land space | 400 m² |
| Price per unit | €3,722 / m2 |
| Condition | New-build |
|---|---|
| Listing ID | 993406 |
| Usable area | 90 m² |
| Total floors | 1 |
What does this listing have to offer?
| Wheelchair accessible | |
| MHD 2 minutes on foot |
| Parking | |
| Terrace |
What you will find nearby
Still looking for the right one?
Set up a watchdog. You will receive a summary of your customized offers 1 time a day by email. With the Premium profile, you have 5 watchdogs at your fingertips and when something comes up, they notify you immediately.














