House to rent 5+kk • 198 m² without real estate, Brandenburg
, BrandenburgPublic transport 3 minutes of walking • ParkingThe villa “Kiefernblick” is located in the new Schwedenhaus settlement around August Strindberg Weg in Borkwalde, which is already filled with the lively spirit of many friendly young families. It is built in solid construction and clad in Siberian larch. High-quality Italian tiles in a natural wood-look and underfloor heating indoors create a cozy atmosphere. A very spacious south-facing terrace invites you to relax outdoors (under pine trees).
The town villa offers modern living at a high level, surrounded by nature:
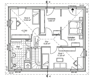
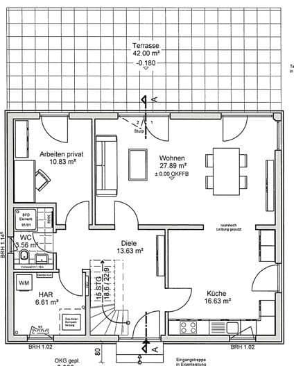
On the ground floor, there is a spacious, open country-style kitchen with all the necessary appliances. From here, a generous access leads to the bright living room and the terrace, which is over 10 meters wide. A guest WC with shower, a roomy utility room, and a study/guest room with a separate entrance complete this level. On the upper floor there are three large bedrooms, one of which includes an adjoining dressing room that can also be furnished as a children’s room, as well as a spacious bathroom with a bathtub and a curbless shower. The finished attic offers additional storage space or play area and is accessible via a folding space-saving staircase.
The large garden offers plenty of space for children and pets and has its own driveway with a gate. The parking spaces are equipped with a wallbox. The villa “Kiefernblick” is equally suitable for families or individuals who work from home in their own office but also travel to Berlin or Potsdam, since Borkheide train station – with direct regional connections to Berlin – is only 2.7 km away, and a bus connection is in the immediate vicinity.
Borkwalde is a family-friendly, growing community surrounded by forests and lakes in the outskirts of Berlin. The area is known for its numerous beautiful wooden houses. With many playgrounds, two daycares, plenty of space for cycling and walking, as well as the forest bath and the Klaistow experience farm with its climbing park and petting zoo, young families and pets immediately feel at home.
A primary school and another kindergarten are located in nearby Borkheide. There, you will also find two supermarkets and a bakery. Secondary schools can be easily reached in Brück, Beelitz, Michendorf, Treuenbrietzen, and Bad Belzig.
Medical care is ensured by a specialist in general medicine, a physiotherapist, a dentist, and a pharmacy.
Borkwalde is accessible from the A 2 via the Glindow exit as well as from the A 9 via the Beelitz exit. From the regional train station, only 2.7 km away, Berlin-Wannsee can be reached in just about 30 minutes and central Berlin in 45 minutes.
In Borkwalde, among other things, there is an active church community, a committed fire brigade support association, and a senior dance group.
Property characteristics
| Age | Over 5050 years |
|---|---|
| Condition | Very good |
| Listing ID | 993389 |
| Usable area | 198 m² |
| Total floors | 2 |
| Available from | 01/07/2026 |
|---|---|
| Layout | 5+kk |
| EPC | A - Extremely economical |
| Land space | 560 m² |
| Price per unit | €12 / m2 |
What does this listing have to offer?
| Parking | |
| Terrace |
| MHD 3 minutes on foot |
What you will find nearby
Still looking for the right one?
Set up a watchdog. You will receive a summary of your customized offers 1 time a day by email. With the Premium profile, you have 5 watchdogs at your fingertips and when something comes up, they notify you immediately.













