Flat for sale 2 bedroom • 49 m² without real estate, Baden-Württemberg
This well-maintained and modernized 2-room ground floor apartment is located in a quiet multi-family building constructed in 1993 in an attractive area of Leimen.
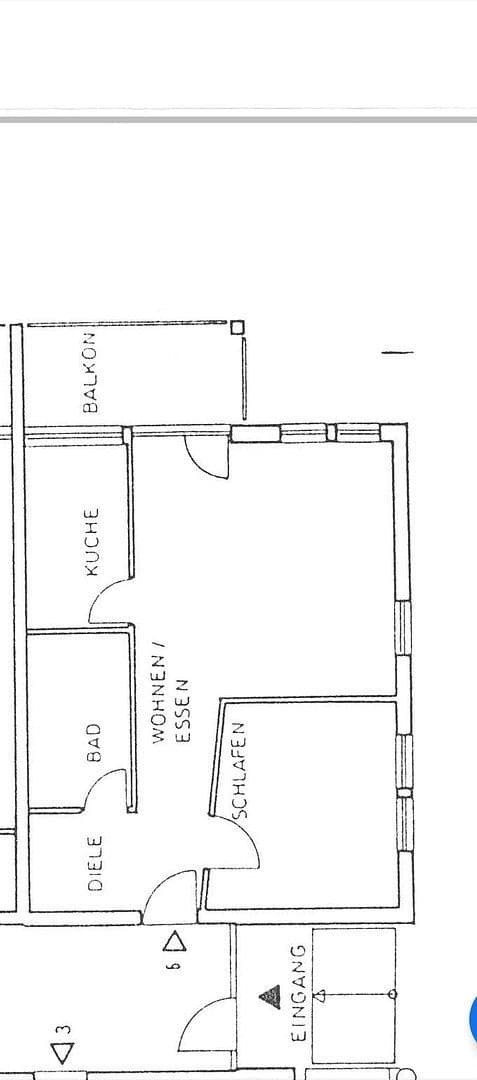
The apartment offers approximately 48.03 m² of living space and impresses with its well-thought-out layout. The bright living and dining area, with direct access to the balcony, forms the heart of the apartment, where you can enjoy relaxed hours outdoors.
Both the bathroom and the fitted kitchen were modernized in 2016, meaning no renovation is necessary. The apartment is currently not rented and can be occupied at short notice by arrangement – ideal for owner-occupiers or investors.
The apartment comes with its own basement storage room as well as an underground parking space with direct access beneath the building.
The residential complex is professionally managed and is in well-maintained condition. The monthly service charge is approximately €179, a large portion of which is apportionable.
Due to its modernized condition, ground floor location with balcony, and separate underground parking space, this represents a very attractive opportunity in the area.
The apartment is situated in a quiet yet well-connected part of Leimen. A bus stop is almost right at the door, while St. Ilgen train station can be reached on foot in just a few minutes. Access to the B3 road and the A5 motorway is excellent – ideal for commuters heading towards Heidelberg, Mannheim, or Karlsruhe.
Shopping facilities, doctors, pharmacies, schools, and kindergartens are all in the immediate vicinity. The established residential area offers good infrastructure and short distances for everyday needs.
• Modernized bathroom (2016)
• Fitted kitchen included (2016)
• Balcony
• Basement storage room
• Underground parking space
• Tiled and laminate floors
• Central heating (gas)
• Well-maintained residential complex
• Not rented – available immediately
Property characteristics
| Age | Over 5050 years |
|---|---|
| Condition | After reconstruction |
| Listing ID | 993324 |
| Usable area | 49 m² |
| Available from | 21/02/2026 |
|---|---|
| Layout | 2 bedroom |
| EPC | D - Less economical |
| Price per unit | €3,469 / m2 |
What does this listing have to offer?
| Balcony | |
| MHD 0 minutes on foot |
| Garage |
What you will find nearby
Still looking for the right one?
Set up a watchdog. You will receive a summary of your customized offers 1 time a day by email. With the Premium profile, you have 5 watchdogs at your fingertips and when something comes up, they notify you immediately.







