
Flat for sale 3+1 • 99 m² without real estate, Lower Saxony
The offered apartment is located on the top floor of a well-maintained multi-family house with five residential units. The building, constructed in 2011, presents itself in a very neat and well-kept condition.
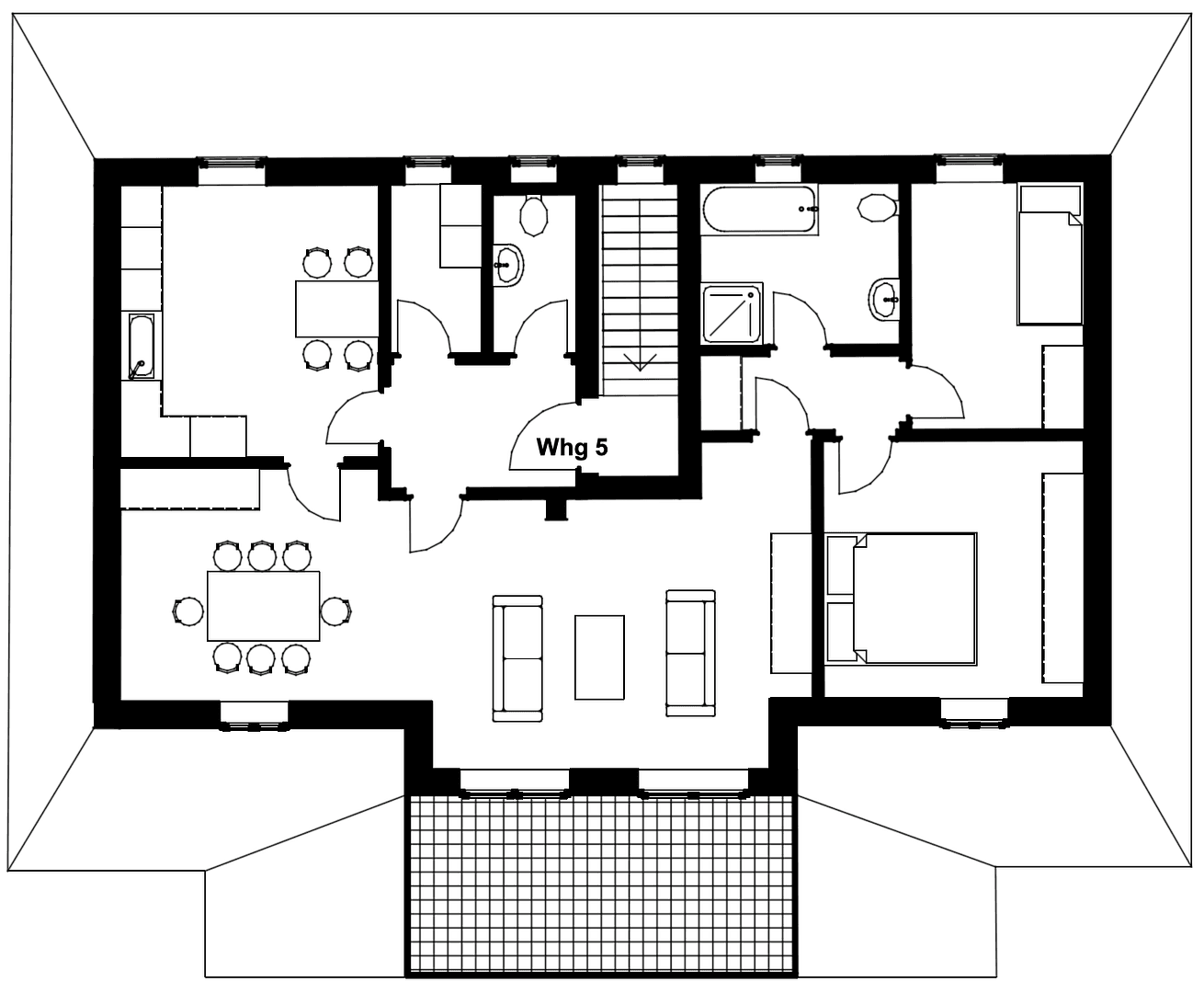
This penthouse apartment, with approximately 99 m² of living space, impresses with a clear and well-organized layout. From the entrance area, you first have access to the guest WC as well as a separate storage room. The kitchen is situated as an independent room with a small dining area directly adjacent and is arranged separately from the living area. The fitted kitchen, which is part of the offer, is included in the purchase price. The spacious living and dining area forms the heart of the apartment and also provides access to the approximately 13 m² large roof terrace.
The rear part of the apartment is slightly set apart and forms the private area, which houses a children’s room/office, the master bedroom, as well as the bathroom.
Included with the apartment is a separate basement storage room with a size of approximately 11 m² and an allocated outdoor parking space. The offer is further enhanced by additional parking spaces in the communal property and a shared bicycle storage room.
The annual net cold rent amounts to approximately €8,800.
The sale is conducted directly by the owner, so no commission is charged. Additionally, further residential units are available in this property.
For more information, please contact us with your complete contact details.
The apartment is located in an area predominantly characterized by residential use with well-established infrastructure. Shopping opportunities, schools, and everyday facilities are located in the immediate vicinity. The Lingener city center can be reached in just a few minutes by both bicycle and car. In addition, there is good access to public transport as well as to supraregional thoroughfares.
Property characteristics
| Age | Over 5050 years |
|---|---|
| Layout | 3+1 |
| Listing ID | 993321 |
| Price per unit | €3,232 / m2 |
| Condition | Good |
|---|---|
| Floor | 2. floor |
| Usable area | 99 m² |
What does this listing have to offer?
| Basement | |
| MHD 3 minutes on foot |
| Parking |
What you will find nearby
Still looking for the right one?
Set up a watchdog. You will receive a summary of your customized offers 1 time a day by email. With the Premium profile, you have 5 watchdogs at your fingertips and when something comes up, they notify you immediately.



