Office to rent • 80 m² without real estateBrettergartenstraße 57 Nürnberg Schniegling Bayern 90427
Brettergartenstraße 57 Nürnberg Schniegling Bayern 90427Public transport 1 minute of walkingAn attractive and versatile commercial unit is available for rent in a good location. The unit is ideal for office, practice, service, or retail use.
The premises are located in a well-maintained building and impress with a functional layout and good lighting. The property is situated at Brettergartenstraße 57 in the Nuremberg district of Schniegling in the north of Nuremberg. The area features a pleasant mix of residential and commercial use and offers a quiet yet well-connected environment.
Transportation connections are excellent: the nearby main roads provide quick access to Nuremberg’s city center, the surrounding districts, and the regional road network. The A3 and A73 highways are reachable in a short driving time, ensuring optimal connectivity for commuters as well as customer and delivery traffic.
Public transport is also well developed. Bus and tram stops are within walking distance, offering a direct connection to the city center and other major hubs in the city.
In the immediate vicinity, you will find shops for daily needs, dining options, and various service and commercial enterprises. Additionally, nearby green and recreational areas contribute to a high quality of life and provide a pleasant balance to the working day.
Overall, the location impresses with its quiet yet central position, excellent accessibility, and versatile usability – ideal conditions for successful commercial use.
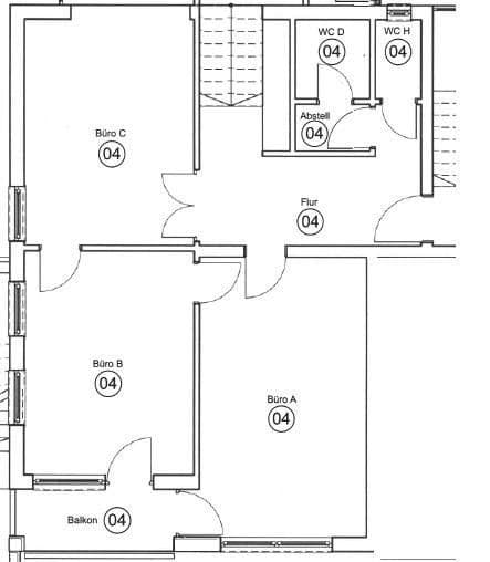
- Bright and well-proportioned office spaces
- Sanitary facilities available
- Heating via a gas central heating system
- Air conditioning
- Balcony
- Optionally, an additional storage room in the basement can be rented (monthly rent €80.00)
Property characteristics
| Age | Over 5050 years |
|---|---|
| Listing ID | 993290 |
| Price per unit | €11 / m2 |
| Condition | Good |
|---|---|
| Land office | 80 m² |
What does this listing have to offer?
| Basement |
| MHD 1 minute on foot |
What you will find nearby
Still looking for the right one?
Set up a watchdog. You will receive a summary of your customized offers 1 time a day by email. With the Premium profile, you have 5 watchdogs at your fingertips and when something comes up, they notify you immediately.









