
House for sale 5+1 • 110 m² without real estateNauroder Str. 71 Wiesbaden Wiesbaden Hessen 65191
Here is the translated text:
"Here, you and your family will feel completely at home!
Immediately move-in ready detached family house in Wiesbaden-Bierstadt
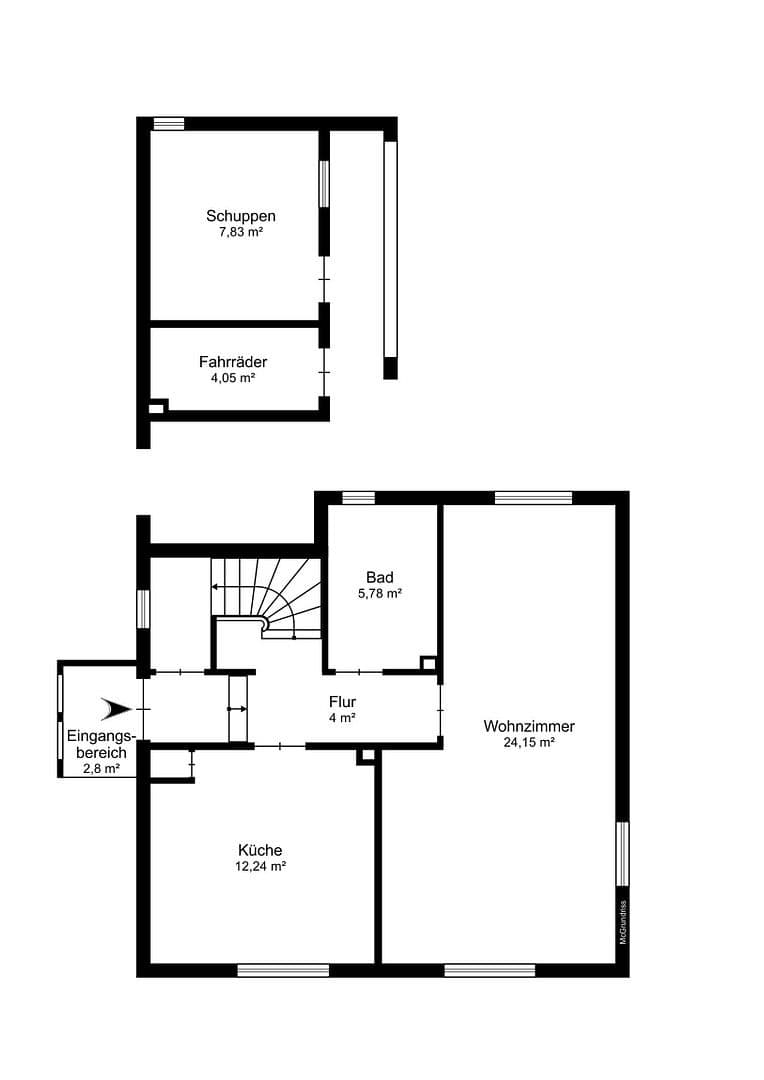
This modernized single-family house (energy efficiency class A) impresses with its successful layout and offers the following rooms:
- 1 spacious living room
- 1 bright kitchen-dining area
- 3 bedrooms
- 1 study/office
- 2 modern bathrooms
- as well as large basement and storage rooms
In addition to the plot, at the back of the garden the city of Wiesbaden provides a leasable rental area of 220 m², resulting in a total plot area of 700 m².
Commission-free – no broker fees
A viewing is possible at short notice. Please arrange an appointment with us!
We have additional documents available for you.
The property is sunny and detached, located in the popular residential area on the outskirts of Bierstadt.
Spending time in nature and strolling through the fields are right outside your door.
Wiesbaden-Bierstadt is a popular district with approximately 12,500 residents and, thanks to its close proximity to the diverse offerings of downtown Wiesbaden, offers a very high quality of life for all age groups. Shopping and service options along with restaurants are generally varied in the area. Bierstadt provides all the stores for daily needs—from supermarkets and drugstores to post offices, doctors, and pharmacies.
Bierstadt is also well known for the Aukammtal with its spa and clinic facilities (thermal bath, Apothekergarten, DKD, Wilhelm-Fresenius Clinic). For families, daycare centers, kindergartens, a primary school, and a high school are conveniently located nearby. Other types of schools are located in the immediate vicinity of Wiesbaden.
Wiesbaden-Bierstadt is conveniently located with excellent transport connections in all directions.
Renovations completed in 2025:
- Completely new electrical wiring
- 2 bathrooms completely renewed
- Bosch heat pump
- Water pipes
- 3-pane insulated windows by Schüco
- Floors and walls
- Interior doors
- Exterior facade insulation according to BaFa requirements
- Basement ceiling insulation
- Attic insulation"
Property characteristics
| Age | Over 5050 years |
|---|---|
| Condition | After reconstruction |
| Listing ID | 993240 |
| Usable area | 110 m² |
| Total floors | 2 |
| Available from | 23/02/2026 |
|---|---|
| Layout | 5+1 |
| EPC | A - Extremely economical |
| Land space | 480 m² |
| Price per unit | €6,809 / m2 |
What does this listing have to offer?
| Basement | |
| MHD 1 minute on foot |
| Parking | |
| Terrace |
What you will find nearby
Still looking for the right one?
Set up a watchdog. You will receive a summary of your customized offers 1 time a day by email. With the Premium profile, you have 5 watchdogs at your fingertips and when something comes up, they notify you immediately.














