Flat for sale 2 bedroom • 54 m² without real estateBrandenburg an der Havel Brandenburg an der Havel Brandenburg 14770
For sale is an attractive 2-room apartment located on a quiet side street in Brandenburg an der Havel. The apartment is situated on the 2nd upper floor (attic floor) of a well-maintained multi-family house. Spanning approximately 54 m², this unit offers an ideal layout for singles or couples. The property is available on short notice and can also be taken over fully furnished upon arrangement.
Central location in the historic Havel city
The properties are located in one of the most attractive residential areas in Brandenburg an der Havel, a city renowned for its historic architecture and its direct connection to the extensive Havel water landscape.
Urban infrastructure and short distances
Close to the center: The apartments are located in the heart of or on the edge of the historic city centers (Old Town/New Town), ensuring excellent accessibility to daily necessities.
Good transport connections: The locations feature excellent access to public transportation, which makes them particularly attractive for commuters.
Urban historic environment: The neighborhood is characterized by charming streets lined with partly renovated old buildings that reflect the typical character of the city.
Recreation and leisure
Proximity to water: Within just a few minutes’ walk, various branches and promenades along the Havel can be reached, offering high recreational value.
Green surroundings: Parks and green spaces are in close vicinity, providing an ideal balance to city life.
Attractiveness for tenants and owner-occupiers
Due to the combination of a central location and proximity to cultural and educational institutions in Brandenburg an der Havel, these units are extremely attractive for both owner-occupiers and investors for rental purposes.
Would you like me to tailor this location description even more specifically to one of the individual apartments (e.g., the attic apartment)?
Spacious, light-flooded living room
Separate bedroom, ideal for individual use
Kitchen with easy-to-clean tiled floor and practical fitted kitchen
Stylish bathroom with bathtub, towel radiator, and connection for a washing machine
Consistently high-quality laminate flooring for a modern living ambience
Double-glazed wooden windows for a pleasant living atmosphere
KEY DATA:
Location: Brandenburg an der Havel (close to the center)
Rooms: 2
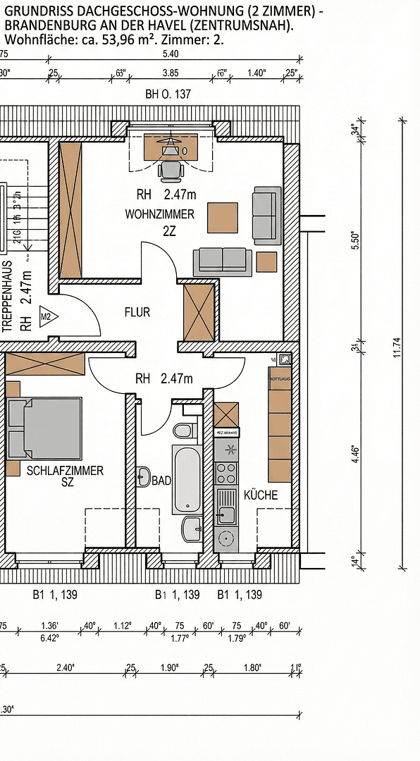
Living area: approx. 53.96 m²
Floor: Attic (2nd upper floor)
Availability: Short notice / Immediate
Purchase price: 139,000 EUR
Commission: Private sale – No broker fees
CONTACT:
If you are interested, please send us a message with your contact details.
Property characteristics
| Age | Over 5050 years |
|---|---|
| Condition | After reconstruction |
| Floor | 2. floor |
| EPC | D - Less economical |
| Price per unit | €2,574 / m2 |
| Available from | 21/02/2026 |
|---|---|
| Layout | 2 bedroom |
| Listing ID | 993205 |
| Usable area | 54 m² |
What does this listing have to offer?
| Balcony |
| MHD 1 minute on foot |
What you will find nearby
Still looking for the right one?
Set up a watchdog. You will receive a summary of your customized offers 1 time a day by email. With the Premium profile, you have 5 watchdogs at your fingertips and when something comes up, they notify you immediately.


