
House for sale 5+1 • 111 m² without real estateHamburg Neugraben-Fischbek Hamburg 21149
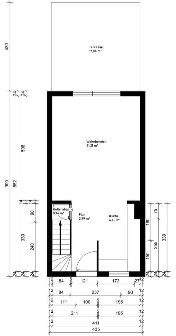
Hamburg Neugraben-Fischbek Hamburg 21149Public transport 1 minute of walkingThis comprehensively modernized terraced house impresses with its quiet location in Neugraben-Fischbek and a sunny, low-maintenance south-facing plot featuring a sheltered terrace and garden. The approximately 110 m² of living space (DIN 277) are distributed over five rooms, two bathrooms, a developed attic, as well as a full basement that includes a guest WC, a separate shower, a heated room, and a utility area.
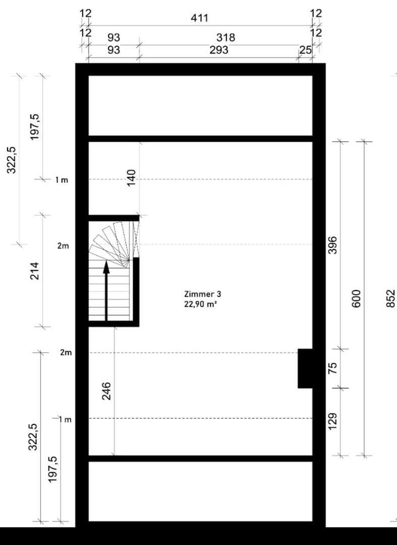
On the ground floor, you will find an entrance hall, a modern kitchen, and a bright living room with direct access to the terrace. The upper floor offers two bedrooms and a contemporary bathroom. The developed attic floor, fitted with new roof windows, is ideally suited as a work, guest, or hobby room.
The house is immediately ready for occupancy and is technically up-to-date: new electrical wiring, triple-glazed windows with electric shutters, underfloor heating on all levels with three heat pumps, new BOSCH instantaneous water heaters (energy class A), vinyl flooring in oak effect, as well as an insulated façade and roof.
The location is family-friendly and quiet. Shopping opportunities, schools, daycare centers, and doctors are easily accessible. The bus stop "Fischbeker Heuweg" is only a few minutes' walk away, and the nature reserve "Fischbeker Heide" is practically at the doorstep, ideal for pleasant walks in the greenery.
There is still approximately 1.5 years’ warranty on the electrical system, heat pumps, underfloor heating, etc.
Property characteristics
| Age | Over 5050 years |
|---|---|
| Layout | 5+1 |
| EPC | B - Very economical |
| Land space | 124 m² |
| Condition | After reconstruction |
|---|---|
| Listing ID | 992846 |
| Usable area | 111 m² |
| Price per unit | €4,043 / m2 |
What does this listing have to offer?
| Basement | |
| Terrace |
| MHD 1 minute on foot |
What you will find nearby
Still looking for the right one?
Set up a watchdog. You will receive a summary of your customized offers 1 time a day by email. With the Premium profile, you have 5 watchdogs at your fingertips and when something comes up, they notify you immediately.













