House for sale 6+1 • 175 m² without real estateIm Wiesengrund 17, , Schleswig-Holstein
Im Wiesengrund 17, , Schleswig-HolsteinPublic transport 5 minutes of walking • GarageBelow is the English translation of the text marked with the XML tag:
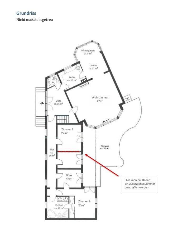
This bungalow, built in 1973 with a solid construction, is situated on a southwest-facing plot of approximately 880 m² on a quiet side street and impresses with its very well-maintained condition and constant modernizations. The total usable area of the building amounts to 303 m². On a living area of about 175 m², you have five generously laid-out rooms (which can be expanded to six), making it ideal for a family.
By partitioning Bedroom 1, it is possible to create an additional room in the sleeping area. Through an attractive entrance hall with an adjacent guest WC, you enter the living room with access to the partially covered southwest terrace. Dark wooden beams, downlights, and the tiled stove with elegant decorations give this area its special charm. The radiators in the living-dining area are embedded in the floor. An opening connects the living room with the dining room, to which the solidly built conservatory is attached – both rooms are particularly bright thanks to the floor-to-ceiling mullioned windows. The high-quality SieMatic built-in country-style kitchen is equipped with all technical appliances from Siemens and Neff and offers plenty of room for cooking with the whole family.
The sleeping area is separated by a dedicated corridor, creating pleasant privacy. All rooms – one of them featuring an en suite full bathroom – have direct access to the large terrace. Ample storage space is available in the tiled basement; one of the rooms, fitted with laminate flooring, can also be used as a living area or as an office or guest room. The offer is rounded off by one spacious garage parking space.
The latest modernization work was carried out between 2017 and 2021, including roof cleaning and coating, copper guttering, attic insulation, painting of masonry and porches, etc. The old oil heating system was replaced in 2017 by a new heating system, and since then the house has been supplied via the local district heating network of Energiegenossenschaft Steinburg eG.
You can find information about the energy provider at the following link: energiegenossenschaft-steinburg.de
Mollhagen is part of the municipality of Steinburg, which comprises three villages, with Mollhagen forming the village center. This easily accessible village is located northeast of Hamburg and south of Bad Oldesloe. The quiet village is particularly characterized by its beautiful landscape. Brooks, meadows, and fields as well as the “Pflasterstraße mit Sommerweg” and the “Dänenbrücke” invite you to take walks and bike rides.
For sporting activities, TSV Mollhagen offers a wide range of options such as badminton, tennis, volleyball, table tennis, judo, yoga, zumba, and gymnastics. In addition, in the neighboring village, SV Eichede is especially known for its successful football department and offers other sports like handball and table tennis. For equestrian enthusiasts, the Mollhagen Riding Club (Reitverein Mollhagen e. V.) provides a wide range of activities.
Mollhagen boasts an excellent infrastructure for families: Within a few minutes’ walk you can reach various doctors’ practices, a primary school, and a kindergarten (approximately 800 m away). By the end of 2026, a new supermarket is planned (EDEKA is under discussion). Secondary schools can be conveniently reached by school bus. Numerous lakes and forests in the surrounding area – including Lake Lütjen, the Beimoorwald, and the Trittauer Forest – invite you to leisure and relaxation.
The bus line connects Mollhagen with Ahrensburg and Bargteheide. From Ahrensburg, you can reach downtown Hamburg in about 20 minutes. The nearby highways A1 and A21 offer very good connectivity. Hamburg Airport is reachable in approximately 45 minutes.
The property is offered including cooperative shares and furnishings (kitchen, furniture, freezer, lamps, Bang & Olufsen TV, Oriental rugs, wardrobes, garden furniture, awning, garden tools).
The total price can be allocated as follows:
• Purchase price of the property (subject to property tax)
• Value of movable items (not subject to real estate transfer tax)
The exact list of furniture, garden tools, and their current value can be coordinated and itemized separately if there is interest in purchasing. The value of the cooperative shares and furnishings is approximately €40,000, on which no real estate transfer tax is levied.
Real estate agent inquiries are not desired. According to § 7 UWG, unsolicited contact by agents without the explicit consent of the recipient is prohibited!
Property characteristics
| Age | Over 5050 years |
|---|---|
| Layout | 6+1 |
| EPC | G - Extremely uneconomical |
| Land space | 878 m² |
| Price per unit | €2,846 / m2 |
| Condition | After reconstruction |
|---|---|
| Listing ID | 992618 |
| Usable area | 175 m² |
| Total floors | 2 |
What does this listing have to offer?
| Balcony | |
| Garage | |
| Terrace |
| Basement | |
| MHD 5 minutes on foot |
What you will find nearby
Still looking for the right one?
Set up a watchdog. You will receive a summary of your customized offers 1 time a day by email. With the Premium profile, you have 5 watchdogs at your fingertips and when something comes up, they notify you immediately.






































